Spacious five-bedroom home with large gardens and garage in sought-after Pinchbeck.
Five-bedroom detached period cottage dating to c.1800
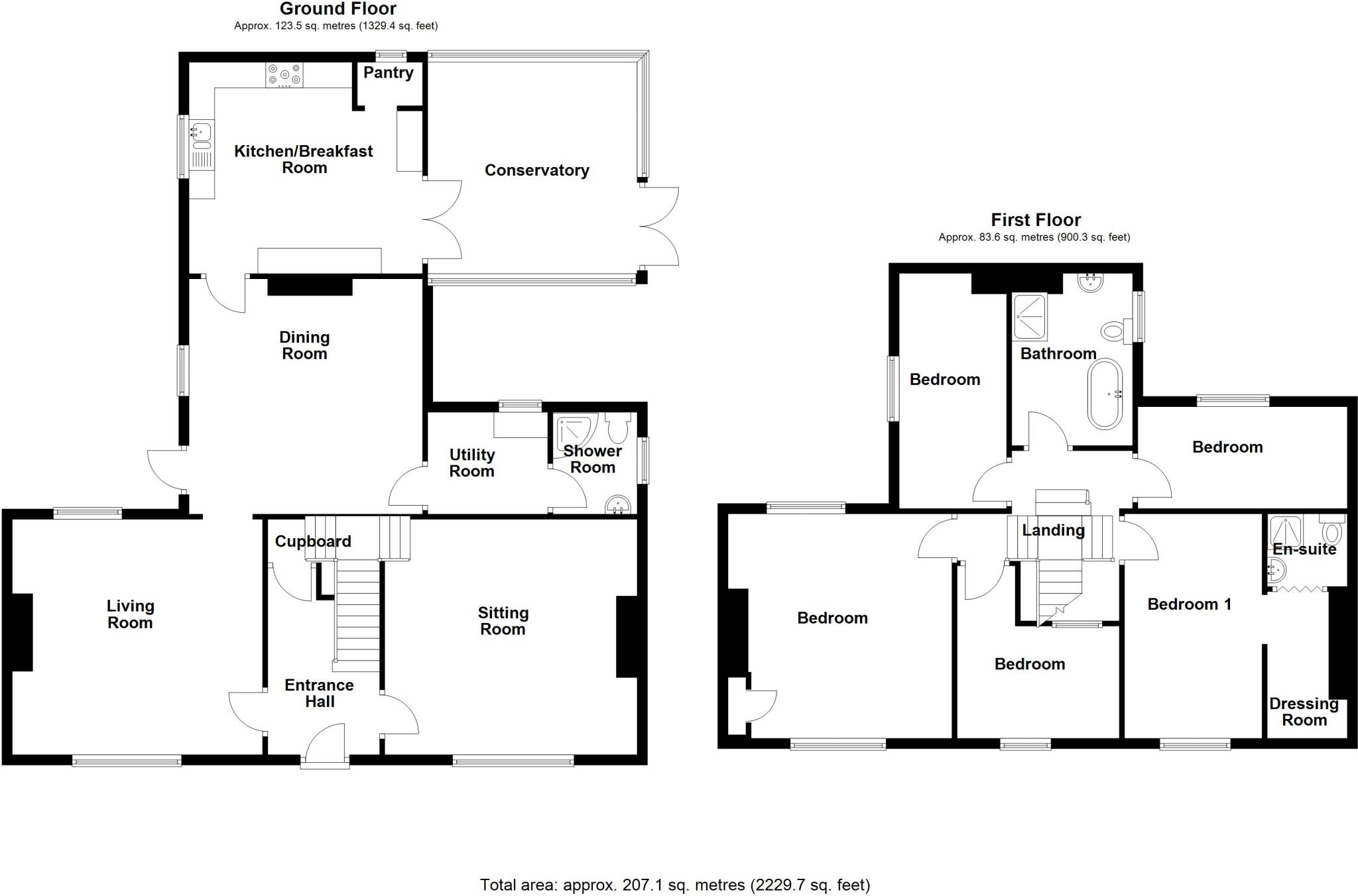
Set in the heart of Pinchbeck, this early 1800s detached cottage combines period character with generous family accommodation. The ground floor offers four reception rooms, a fitted kitchen with utility, and a handy shower/boot room — flexible space for everyday life and entertaining. Upstairs, a principal suite with dressing room and en-suite sits alongside four further bedrooms and a large family bathroom.
The property occupies a substantial wrap-around plot with mature borders, a large paved patio for entertaining, gated vehicular access and a detached garage. Gravel drives to the side and rear provide parking for several vehicles, making the layout practical for families with multiple cars or visitors.
Many original features remain, including exposed beams, flagstone flooring and wood-burning stoves, creating characterful living spaces. The house has been presented to a good standard in parts, but its age means ongoing maintenance can be expected; buyers should allow for period-property upkeep and sympathetic repairs where required.
Practical considerations: the home lies in an area with medium flood risk, has above-average local crime rates and higher-than-average council tax. Broadband and mobile signal are strong, and good primary and secondary schools are within easy reach, making this a compelling option for growing families who value space and character.
2 bedroom detached house for sale in Bacons Lane, Pinchbeck, Spalding, PE11 — £215,000 • 2 bed • 2 bath • 1066 ft²
2 bedroom detached house for sale in Horsepit Lane, Pinchbeck, Spalding, PE11 — £250,000 • 2 bed • 1 bath • 786 ft²
3 bedroom detached house for sale in Tydd Road, West Pinchbeck, PE11 — £325,000 • 3 bed • 1 bath • 1680 ft²
3 bedroom detached house for sale in Spalding Road, Spalding, PE11 — £249,950 • 3 bed • 1 bath • 1249 ft²
3 bedroom detached house for sale in Spalding Road, Pinchbeck, PE11 — £315,000 • 3 bed • 1 bath • 1246 ft²
3 bedroom detached house for sale in Bacons Lane, Pinchbeck, PE11 — £215,000 • 3 bed • 2 bath • 1066 ft²


























































































