Easy urban living with parking and lift access close to transport links.
- Central position between station and High Street
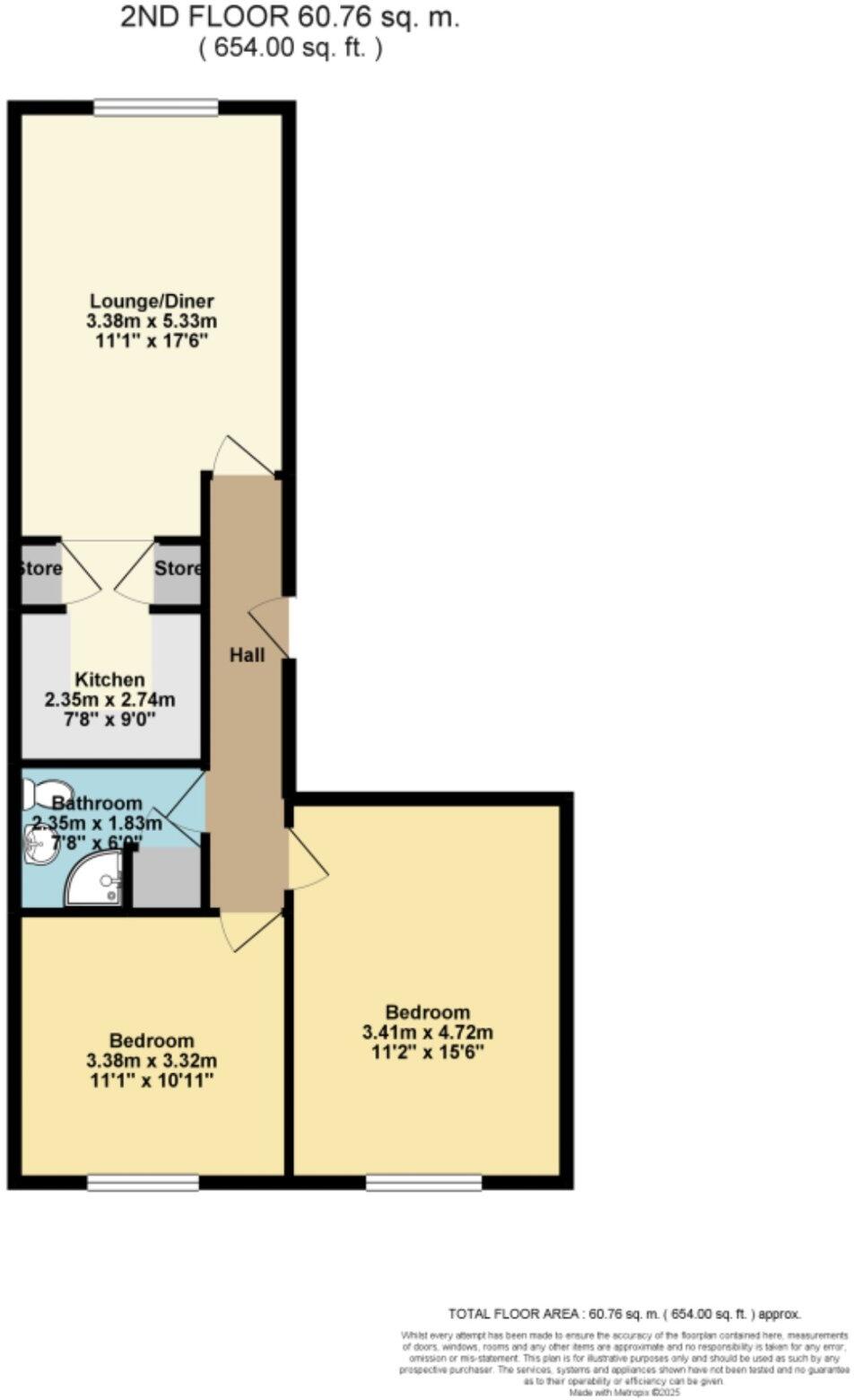
- Two double bedrooms, open-plan living/kitchen
- Second-floor flat with lift and underground parking
- Share of freehold, very long lease (~950 years)
- No private garden or outdoor space
- Electric room heaters; potentially higher running costs
- Service charge approx. £1,500 per year
- Local area: high crime and significant deprivation indicators
Set on the second floor with lift access, this two-bedroom flat places you between Folkestone Central station and the High Street — an easy commute and everyday convenience on your doorstep. The apartment offers an open-plan living area with a modern fitted kitchen, two double bedrooms and a contemporary shower room, all in a practical 654 sq ft layout that suits first-time buyers or buy-to-let purchasers.
Practical benefits include residents’ underground parking, a long lease (approximately 950 years), share of freehold and no onward chain, simplifying purchase. The elevated position brings pleasant street and town views and the integrated living space is ready for immediate occupation or light personalisation.
Be aware of a few material points: heating is electric (room heaters), so running costs can be higher than gas alternatives. The building’s exterior is mid‑20th century and looks dated in places; some internal upgrading may be desirable depending on your tastes. Service charges average around £1,500 per year and the local area records higher crime and significant deprivation indicators — important factors for long‑term families or those prioritising low‑risk investment.
Overall this flat offers a well‑located, low‑maintenance home with strong transport links and parking — a straightforward purchase for a first-time buyer who values centrality, or for an investor targeting Folkestone’s improving market. Readily habitable now, it also has modest scope for improvement to increase comfort or rental yield.
1 bedroom flat for sale in Oxford Terrace, Folkestone, Kent, CT20 — £80,000 • 1 bed • 1 bath • 559 ft²
2 bedroom flat for sale in Sandgate Road, Folkestone, CT20 — £200,000 • 2 bed • 1 bath • 555 ft²
2 bedroom flat for sale in Brockman Road, Folkestone, Kent, CT20 — £225,000 • 2 bed • 1 bath • 759 ft²
2 bedroom flat for sale in Earls Avenue, Folkestone, Kent, CT20 — £230,000 • 2 bed • 2 bath • 947 ft²
2 bedroom flat for sale in Brambley Crescent, Folkestone, Kent, CT20 — £180,000 • 2 bed • 1 bath • 732 ft²
2 bedroom flat for sale in The Leas, Folkestone, CT20 — £160,000 • 2 bed • 2 bath • 735 ft²






































