Smart starter property with solar panels and excellent commuter links.
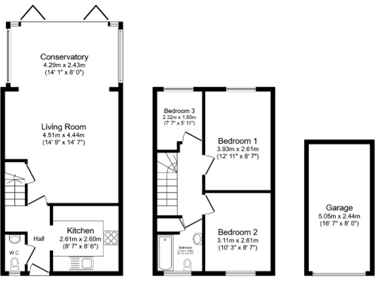
- Three bedrooms with flexible living and conservatory space
- Modern fitted kitchen with integrated appliances
- Solar panels and EPC rating C for lower running costs
- Garage plus two allocated parking spaces
- Located within well-regarded school catchments
- Single family bathroom only; one bath/shower
- Small rear garden/plot and modest external space
- Double glazing fitted before 2002; tenure to be confirmed
This three-bedroom semi-detached house in Netherhouse Moor offers a practical, well-laid-out starting home for first-time buyers. The generous living room flows into a fully insulated conservatory with tri-fold doors, creating strong indoor–outdoor flow to a neatly landscaped rear garden — ideal for entertaining or relaxed family life. The modern kitchen includes integrated appliances and useful built-in storage potential in the main bedroom.
Practical running costs are aided by solar panels and an EPC rating of C. Off-street provision includes a garage plus two allocated parking spaces, and the property sits within sought-after school catchments and close to local shops, the Basingstoke Canal and Fleet’s transport links to London.
Buyers should note a modest plot size and a single family bathroom. The double glazing was installed before 2002 and the tenure is listed as unknown, which should be confirmed. Overall, this home presents a comfortable, low-effort option for buyers wanting good transport links, schools and some green outdoor space without immediate major works.
5 bedroom detached house for sale in Basingbourne Close, Fleet, Hampshire, GU52 — £750,000 • 5 bed • 3 bath • 2294 ft²
3 bedroom terraced house for sale in Swan Way, Church Crookham, Fleet, Hampshire, GU51 — £400,000 • 3 bed • 2 bath • 662 ft²
3 bedroom semi-detached house for sale in Greenways, Fleet, GU52 — £490,000 • 3 bed • 1 bath • 1092 ft²
3 bedroom terraced house for sale in Park Hill, Church Crookham, GU52 — £375,000 • 3 bed • 1 bath • 1080 ft²
3 bedroom detached house for sale in Ryelaw Road, Church Crookham, Fleet, GU52 — £485,000 • 3 bed • 1 bath • 934 ft²
4 bedroom semi-detached house for sale in Ryebeck Road, Church Crookham, Fleet, GU52 — £585,000 • 4 bed • 2 bath • 1483 ft²


































































