Compact, convenient apartment with balcony and parking close to transport and shops.
Town-centre location, 0.5 miles to Newbury train station
This compact two-bedroom flat offers a practical town-centre base with a balcony and allocated parking, ideal for a first-time buyer or buy-to-let investor. Set in a modern development within 0.5 miles of Newbury station and local shops, the apartment delivers convenience and easy access to transport links and amenities.
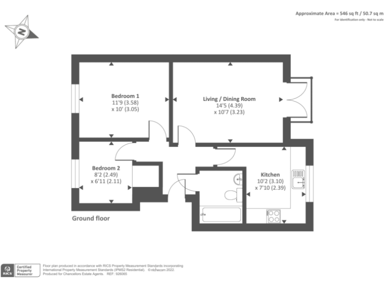
The layout includes an entrance hall with utility cupboard, a kitchen, living room opening to a balcony, two bedrooms and a bathroom with a white suite. The property is offered chain-free and benefits from an EPC rating of C, double glazing and electric storage heaters — note these can mean higher heating costs compared with gas central heating.
Notable considerations: the flat is small (approximately 546 sq ft), in an area recording higher crime levels, and sits in a medium flood-risk zone. The lease has around 99 years remaining from the original term, and the building dates from the late 1990s/early 2000s. The interior will benefit from cosmetic updating for long-term improvement and rental appeal.
Overall this is a well-located, low-maintenance flat with immediate access to Newbury amenities and station. It suits buyers seeking an affordable, central property to occupy or let, provided they are comfortable with electric heating, the short‑to‑medium lease length and local area considerations.
2 bedroom flat for sale in Newbury, Berkshire, RG14 — £225,000 • 2 bed • 2 bath • 710 ft²
2 bedroom flat for sale in Old College Road, Newbury, RG14 — £310,000 • 2 bed • 1 bath • 855 ft²
2 bedroom flat for sale in Harbury Court, Newbury RG14 7NQ, RG14 — £165,000 • 2 bed • 1 bath • 528 ft²
2 bedroom flat for sale in Newbury, Berkshire, RG14 — £195,000 • 2 bed • 1 bath • 635 ft²
2 bedroom flat for sale in Weir House, Overbridge Square, Newbury, RG14 5BP, RG14 — £225,000 • 2 bed • 2 bath • 655 ft²
2 bedroom flat for sale in Newbury, Berkshire, RG14 — £220,000 • 2 bed • 2 bath • 753 ft²


































