FY8 5TH - 6 bed spacious lytham quays home in Fylde, FY8 5TH

View on Property Piper

6 bedroom detached house for sale in Victory Boulevard, Lytham St. Annes, FY8

Summary - Victory Boulevard, Lytham St. Annes, FY8 FY8 5TH

6 bed 4 bath Detached

Substantial six-bedroom residence with south-facing garden and double garage near seafront.
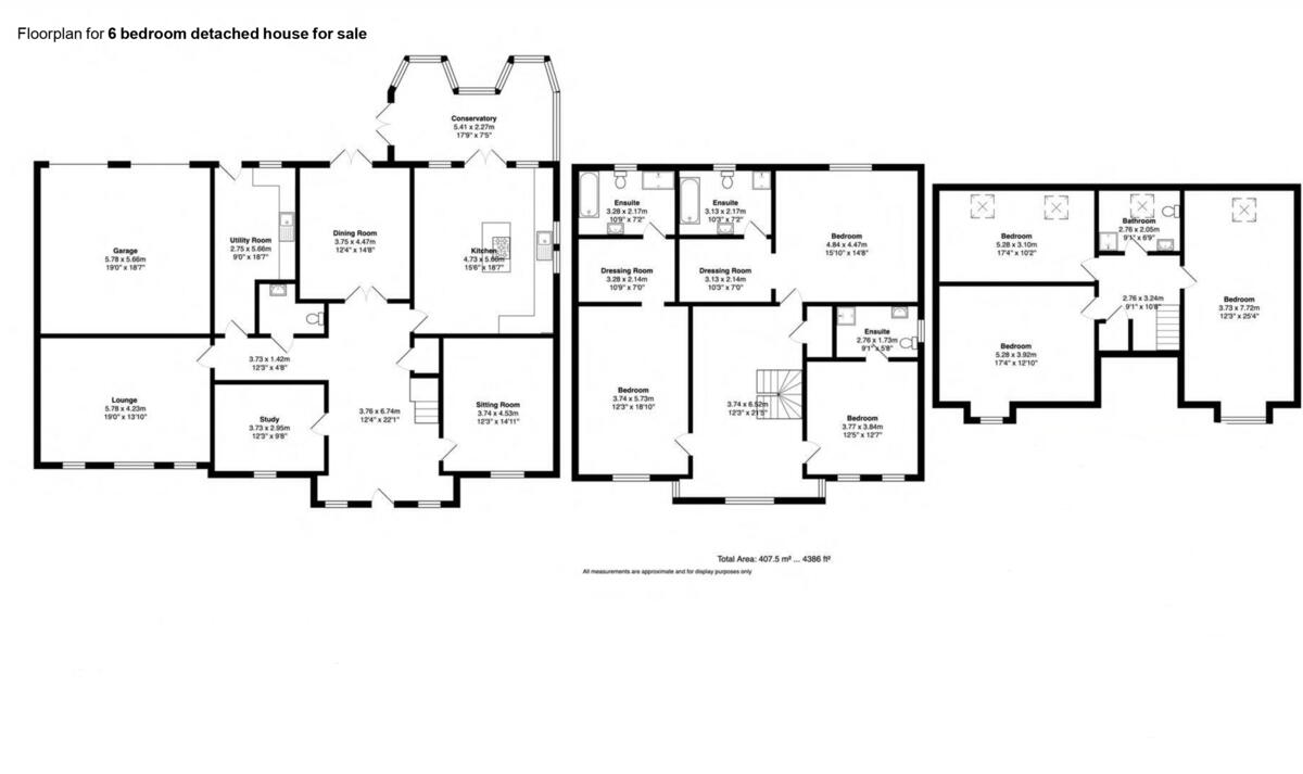
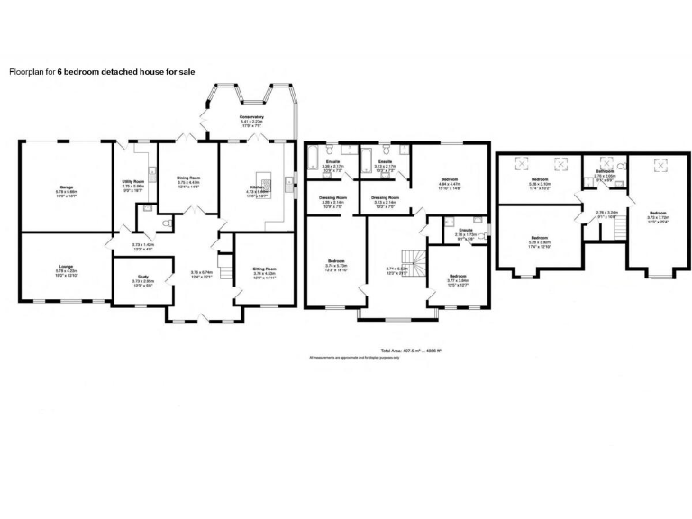
Over 4,300 sq ft of living space
Set within the sought-after Lytham Quays development, this impressive three-storey detached house offers substantial family living across more than 4,300 sq ft. The layout includes a grand entrance and gallery landing, three reception rooms plus a conservatory, a large kitchen with utility, and a dedicated study — flexible spaces for formal entertaining and everyday family life.

Six double bedrooms and four contemporary bathrooms are arranged over the upper floors, giving excellent sleeping and storage capacity for a growing or multi-generational household. A private south-facing garden delivers sunny outdoor space while a gated driveway and substantial double garage provide secure parking and storage. Broadband is fast and mobile signal excellent, useful for home working and connectivity.

Location is a key asset: a short stroll to Lytham town centre, shops, cafés, and the seafront, and close to several well-rated primary and secondary schools including two top-10% state primaries. The property sits in a very affluent area favoured by white professionals and aspiring urban households, with low flood risk and average local crime levels.

Important practical note: the property is offered as a leasehold. Specific lease length and any service charges are not stated and should be confirmed early in the buying process. The house is chain free, but potential buyers should allow for the maintenance and running costs of a large detached family home of this scale.

Property Details

Image Descriptions

Floorplan Description

Rooms

Textual Property Features

Target Audience

AI Tags

Detected Visual Features

Nearby Schools

Nearest Bars And Restaurants

,,,,}

Nearest General Shops

,,}

Nearest Grocery shops

,,}

Nearest Supermarkets

,,}

Nearest Religious buildings

,,}

Nearest Medical buildings

,,,}

Nearest Leisure Facilities

,,,,}

Nearest Tourist attractions

,,}

Nearest Train stations

,,,,}

Nearest Bus stations and stops

,,,,}

Nearest Hotels

,,}

Tags

Local Market Stats

AirBnB Data

Similar Properties

Meta

High Res Images

Compatible Images

Low res Images

Thumbnails

Raw Images

High Res Floorplan Images

Compatible Floorplan Images

Low res Floorplan Images

FloorplanImages Thumbnail

Raw Floorplan Images