Well-presented 3-bed semi with gated parking and gardens — chain free in Headington.
Chain-free three-bedroom semi-detached home, ready to move into
Gated off-street parking space provides secure parking
Front and rear gardens; plot is small
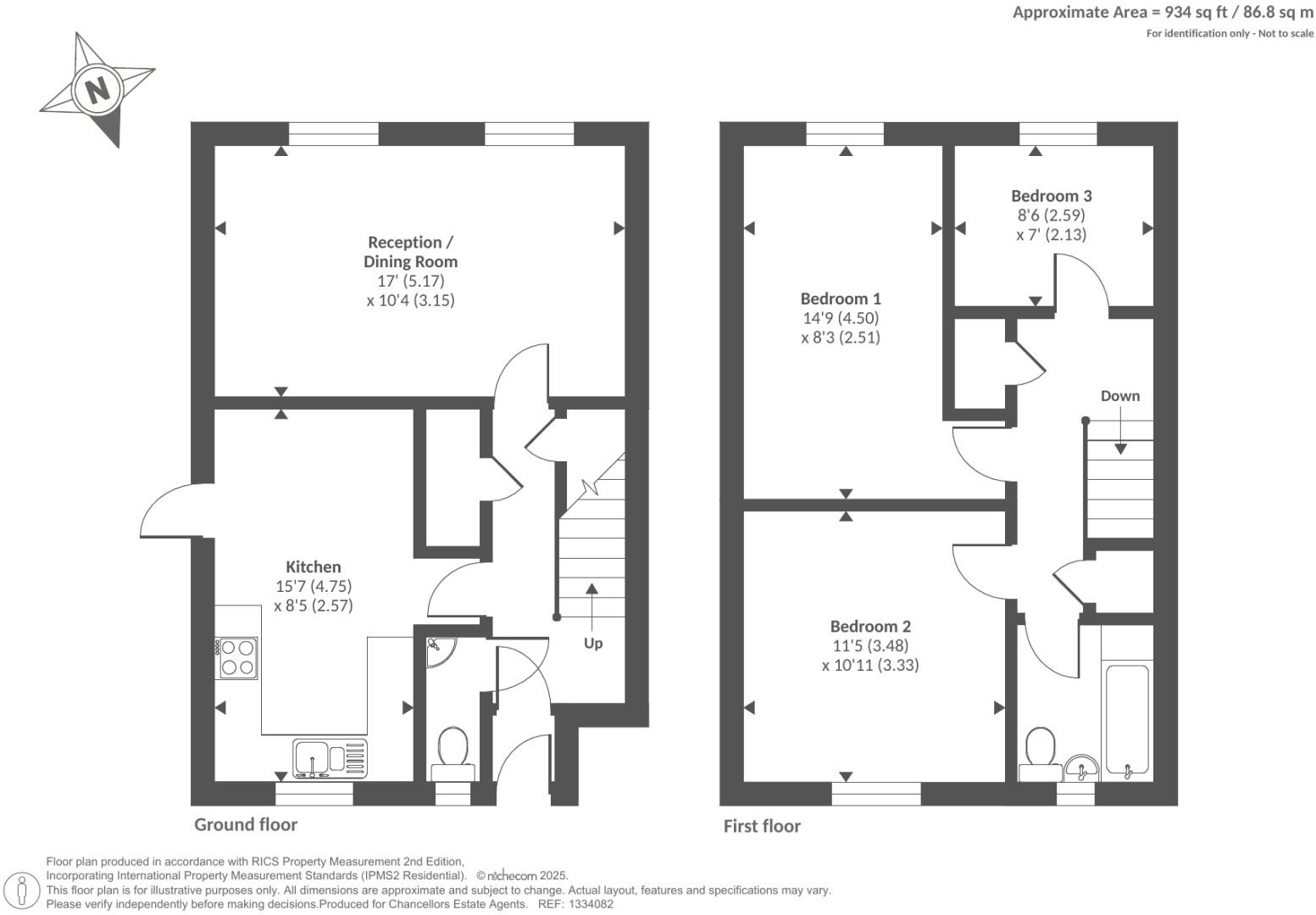
Approximately 934 sq ft across two storeys
Single family bathroom only
Built in 1980s; double glazing install date unknown
Mains gas boiler and radiators; practical but not newly upgraded
Local crime rate above average — factor for buyers
This well-presented three-bedroom semi-detached home in Headington is offered chain-free and ready to move into. The property benefits from a gated off-street parking space, both front and rear gardens, and a bright reception room with dual-aspect windows — practical features for everyday family life.
Accommodation is arranged over two storeys and totals about 934 sq ft, with a kitchen/breakfast room, three good-sized bedrooms and a single family bathroom. The house dates from the 1980s, has mains gas central heating with a boiler and radiators, and double glazing (install date unknown), so it is functionally modern but may not match contemporary efficiency standards.
Location is convenient for local schools rated Good, frequent bus routes and city amenities; broadband is fast and mobile signal is excellent. Notable drawbacks are the small plot size and above-average local crime rates, which should be considered by buyers. There is only one bathroom and limited external space, which may affect larger families or those seeking extensive gardens.
Overall this property suits buyers looking for a ready-to-live-in family home or an investor seeking a well-located, low-maintenance house in OX3. Cosmetic updates or targeted efficiency improvements could add value, while the chain-free status makes for a potentially straightforward purchase.
3 bedroom semi-detached house for sale in Elton Close, Headington, Oxford, OX3 — £425,000 • 3 bed • 2 bath • 845 ft²
3 bedroom semi-detached house for sale in Old Barn Ground, Headington, Oxford, OX3 — £450,000 • 3 bed • 2 bath • 820 ft²
3 bedroom terraced house for sale in Headington, Oxford, OX3 — £375,000 • 3 bed • 2 bath • 936 ft²
3 bedroom semi-detached house for sale in Headington, Oxford, OX3 — £475,000 • 3 bed • 2 bath • 1026 ft²
3 bedroom semi-detached house for sale in Headington, Oxfordshire, OX3 — £400,000 • 3 bed • 3 bath • 839 ft²
3 bedroom semi-detached house for sale in Headington, Oxford, OX3 — £300,000 • 3 bed • 1 bath • 1042 ft²


















































































