Garage, driveway and west-facing garden close to Oxford commuter routes.
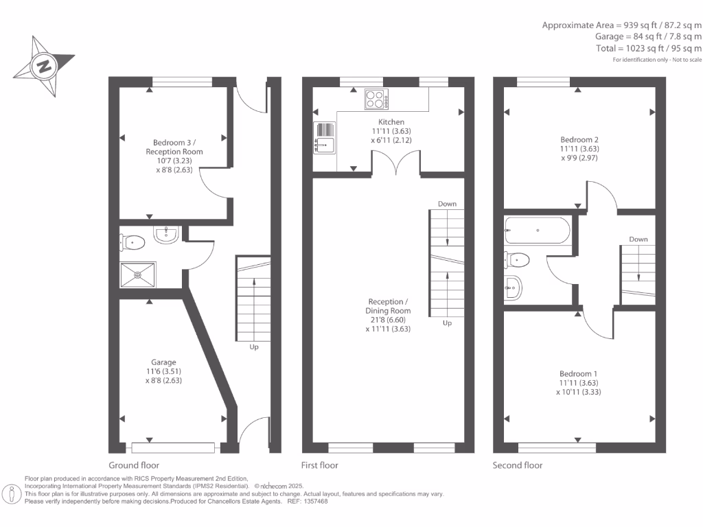
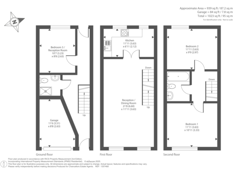
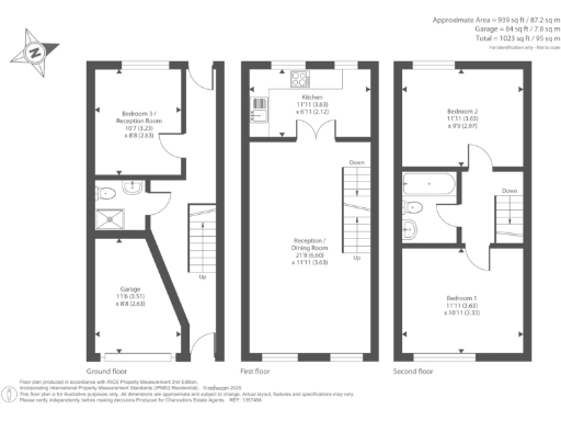
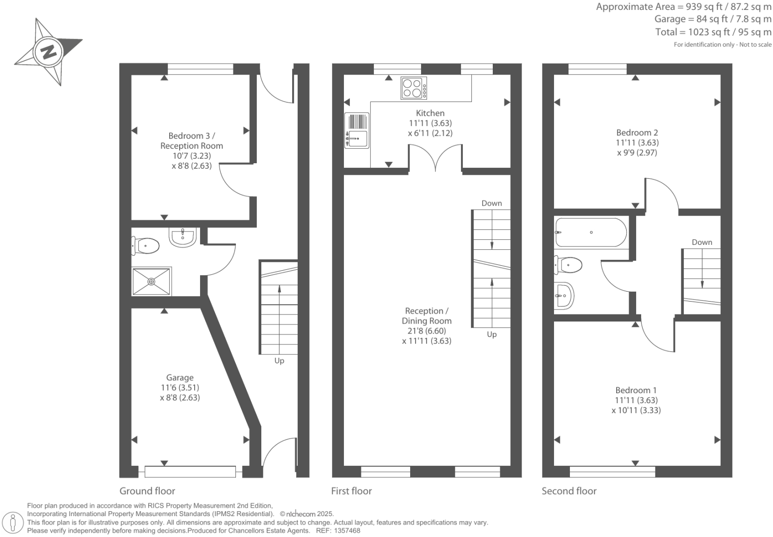
Chain-free three-bedroom mid-terrace townhouse
Offered chain-free, this three-storey mid-terrace townhouse provides practical space for first-time buyers who want immediate entry to the Headington market. The property includes three double bedrooms across the upper levels, a family bathroom and a ground-floor shower room, so it suits small families or sharers.
Light floods the open-plan living and dining floor through large windows; a separate kitchen opens onto a west-facing patio garden for afternoon sun. Driveway parking and an integral garage are practical assets in this part of Oxford, and the A40/M40 and regular bus routes give straightforward access to the city centre and commuter routes.
The house dates from the late 1960s/1970s and retains mid-century styling. It will reward modest updating — examples include older double glazing (pre-2002), assumed cavity walls without added insulation and general cosmetic modernisation. The plot is small and the property is a typical mid-terrace footprint, so buyers should expect limited outdoor space and standard room sizes.
Nearby schools include strong local primaries and well-regarded independent options, making the location suitable for families starting out. Broadband speeds are fast and the area is very affluent overall, though local classification indicates many private renters and recent arrivals. Council tax levels are described as affordable.
3 bedroom terraced house for sale in Green Ridges, Headington, Oxford, OX3 — £350,000 • 3 bed • 1 bath • 966 ft²
3 bedroom end of terrace house for sale in Turner Close, Oxford, Oxfordshire, OX4 — £430,000 • 3 bed • 1 bath • 724 ft²
3 bedroom terraced house for sale in Bridge Street, Oxford, Oxfordshire, OX2 — £500,000 • 3 bed • 2 bath • 968 ft²
4 bedroom semi-detached house for sale in Headington, Oxford, OX3 — £475,000 • 4 bed • 2 bath • 1608 ft²
3 bedroom end of terrace house for sale in Ablett Close, East Oxford, OX4 — £460,000 • 3 bed • 1 bath • 762 ft²
3 bedroom semi-detached house for sale in London Road, Headington, Oxford, OX3 9EJ, OX3 — £600,000 • 3 bed • 1 bath • 1506 ft²






















































































































































