**Standout Features:**
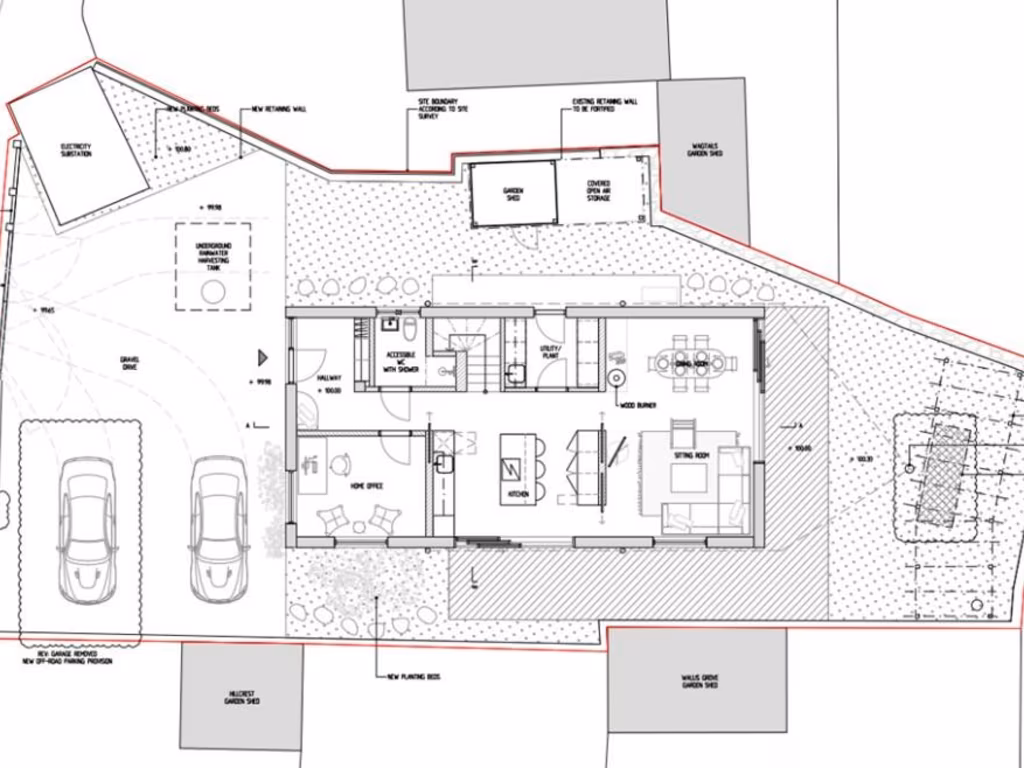
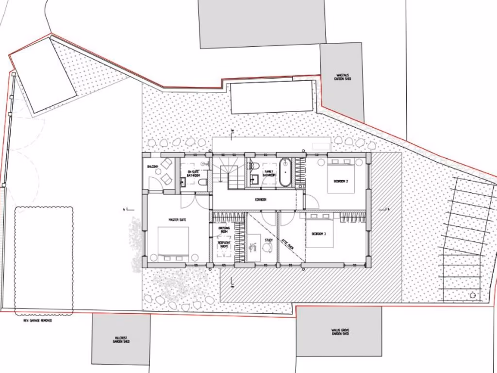
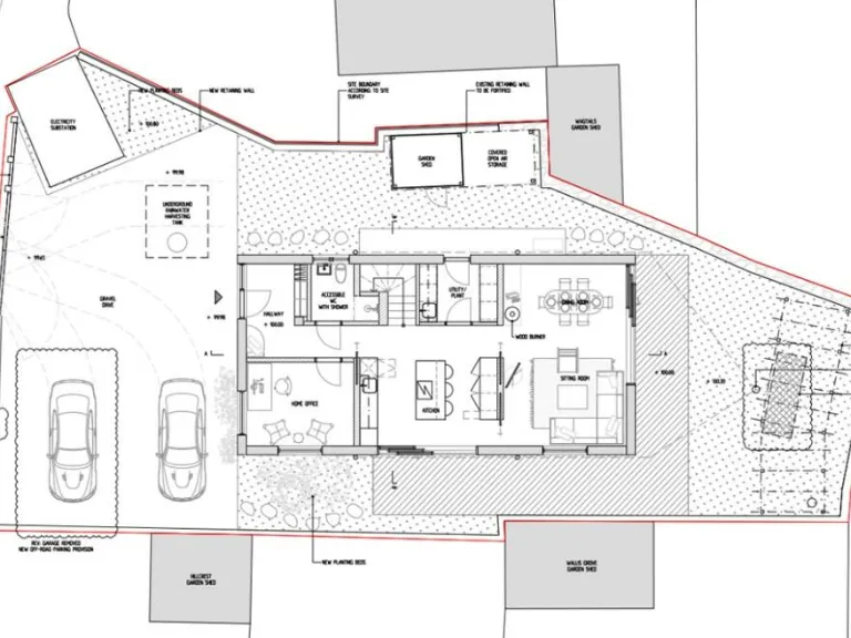
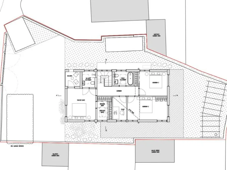
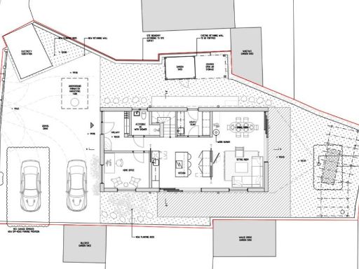
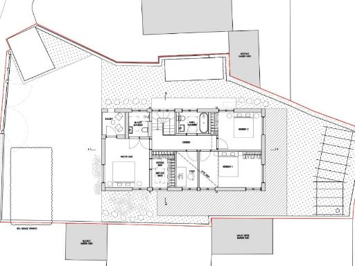
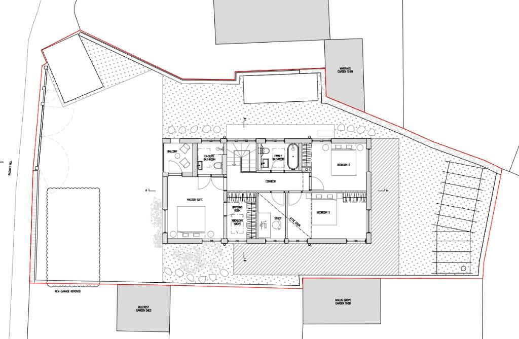
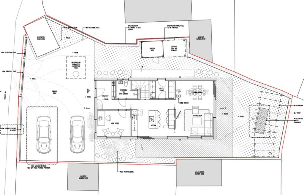
- Reserved matters planning approved for a two-storey, 3-bedroom house with study.
- Located in the picturesque village of Bishopsteignton, near the Teign Estuary.
- Spacious plot size of approximately 362sqm (0.09 acres) with potential for gardens.
- Designed layout offers modern living with an open plan layout and superb views.
- No associated S106 agreement; CIL liability potential for exemptions.
**Concise Summary:**
Discover an exceptional opportunity to build your dream home in the charming village of Bishopsteignton, with stunning views overlooking the Teign Estuary. This freehold building plot, measuring about 362sqm, comes with reserved matters planning approval for a contemporary two-storey three-bedroom dwelling featuring a study, an inviting open plan kitchen/dining/living area, and generous outdoor space for gardens. Conveniently situated just a short walk from local amenities, including shops and schools, this tranquil and affluent location balances rural charm with essential conveniences.
Potential buyers will appreciate the energy-efficient plans, including air source heating, PV panels, an EV charger, and rainwater harvesting. With a guide price of £162,000, this is an ideal investment for families, self-build enthusiasts, or anyone looking to make the most of the thriving Devon countryside. Don’t miss out on this unique opportunity—seize the chance to create a bespoke living space in a community-oriented environment while enjoying a picturesque lifestyle.
Land for sale in Self Build Plot 4, Bradley Bends, Bovey Tracey, TQ13 — £180,000 • 3 bed • 1 bath • 8396 ft²
Land for sale in Self Build Plot 6, Bradley Bends, Bovey Tracey, TQ13 — £185,000 • 5 bed • 1 bath • 8396 ft²
Land for sale in Self Build Plot 7, Bradley Bends, Bovey Tracey, TQ13 — £185,000 • 5 bed • 1 bath • 8396 ft²
Land for sale in 32 Monserrat Rise, Torquay, TQ2 — £100,000 • 1 bed • 1 bath • 3800 ft²
Property for sale in Self Build Plot 30, 2 bed, Elm Park, Exeter, EX2 — £120,000 • 1 bed • 1 bath
Land for sale in 33 Monserrat Rise, Torquay, TQ2 — £100,000 • 1 bed • 1 bath • 1447 ft²






































