Private mature garden, garage and extension potential for growing families.
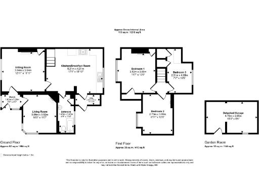
Three bedrooms with original period features and open fire
This charming three-bedroom period cottage sits in a highly sought-after Wyfold village setting, framed by mature hedging and far-reaching countryside views. The house retains original character including a sitting room with open fire, separate living room, and a country-style kitchen/breakfast room, all arranged over two storeys. A detached single garage (currently with light and power) offers parking and home‑office potential.
The plot is a key selling point: a private, well-established rear garden with extensive patio areas, mature trees and lawns provides excellent outdoor space for family life and entertaining. There is gated side access and a gravelled driveway that comfortably accommodates off-road parking. The property also offers scope to extend, subject to the usual planning consents, which will appeal to buyers wanting to add value or reconfigure living space.
Buyers should note the practical considerations: the current EPC rating is in band E, cavity walls appear uninsulated and there is a shared septic tank drainage arrangement. The home has one family bathroom and may benefit from modernization to improve energy performance and layout. Council tax is above average for the area. Services are mains electricity and gas with fast broadband available.
Overall, this is a characterful village cottage best suited to families or buyers seeking a country retreat with scope to upgrade. It combines privacy and generous garden space with convenient access to Henley and Reading and local schools, while offering clear potential for improvement and extension for those prepared to invest.
3 bedroom semi-detached house for sale in Wyfold Cottages, Wyfold, Reading, Oxfordshire, RG4 — £625,000 • 3 bed • 1 bath • 1292 ft²
3 bedroom semi-detached house for sale in Wyfold Cottages, Wyfold, RG4 — £750,000 • 3 bed • 1 bath • 1175 ft²
3 bedroom terraced house for sale in Culham Lane, Upper Culham, RG10 — £600,000 • 3 bed • 1 bath • 1151 ft²
3 bedroom semi-detached house for sale in Kiln Hill, White Waltham, Maidenhead, SL6 — £775,000 • 3 bed • 2 bath • 1110 ft²
2 bedroom detached house for sale in Stoke Row Road, Henley On Thames, RG9 — £750,000 • 2 bed • 1 bath • 1066 ft²
3 bedroom semi-detached house for sale in Park Corner, Nettlebed, Henley-On-Thames, RG9 — £745,000 • 3 bed • 1 bath • 1172 ft²


































































