Period character, large garden and powered studio — ideal for downsizers.
Vaulted kitchen/breakfast room with exposed beams and character features
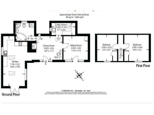
Reception/dining room with working wood-burning stove
Two double bedrooms on first floor, light and garden-facing
Large surrounding lawned garden with raised patio and mature borders
Powered outside studio/home office included
Private off-street driveway parking for several vehicles
Solid brick walls likely without modern insulation—may increase heating costs
Slow broadband speeds in the area; services/fittings untested
A charming two-bedroom detached cottage set well back from the road, Smith Cottage blends period character with practical living. The vaulted kitchen/breakfast room and a reception room with a working wood-burning stove provide warm, sociable ground-floor living, while two double bedrooms sit quietly on the first floor. Outside, a generous lawned garden, raised patio and a powered studio/home office extend the usable space and appeal to hobbyists or remote workers.
The plot and parking are strong practical assets: private off-street parking for several vehicles and a large garden create room for outdoor entertaining, gardening and flexible uses. The studio with mains power is ready for immediate use as a home office, creative space or storage. Local amenities, good-rated primary and secondary schools, and proximity to Henley-on-Thames add lifestyle and resale appeal.
Important practical points: the house is an older, solid-brick build (circa 1900–1929) with assumed no cavity insulation in the walls, so heating costs could be higher than modern homes. Broadband speeds are slow in this location, which may affect heavy home-working without an alternative solution. There is a single bathroom serving two bedrooms. Buyers should note that services, fixtures and fittings have not been tested.
This property suits someone looking to downsize into a character home with a generous garden, or a buyer who values a ready-made studio and off-street parking. It offers scope to improve energy efficiency and modernise services, while retaining the cottage’s period charm and a convenient position close to Henley’s amenities.
3 bedroom cottage for sale in Beamond End, Amersham, HP7 — £1,100,000 • 3 bed • 2 bath • 1562 ft²
2 bedroom detached house for sale in SOUTH OXFORDSHIRE/BERKSHIRE BORDER *Dunsden picturesque hamlet, RG4 — £700,000 • 2 bed • 1 bath • 1228 ft²
2 bedroom cottage for sale in Henley-On-Thames, Oxfordshire, RG9 — £575,000 • 2 bed • 2 bath • 913 ft²
2 bedroom detached house for sale in Shiplake Bottom, Peppard Common, Henley-on-Thames, Oxfordshire, RG9 — £450,000 • 2 bed • 1 bath • 875 ft²
2 bedroom terraced house for sale in Under The Wood, Bisham, SL7 — £500,000 • 2 bed • 2 bath • 1023 ft²
3 bedroom detached house for sale in 18 Great Hampden, Great Missenden, HP16 — £1,150,000 • 3 bed • 2 bath • 1774 ft²










































































































































