Rare consented plot for 22 apartments near transport links and seafront.
- Full planning permission for 22 apartments with parking
- Large / massive town-centre plot, flexible development scope
- Priced at £750,000 for a consented scheme
- Close to transport links, retail and leisure amenities
- Area classified very deprived; local crime rated very high
- Tenure not specified — purchaser must verify title and covenants
- Mobile signal excellent; broadband speeds average
- No recorded flood risk on the site
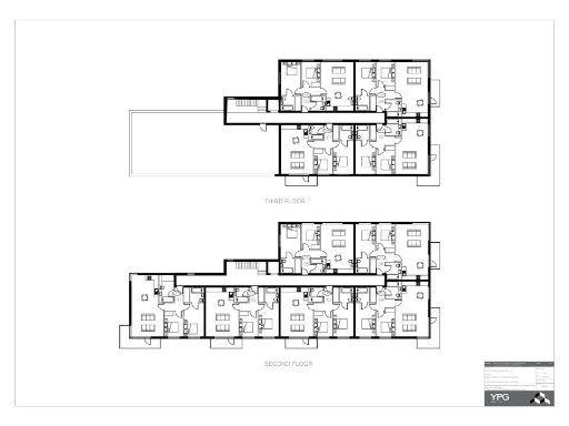
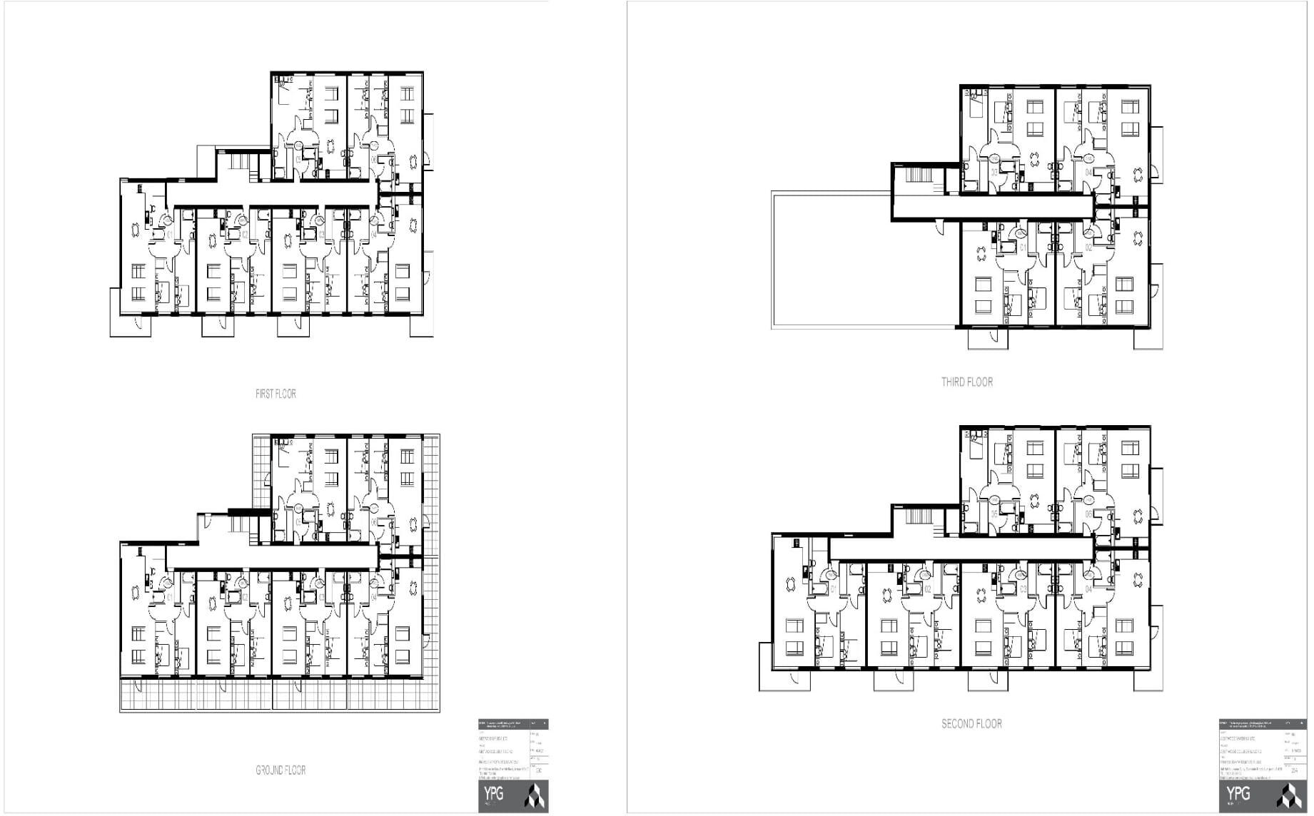
A rare, consented development opportunity in central Scarborough with full planning permission for 22 new apartments and parking. The sizeable plot adjoins Westwood Annexe and sits within easy walking distance of shops, transport links and local leisure amenities — a convenient location for town-centre rental demand and commuter access.
The scheme is immediately actionable thanks to full planning consent, reducing early-stage entitlement risk. The large site footprint gives flexibility in phasing, parking layout and unit mix, and contemporary architectural drawings suggest a modern, multi-storey façade suited to urban apartment living.
Buyers should note material considerations: the surrounding area is classified as very deprived and records very high crime levels, which will affect rental profile, management costs and sales comparables. Tenure is not stated and prospective purchasers must confirm ownership and any covenants. Broadband speeds are average; mobile signal is excellent. There is no flood risk recorded.
This opportunity is aimed at specialist developers or investors prepared to underwrite refurbishment, management and neighbourhood mitigation measures. With careful design, management and marketing, the consenting position and central location offer a clear route to yield and capital growth, though sensitive tenant profiling and security investment will be important to achieve optimal returns.
Commercial property for sale in 20-21, Westborough, Scarborough, YO11 1UH, YO11 — £820,000 • 1 bed • 1 bath • 7903 ft²
Block of apartments for sale in Block of Apartments at Westborough, Scarborough, North Yorkshire, YO11 — £300,000 • 1 bed • 1 bath • 1089 ft²
6 bedroom block of apartments for sale in North Marine Road, Scarborough, North Yorkshire, YO12 — £595,000 • 6 bed • 6 bath
Residential development for sale in Alga Terrace, Scarborough, YO11 — £300,000 • 5 bed • 1 bath • 6636 ft²
Commercial property for sale in 2 Alma Parade, Scarborough, North Yorkshire, YO11 1SJ, YO11 — £60,000 • 1 bed • 1 bath • 528 ft²
Residential development for sale in 135-141 Victoria Road, Scarborough, YO11 — £700,000 • 1 bed • 1 bath • 23684 ft²














































