Chain-free Victorian site with council feedback favouring substantial redevelopment.
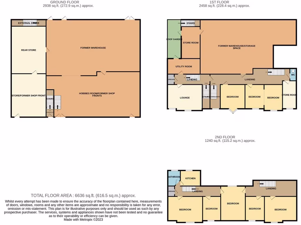
Extremely large 6,636 sq ft building over three floors plus attic
A substantial Victorian-era building in Scarborough’s popular South Cliff, offered chain-free and ripe for redevelopment. The property totals approximately 6,636 sq ft across three existing floors (with attic) and sits one street back from The Esplanade, with rear vehicular access and off-street parking. Vendors report council correspondence indicating a favourable attitude to significant redevelopment, potentially up to five floors; buyers must verify specific permissions.
The building is in visible disrepair and currently boarded up. It requires full refurbishment or demolition and reconstruction; the interior has large warehouse-style floorplates rather than domestic gardens or external amenity. There is clear potential for apartments, a mixed-use scheme or period-style houses, but all works, surveys and planning are the buyer’s responsibility.
Practical positives include excellent mobile and broadband connectivity, central access to shops, The Spa and cliff lift, and no flood risk. Material drawbacks: the site lies in a very deprived area with above-average crime, is derelict and unsafe to enter without risk, and tenure details are unspecified. The property is sold as seen; prospective purchasers must carry out their own due diligence and obtain confirmation of planning and legal matters before purchase.
Detached house for sale in West Street, Scarborough, YO11 — £350,000 • 1 bed • 1 bath • 3084 ft²
Detached house for sale in Marlborough Street, Scarborough, YO12 — £300,000 • 1 bed • 1 bath • 14400 ft²
2 bedroom flat for sale in Prince Of Wales Terrace, Scarborough, YO11 — £90,000 • 2 bed • 1 bath • 1027 ft²
2 bedroom apartment for sale in Prince of Wales Terrace, Scarborough, North Yorkshire, YO11 — £90,000 • 2 bed • 1 bath • 1027 ft²
13 bedroom terraced house for sale in 7 Blands Cliff, Scarborough, North Yorkshire YO11 1NR, YO11 — £100,000 • 13 bed • 13 bath • 3273 ft²
22 bedroom detached house for sale in Ryndle Crescent, Scarborough, North Yorkshire, YO12 — £630,000 • 22 bed • 21 bath • 7847 ft²


























































