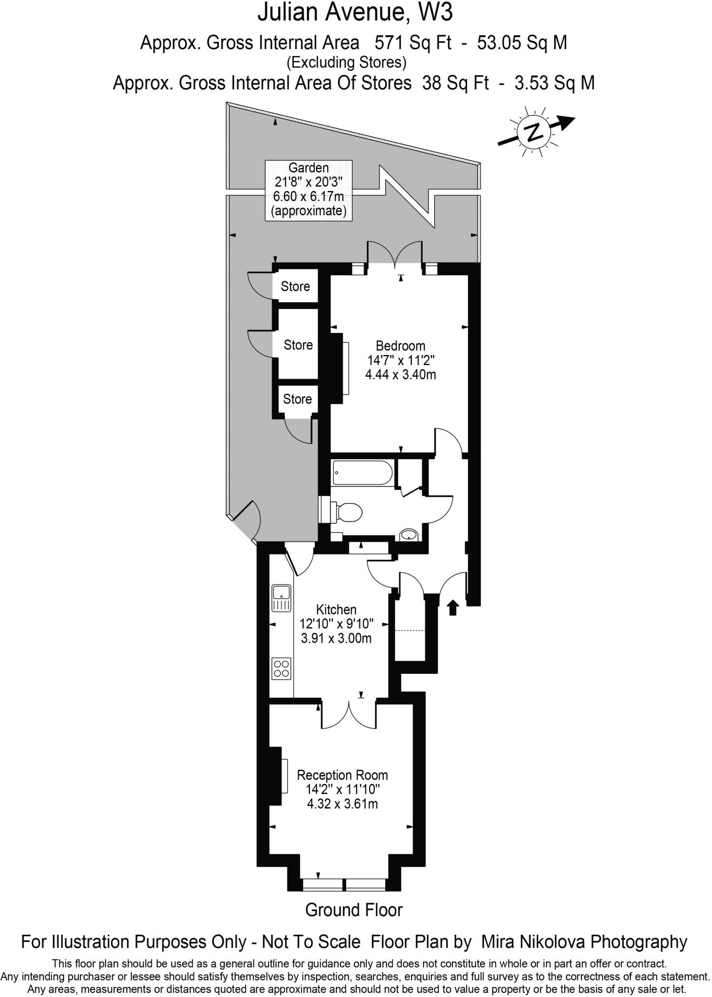
**Standout Features:**
- One-bedroom ground floor flat with 600 sq ft of living space
- Bright east-facing reception room and separate modern kitchen
- West-facing double bedroom with private garden access
- Three spacious external storage cupboards
- Private garden with a sunny, enclosed patio area
- Excellent transport links: 0.4 miles from Acton Main Line (Elizabeth Line)
- Located in a quiet residential area with low crime rates
**Summary:**
This inviting one-bedroom ground floor flat in the heart of W3 combines comfort and practicality, making it a perfect choice for first-time buyers or savvy investors. Spanning just under 600 sq ft, the property features a spacious east-facing reception room, a separate kitchen ideal for dining, and a generous west-facing double bedroom with direct access to a lovely private garden—perfect for enjoying outdoor moments.
The three external storage cupboards offer rare convenience in London living, providing ample space for bikes, tools, and household items. Set in a peaceful residential neighborhood with outstanding schools nearby—such as St Vincent's Catholic Primary School and Ark Soane Academy—and essential amenities just around the corner, you will appreciate the lifestyle here. With fast broadband and excellent mobile signals, work-from-home days will be a breeze. This gem won't stay on the market for long—embrace the opportunity to make this stylish flat your new home or investment!
1 bedroom apartment for sale in Hereford Road, Acton, W3 — £399,950 • 1 bed • 1 bath • 378 ft²
1 bedroom flat for sale in Essex Road, London, W3 — £500,000 • 1 bed • 1 bath • 611 ft²
1 bedroom flat for sale in Essex Road, Acton, London, W3 — £350,000 • 1 bed • 1 bath • 529 ft²
1 bedroom flat for sale in Acacia Road, London, W3 — £450,000 • 1 bed • 1 bath • 541 ft²
1 bedroom flat for sale in Lynton Road, Acton, W3 — £465,000 • 1 bed • 1 bath • 597 ft²
2 bedroom flat for sale in Horn Lane, Acton,W3 — £450,000 • 2 bed • 1 bath • 739 ft²










































