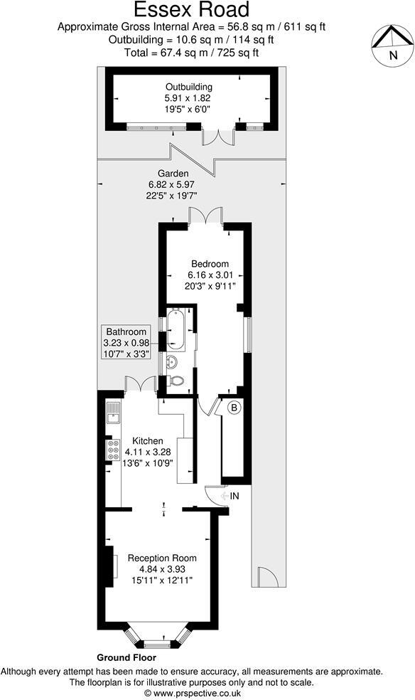
**Standout Features:**
- One-bedroom ground floor flat, 611 sq.ft (56.8 sq.m)
- Private rear garden with a summer house/studio
- Share of freehold, no onward chain
- Located near Acton Main Line station (Elizabeth Line)
- Potential to extend (subject to planning permission)
- Close to vibrant Churchfield Road and local amenities
This charming one-bedroom garden flat offers an inviting urban retreat, perfect for young families and couples. Spanning over 611 sq.ft, it features a bright reception room accented by a stunning Victorian bay window and high ceilings, creating an airy atmosphere. The modern kitchen, spacious double bedroom, and bathroom add to the appeal, while the private rear garden—accessible from both the kitchen and bedroom—provides a serene outdoor escape, complete with a summer house ideal for a home office or creative space.
Situated just a six-minute walk from Acton Main Line, this property affords remarkable transport links to central London destinations, making it perfect for commuters. With a share of freehold and the exciting potential for extension (STPP), this flat not only offers immediate comfort but also an opportunity for future personalization. While the property features solid brick walls and a classic design, potential buyers should be aware that insulation options may be limited. However, the vibrant community life, excellent schools, and nearby amenities enhance its desirability. Don’t miss out on this unique gem in an increasingly popular area!
1 bedroom apartment for sale in Hereford Road, Acton, W3 — £399,950 • 1 bed • 1 bath • 378 ft²
1 bedroom flat for sale in Essex Road, Acton, London, W3 — £350,000 • 1 bed • 1 bath • 529 ft²
1 bedroom flat for sale in Horn Lane, London, W3 — £350,000 • 1 bed • 1 bath • 568 ft²
1 bedroom flat for sale in Horn Lane, London, W3 — £375,000 • 1 bed • 1 bath • 547 ft²
2 bedroom flat for sale in Essex Road,Acton London, W3 — £625,000 • 2 bed • 1 bath • 802 ft²
1 bedroom apartment for sale in Julian Avenue, London, W3 — £400,000 • 1 bed • 1 bath • 600 ft²






















































