**Standout Features:**
- Spacious country bungalow on approx. 2 acres
- 3 well-proportioned bedrooms and 3 reception rooms, including a conservatory
- Stunning farmhouse-style kitchen with a feature red AGA range
- Integral double garage with potential for annexe conversion (subject to consent)
- Large driveway with ample parking
- Mature gardens and paddock offering potential for agricultural use
- Located 1.5 miles from Newcastle Emlyn with access to local amenities
**Potential Concerns:**
- Subject to agricultural occupancy restrictions
- Requires typical maintenance for rural properties, particularly regarding heating and water supply (oil-fired central heating, private borehole)
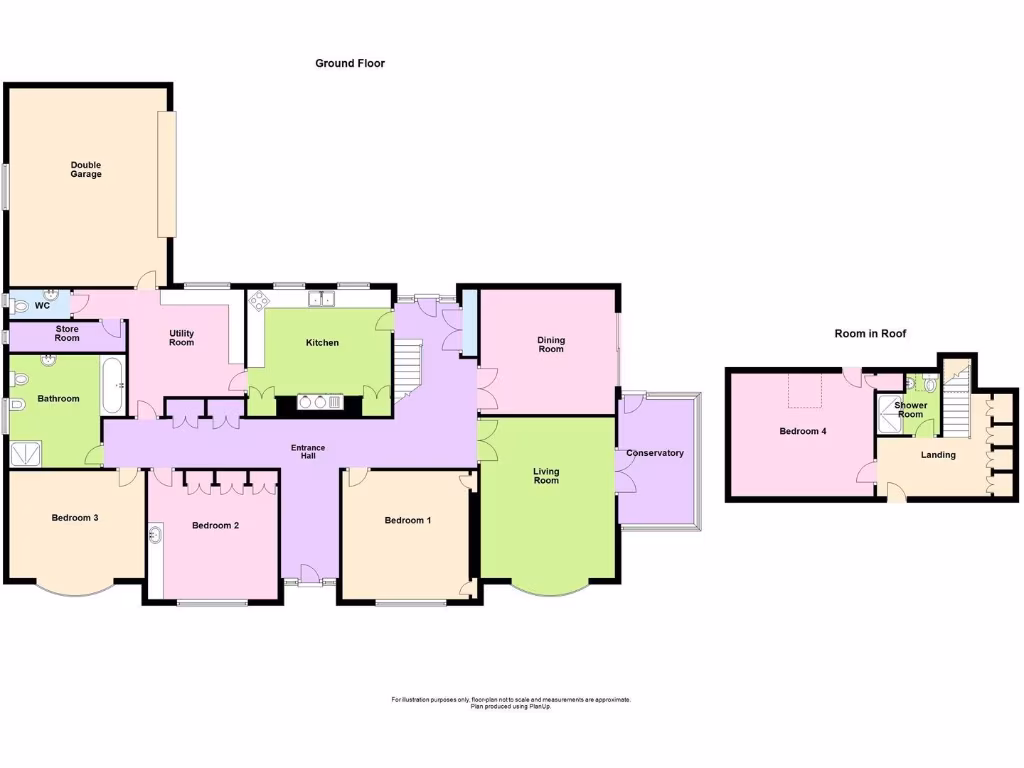
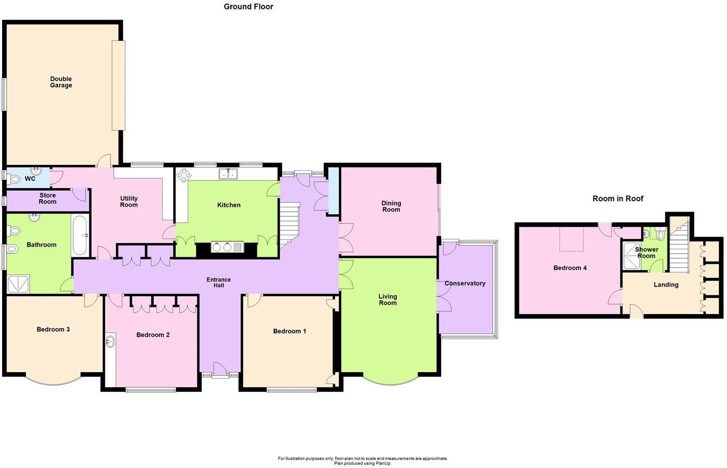
This superior country bungalow presents an enticing opportunity for families seeking a tranquil rural lifestyle or investors looking for potential rental options. With 2 acres of picturesque land, this spacious home features a charming kitchen with solid oak fittings and an AGA range that serves as the heart of the home. The expansive living areas, complemented by a conservatory, provide ample room for relaxation and entertaining. The double garage enhances functionality, with the option to convert it into an annexe or additional living space, opening possibilities for multi-generational living or guest accommodation.
Nestled just 1.5 miles from the bustling market town of Newcastle Emlyn, residents will appreciate the blend of rural charm and accessibility to local amenities. Enjoy the expansive gardens and serene countryside views, while recognizing the home’s maintenance needs and agricultural occupancy stipulations. Don't miss out on this unique property that combines comfort, potential, and a truly idyllic setting—grab the chance to make it yours!
3 bedroom detached bungalow for sale in Teifi Valley, Llanybydder, SA40 — £325,000 • 3 bed • 1 bath • 1600 ft²
3 bedroom bungalow for sale in Pentrehedyn, Adpar, Newcastle Emlyn, SA38 — £370,000 • 3 bed • 3 bath • 1400 ft²
3 bedroom detached bungalow for sale in Llangynog, Carmarthen, SA33 — £600,000 • 3 bed • 1 bath • 1751 ft²
3 bedroom smallholding for sale in Capel Iwan Road, Newcastle Emlyn, SA38 — £525,000 • 3 bed • 1 bath • 1284 ft²
3 bedroom bungalow for sale in Capel Iwan, Newcastle Emlyn, SA38 — £335,000 • 3 bed • 2 bath • 1206 ft²
3 bedroom detached house for sale in Blaen-Cil-Llech, Newcastle Emlyn, SA38 — £320,000 • 3 bed • 2 bath • 2714 ft²










































































































































































