Prime plot and approved plans for a bespoke countryside family home.
Gated driveway with attached garage and off-road parking
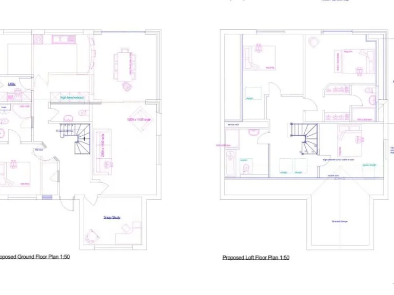
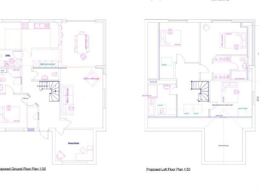
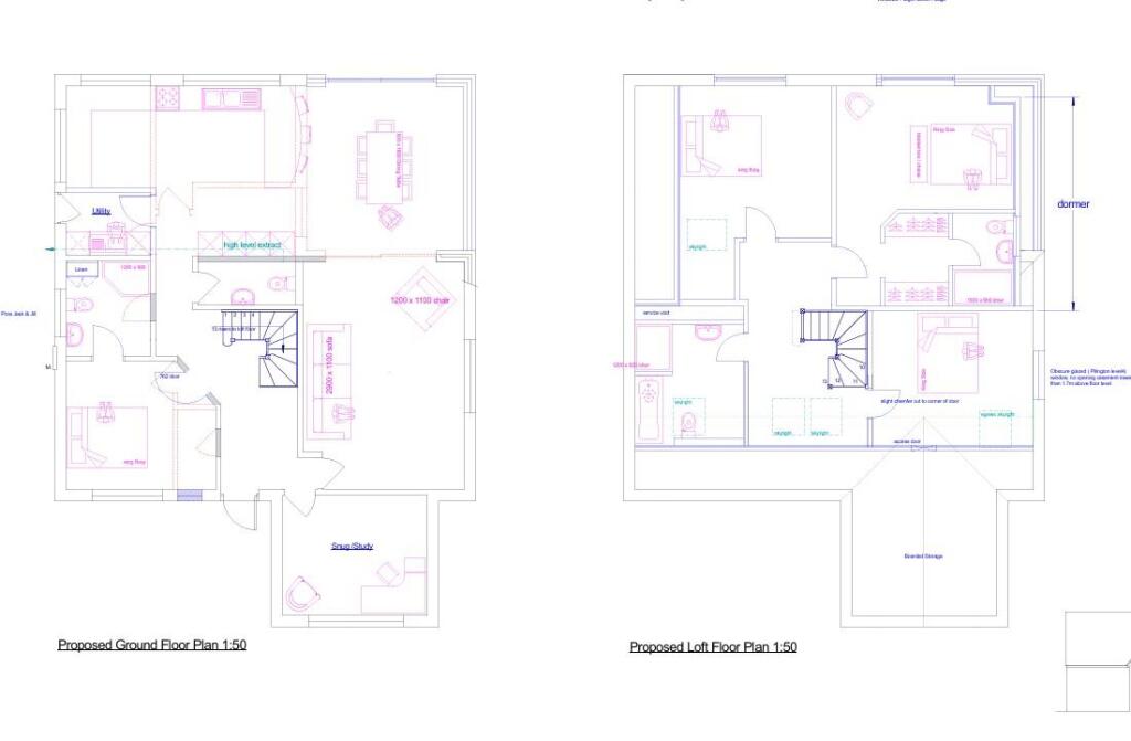
Planning permission granted for major extension and loft conversion
Private mature garden backing onto open arable fields
Requires renovation throughout; scope for immediate works
Previously affected by surface-water flooding in 2007; inspect and insure
Single bathroom; footprint currently single-storey 3-bed bungalow
Freehold sale with no onward chain
Council tax band above average
Set on a private gated drive and backing directly onto arable fields, this detached three-bedroom bungalow offers immediate development potential with planning permission granted for a substantial extension and loft conversion (approved drawings include a dormer). The existing footprint provides a solid starting point: sitting room with bay, separate dining room, kitchen, three bedrooms, bathroom and utility/cloakroom, plus an attached garage and generous rear garden. The plot’s countryside outlook and privacy are the property’s strongest assets.
The house requires renovation throughout. Buyers can start work straight away under the approved plans to create a larger family home with panoramic rear views, or undertake a more modest refurbishment to improve the current single-storey layout. Practical points: mains gas, water, drainage and electricity are available; fibre broadband and excellent mobile signal are possible; the tenure is freehold and the sale has no onward chain.
Be candid about a previous surface-water flood event recorded in 2007; current risk is classified as very low, but buyers should satisfy themselves and consider appropriate insurance and drainage solutions as part of any contract. Council tax is above average and the property dates from the 1950s–60s, so expect period maintenance and updating (heating via mains-gas boiler and radiators, double glazing installed post-2002).
For families or purchasers seeking a countryside project, the location is strong: within walking distance of Winchcombe centre, the Cotswold Way and local schools rated Good. The combination of a sizeable plot, approved development plans and immediate possession creates a rare opportunity to secure a bespoke home in a sought-after area.
3 bedroom bungalow for sale in Mercia Road, Winchcombe, Cheltenham, Gloucestershire, GL54 — £500,000 • 3 bed • 2 bath • 1187 ft²
2 bedroom bungalow for sale in Kenelm Rise, Winchcombe, GL54 — £325,000 • 2 bed • 1 bath • 956 ft²
4 bedroom bungalow for sale in Winstone, Gloucestershire, GL7 — £620,000 • 4 bed • 2 bath • 1597 ft²
5 bedroom detached house for sale in Wincel Road, Winchcombe, Gloucestershire, GL54 — £650,000 • 5 bed • 2 bath • 1997 ft²
4 bedroom detached house for sale in Gretton Road, Winchcombe, GL54 — £700,000 • 4 bed • 2 bath • 1394 ft²
4 bedroom detached house for sale in Rathmore Close, Winchcombe, Gloucestershire, GL54 — £475,000 • 4 bed • 1 bath • 1413 ft²










































































