Period character meets contemporary living near shops and station.
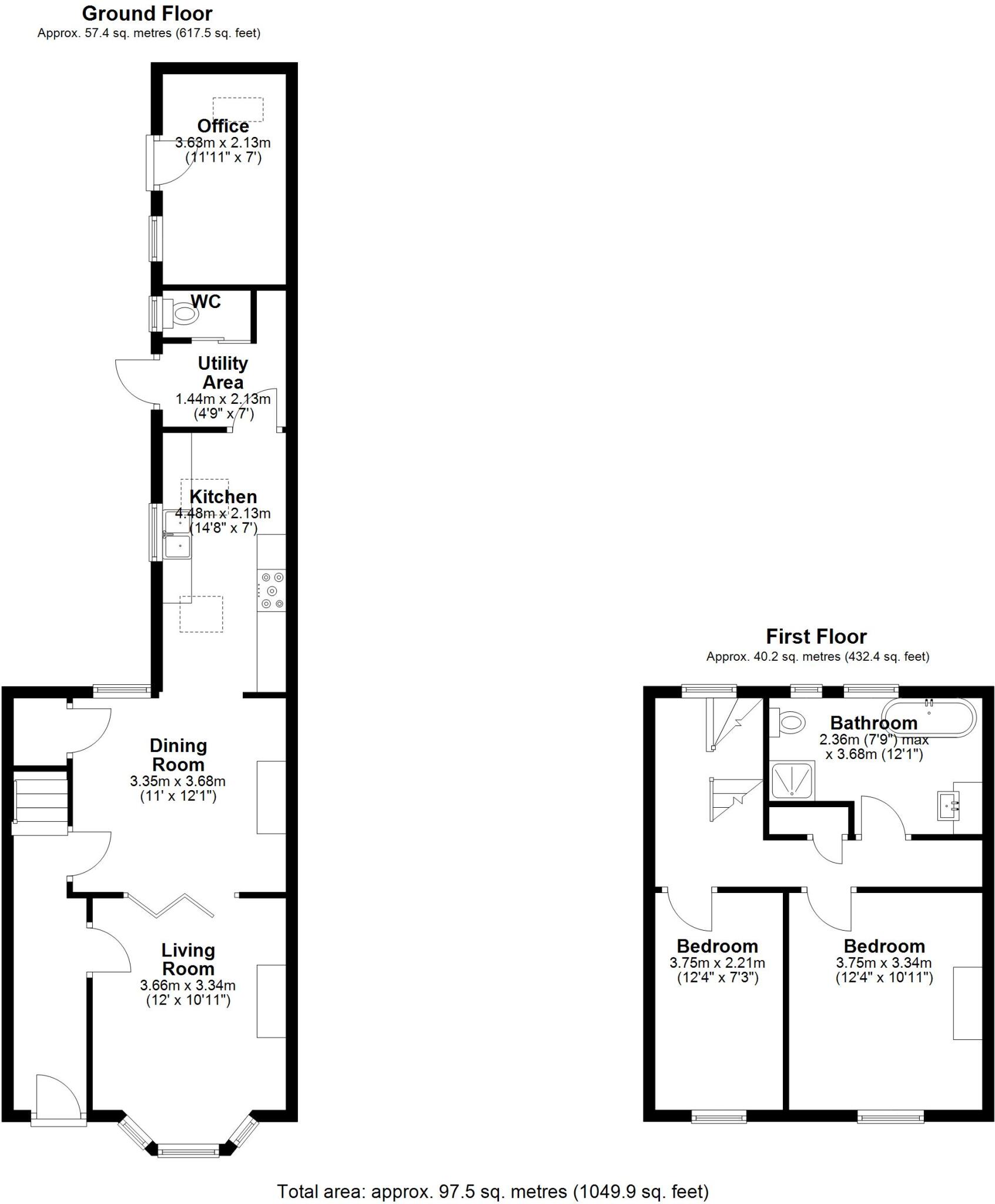
Victorian bay-windowed living room with high ceilings
Contemporary vaulted kitchen with skylights and marble worktops
Underfloor heating in parts and energy-efficient fittings
New garden studio/guest room with power and heating
Two sun decks plus generous lawn and workshop shed
Off-street parking and driveway to the front
Single main bathroom only; one bath and separate shower
Neighbouring pedestrian right of way; area records above-average crime
This stylish two-bedroom Victorian semi sits a short walk from Saxmundham High Street and the railway station — ideal for families or buy-to-let buyers seeking strong local amenities. Period character remains in the bay-windowed living room and high ceilings, balanced by a contemporary, vaulted kitchen with skylights and Carrera marble worktops. The property is freehold, offers generous internal space (approximately 1,050 sq ft) and benefits from underfloor heating in parts.
Outside, the rear garden is a standout: a new studio/guest room with power and underfloor heating, two sun decks and a generous lawn give flexible space for home working, play or rental income. Off-street parking and a brick-built workshop/ potting shed add practical convenience. Nearby schools are well regarded and the town provides shops, cafes and transport links within easy walking distance.
Buyers should note a single main bathroom serves the house upstairs, and a neighbour retains a pedestrian right of way through an arched passage to the rear. Crime levels in the area are reported above average, which may concern some purchasers. Overall, this property offers a rare mix of period charm, modern upgrades and adaptable outdoor space — ready to move into or rent out with minimal work.
4 bedroom semi-detached house for sale in St. Johns Road, Saxmundham, IP17 — £375,000 • 4 bed • 2 bath • 1540 ft²
2 bedroom semi-detached house for sale in Saxmundham, IP17 — £237,500 • 2 bed • 1 bath
2 bedroom terraced house for sale in Chapel Road, Saxmundham, IP17 — £215,000 • 2 bed • 1 bath • 908 ft²
2 bedroom semi-detached house for sale in Albion Street, Saxmundham, IP17 — £190,000 • 2 bed • 1 bath • 713 ft²
2 bedroom semi-detached house for sale in Saxmundham, Suffolk, IP17 — £219,500 • 2 bed • 1 bath • 710 ft²
4 bedroom terraced house for sale in Saxmundham, Suffolk, IP17 — £550,000 • 4 bed • 2 bath • 3000 ft²


























































































