**Standout Features:**
- 5 Double Bedrooms, each with ensuite bathrooms
- Expansive 30'4" Kitchen Diner with bifold doors
- Contemporary living spaces with log burner fireplace
- Off-street parking for two vehicles plus a garage
- West-facing garden, ideal for afternoon sun
- Located within a prestigious executive village development
- Brand new build – NO CHAIN!
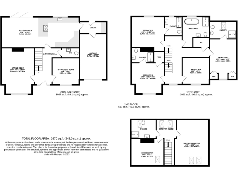
This stunning 5-bedroom detached house in the charming village of Scampton offers the perfect blend of modern luxury and family-friendly design. Boasting high specifications throughout, the home features an impressive kitchen diner that opens seamlessly to a spacious west-facing garden. The property’s layout includes a home office/playroom and a comfortable sitting room with a cozy log burner, providing ample space for relaxation and entertainment.
With five generous double bedrooms, all equipped with ensuites, this home is perfect for larger families or those seeking guest accommodations. The substantial master suite on the second floor includes an 18ft bedroom and a 13ft dressing room, which could be repurposed as a sixth bedroom if needed. Outside, the driveway leads to a garage, ensuring practical storage and convenience.
Situated in a tranquil, rural community, this property also boasts easy access to well-rated local schools and is surrounded by essential amenities. Offering no chain and immediate availability, this home presents a remarkable opportunity for families seeking comfort and style in a picturesque setting. Don’t miss out – schedule your viewing today!
4 bedroom detached house for sale in Plot 11, 617 Court, Scampton, Lincoln, LN1 — £525,000 • 4 bed • 3 bath • 2498 ft²
6 bedroom detached house for sale in 617 Court, High Street, LN1 — £550,000 • 6 bed • 4 bath • 2782 ft²
5 bedroom detached house for sale in Oakwell Close, Skellingthorpe, Lincoln, Lincolnshire, LN6 5AL, LN6 — £650,000 • 5 bed • 2 bath • 2443 ft²
4 bedroom detached house for sale in 617 Court, Scampton, Lincoln, Lincolnshire, LN1 — £595,000 • 4 bed • 3 bath • 2332 ft²
4 bedroom detached house for sale in Granary Court, Scampton, LN1 — £750,000 • 4 bed • 3 bath • 3947 ft²
4 bedroom detached house for sale in Granary Court, Scampton, LN1 — £775,000 • 4 bed • 3 bath • 3017 ft²






































































