NW7 3BH - 4 bedroom semidetached house for sale in Barnet Way, London…

View on Property Piper

4 bedroom semi-detached house for sale in Barnet Way, London, NW7

Summary - 8 BARNET WAY LONDON NW7 3BH

4 bed 2 bath Semi-Detached

**Standout Features:**
- Extended semi-detached Edwardian house
- Four spacious bedrooms, two bathrooms
- Modern eat-in kitchen with integrated appliances
- Well-kept private garden with side access
- Off-street parking, front garden space
- Located just 0.9 miles from Mill Hill Broadway Station
- Attractive family-friendly neighborhood with access to top schools

**Potential Concerns:**
- Average council tax band (E) and above-average council tax
- Broadband speed may be slower than desired

Transform your family living experience in this charming, extended semi-detached house nestled in the heart of Mill Hill. This Edwardian gem features four well-proportioned bedrooms and two bathrooms, ideal for accommodating growing families. The contemporary eat-in kitchen invites natural light, creating a warm atmosphere perfect for family meals, while the spacious lounge and conservatory provide ample relaxation and entertaining space.

Enjoy the tranquility of a beautifully landscaped rear garden with side access, plus the convenience of off-street parking. Set just 0.9 miles from Mill Hill Broadway Station and within a short walk to local bus routes, your commute and daily errands are effortlessly manageable. Top-rated schools, including Mill Hill County and Courtlands School, are nearby, making this the perfect location for families seeking educational excellence.

Although the property may require some updates, it offers incredible potential for future renovations or enhancements. Don’t miss out on this unique opportunity—homes of this caliber and charm in Mill Hill tend to go quickly!

Property Details

Image Descriptions

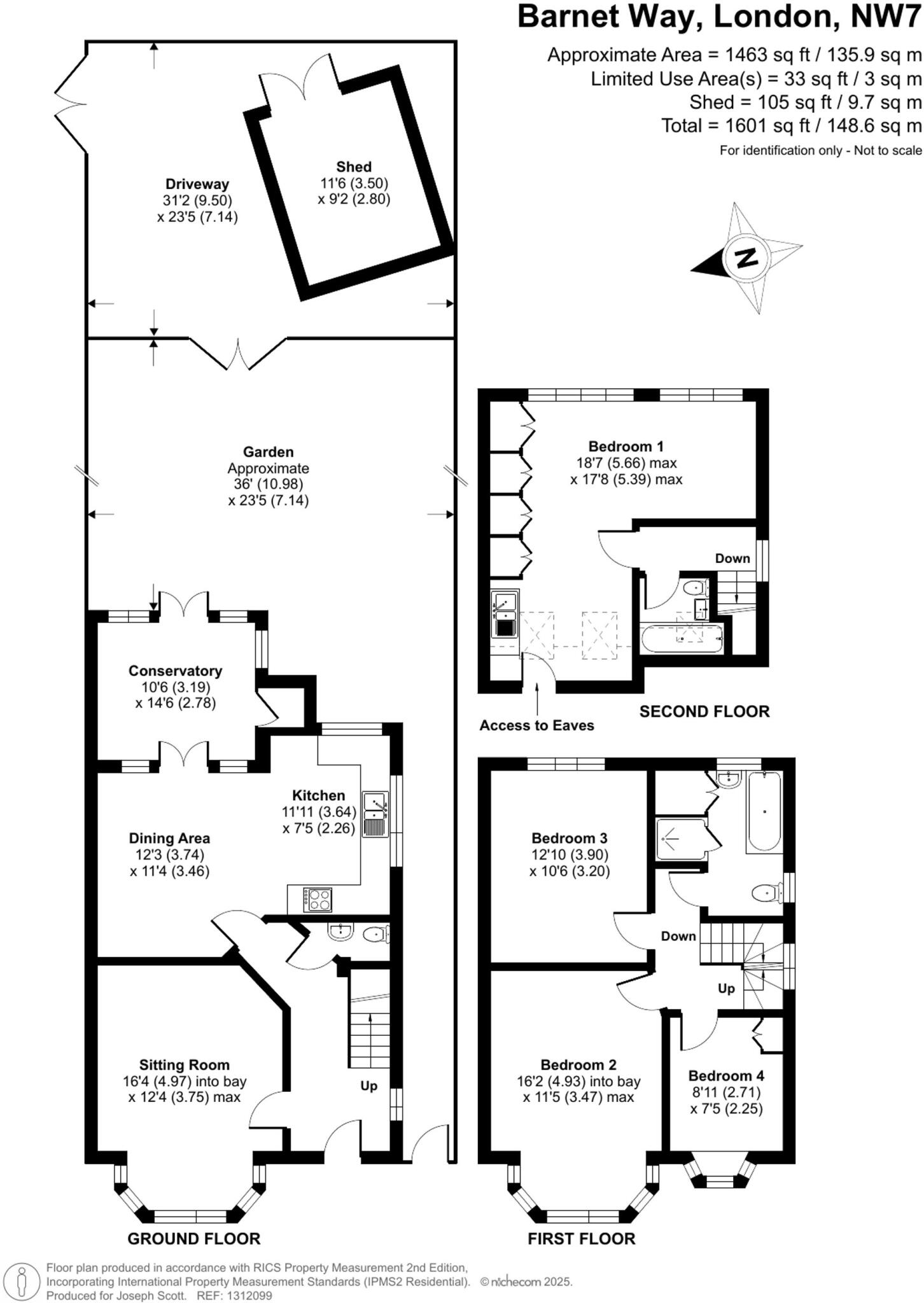
Floorplan Description

Rooms

Textual Property Features

Detected Visual Features

Nearby Schools

Nearest Bars And Restaurants

,,,,}

Nearest General Shops

,,}

Nearest Grocery shops

,,}

Nearest Supermarkets

,,}

Nearest Religious buildings

,,}

Nearest Medical buildings

,,,}

Nearest Airports

,}

Nearest Leisure Facilities

,,,,}

Nearest Tourist attractions

,,}

Nearest Train stations

,,,,}

Nearest Bus stations and stops

,,,,}

Nearest Hotels

,,}

Tags

Local Market Stats

AirBnB Data

Similar Properties

Meta

High Res Images

Compatible Images

Low res Images

Thumbnails

Raw Images

High Res Floorplan Images

Compatible Floorplan Images

Low res Floorplan Images

FloorplanImages Thumbnail

Raw Floorplan Images