**Standout Features:**
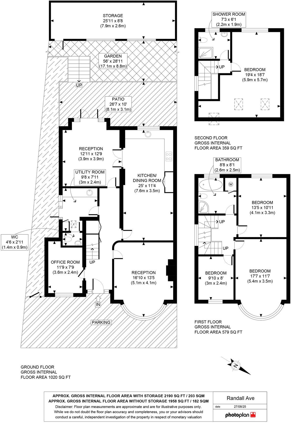
- Spacious semi-detached home with approximately 1,958 sq ft of living space
- Five bedrooms, including a loft-converted master with ensuite
- Extended kitchen/diner and separate ground floor office/bedroom
- Large 90-foot garden with patio and outbuilding, ideal for families
- Off-street parking for one vehicle
- Conveniently located near Gladstone Park and excellent transport links
This expansive semi-detached house on Randall Avenue is a true gem in Dollis Hill, offering ample room for families seeking comfort and convenience. With an impressive internal layout featuring five spacious bedrooms and a loft conversion that houses a luxurious master suite with ensuite, the home is designed for modern living. The ground floor boasts a stylish extended kitchen/diner, perfect for entertaining, along with multiple reception areas, including a unique office that can double as a guest bedroom.
Step outside to discover the generous 90-foot rear garden, complete with a patio area and outbuilding, creating a fantastic outdoor space for children to play or for hosting family gatherings. With gas central heating and double glazing throughout, this property is both cozy and efficient.
While the location offers easy access to local amenities, schools, and Gladstone Park, it's important to note that the property would benefit from some cosmetic updates, providing a perfect opportunity for buyers to add their personal touch and enhance its value further. This home truly embraces a family-friendly atmosphere with an enviable backyard, making it a must-see for anyone looking to secure a substantial and versatile property in a vibrant community. Don’t miss out on this rare opportunity—schedule a viewing today!
3 bedroom semi-detached house for sale in Randall Avenue, London, NW2 — £699,000 • 3 bed • 2 bath • 1345 ft²
3 bedroom house for sale in Randall Avenue, London, NW2 — £750,000 • 3 bed • 3 bath • 1292 ft²
4 bedroom house for sale in Randall Avenue, Cricklewood, NW2 — £750,000 • 4 bed • 2 bath • 1373 ft²
5 bedroom semi-detached house for sale in Dollis Hill Avenue, London, NW2 — £875,000 • 5 bed • 2 bath • 1597 ft²
5 bedroom semi-detached house for sale in Vincent Gardens, London, NW2 — £899,000 • 5 bed • 3 bath • 2349 ft²
5 bedroom semi-detached house for sale in Dollis Hill Lane, London, NW2 — £780,000 • 5 bed • 3 bath • 1742 ft²


























































