Chain‑free two-bedroom house near town and station, ready for modernisation.
South‑westerly garden with good daylight and privacy
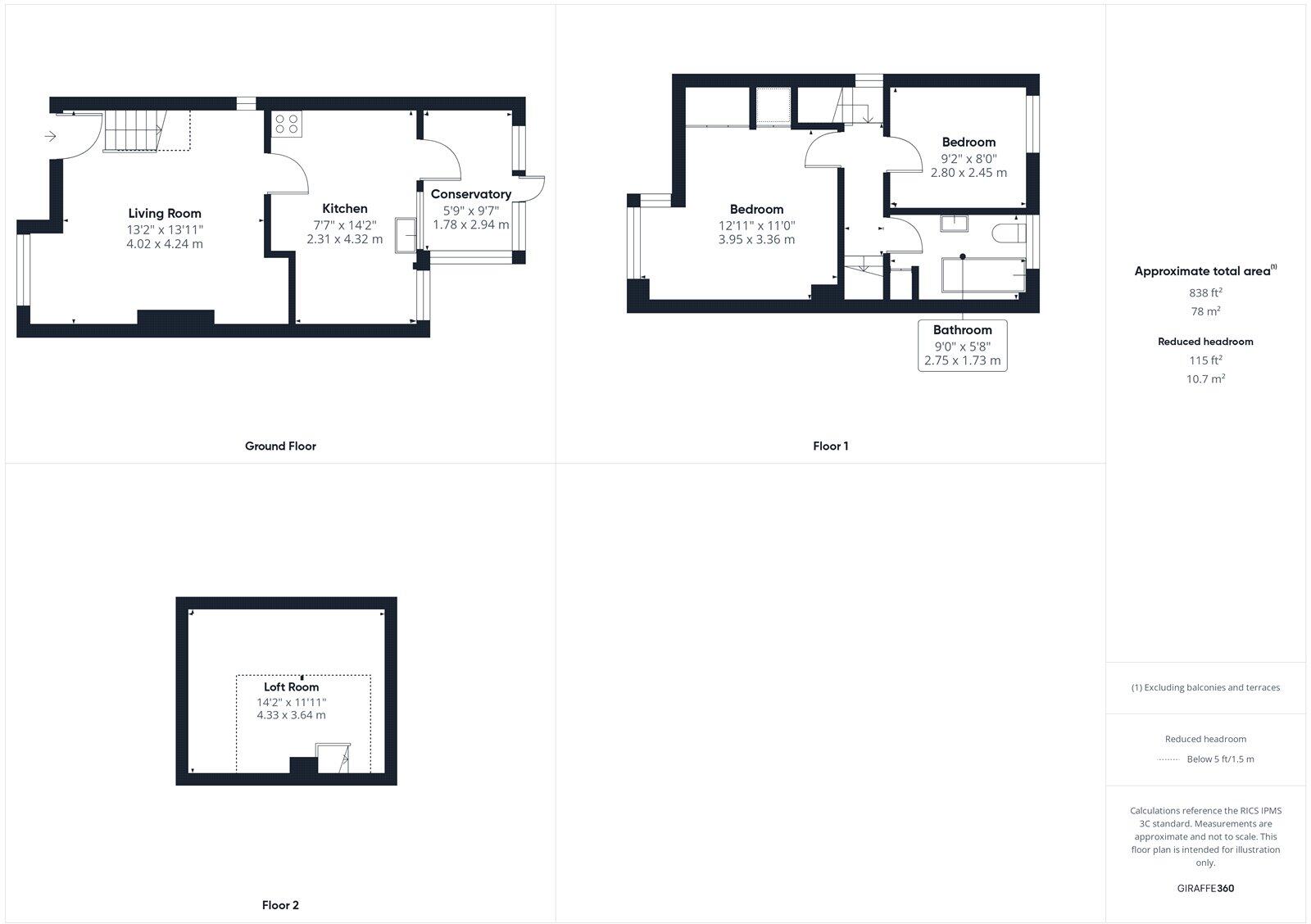
Set on a quiet cul-de-sac a short walk from Christchurch town centre and station, this two-bedroom end terrace offers clear potential for first-time buyers or buy-to-let investors. The ground floor has a generous living room with a feature bay and a conservatory overlooking a south‑westerly garden, bringing good natural light and flexible living space.
Upstairs are two comfortable bedrooms and a family bathroom; a versatile loft room provides useful extra space for a home office, hobby room or occasional third bedroom. The plot is small but practical, with scope to improve landscaping and create off-road parking subject to consents. The house is in the Twynham School catchment and lies in an area with low crime, fast broadband and excellent mobile signal.
The property requires renovation and modernisation throughout — cosmetic and likely some updating to kitchen, bathroom and decoration will be needed to realise its value. There is no flooding risk, tenure is freehold and the sale is chain free, which should help a speedy purchase and refurbishment programme.
Overall this is a well-positioned starter home or renovation project in an affluent, comfortable neighbourhood. Buyers seeking a ready-to-move-in home should note the work needed; those looking to add value will find good scope in layout and garden orientation.
3 bedroom end of terrace house for sale in Christchurch, BH23 — £325,000 • 3 bed • 2 bath • 716 ft²
3 bedroom semi-detached house for sale in Portfield Road, Christchurch, Dorset, BH23 — £370,000 • 3 bed • 2 bath • 773 ft²
2 bedroom end of terrace house for sale in Wilmar Close, Christchurch, BH23 — £300,000 • 2 bed • 1 bath • 757 ft²
2 bedroom end of terrace house for sale in Hunt Road, Christchurch, Dorset, BH23 — £285,000 • 2 bed • 1 bath • 779 ft²
2 bedroom end of terrace house for sale in Christchurch , BH23 — £400,000 • 2 bed • 1 bath • 640 ft²
2 bedroom semi-detached house for sale in Endfield Road, Christchurch, Dorset, BH23 — £300,000 • 2 bed • 1 bath • 638 ft²














































