Two-bed semi with large garden, parking and excellent school catchment; needs modernisation..
Two double bedrooms, both with storage potential
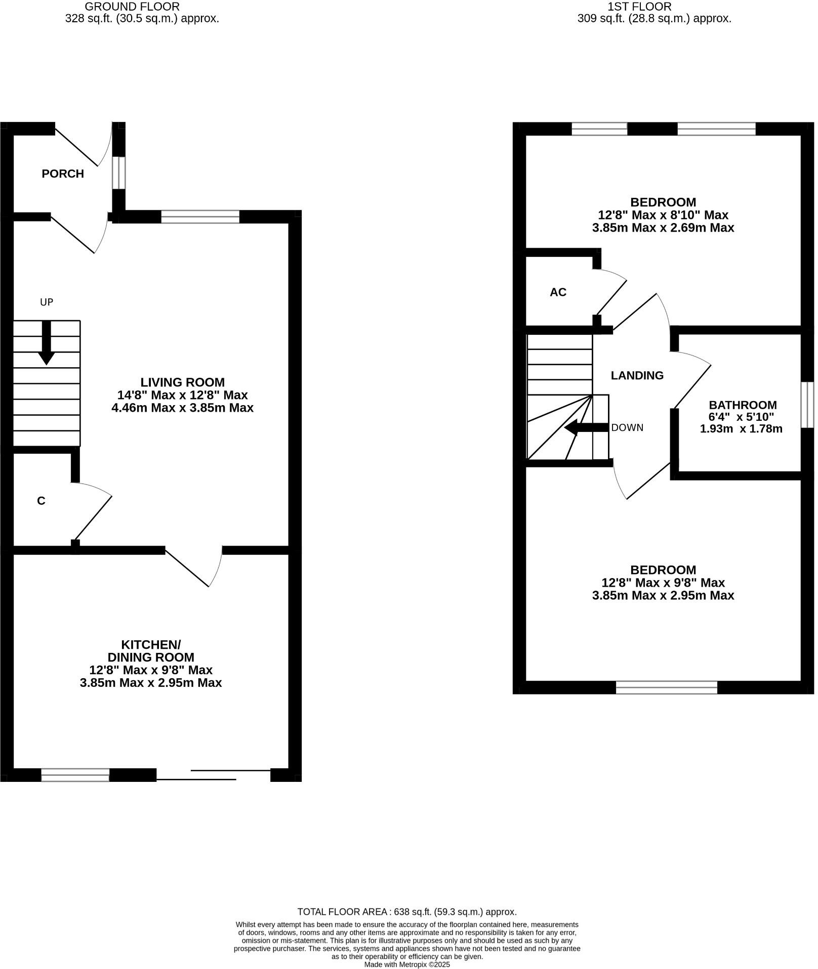
A two double-bedroom semi-detached home in a sought-after Christchurch location, offered with no forward chain and clear scope for improvement. The property sits on a large plot with a sunny, secluded rear garden and a driveway providing off-street parking. Its 638 sq ft layout includes a spacious living room and an open-plan kitchen/dining room that opens to the garden—good bones for a family reconfiguration or cosmetic update.
Positioned in a prime school catchment for all age ranges, this house will particularly appeal to families seeking convenient access to highly rated local schools and the town centre. The peaceful residential street is also within easy reach of St Catherine’s Hill nature reserve, local amenities, public transport and award-winning beaches.
Important practical points: the house requires modernisation throughout and the family bathroom would benefit from updating. The boiler is housed in a kitchen cupboard and should be inspected when surveying. Freehold tenure, low local crime and no flood risk add further reassurance, while the EPC remains to be confirmed.
This home is a clear candidate for buyers looking to add value through refurbishment or personalise a long-term family base close to schools and coastal attractions. Immediate vacant possession and a sizeable garden provide space and flexibility for growing families or those seeking outdoor entertaining areas.
2 bedroom semi-detached house for sale in Rodney Drive, Mudeford, Christchurch, Dorset, BH23 — £285,000 • 2 bed • 1 bath • 976 ft²
2 bedroom semi-detached house for sale in Library Road, Poole, Dorset, BH12 — £300,000 • 2 bed • 1 bath • 752 ft²
2 bedroom semi-detached house for sale in Canberra Road, Christchurch, BH23 — £379,950 • 2 bed • 1 bath • 692 ft²
2 bedroom end of terrace house for sale in Hunt Road, Christchurch, Dorset, BH23 — £285,000 • 2 bed • 1 bath • 779 ft²
3 bedroom semi-detached house for sale in Portfield Road, Christchurch, Dorset, BH23 — £400,000 • 3 bed • 2 bath • 773 ft²
2 bedroom semi-detached house for sale in Brisbane Road, Christchurch, Dorset, BH23 — £350,000 • 2 bed • 1 bath • 628 ft²


























































