HU10 6JX - 3 bed spacious 1930s semi in Carr Lane, HU10 6JX

View on Property Piper

3 bedroom semi-detached house for sale in Carr Lane, Willerby, Hull, HU10

Summary - 104 CARR LANE WILLERBY HULL HU10 6JX

3 bed 2 bath Semi-Detached

Well‑laid family home on a large plot with private garden and ample parking.
Three bedrooms with large family bathroom
Set on a large plot in sought-after Carr Lane, this 1930s semi offers three well-proportioned bedrooms and flexible living for family life. Two reception rooms create clear zones for dining and relaxation while the contemporary kitchen provides practical workspace. The generous rear garden is private and well-laid for play or entertaining; a driveway and garage deliver off-street parking for several vehicles.

Practical details suit everyday family needs: gas central heating (not tested), double glazing, freehold tenure and a moderate council tax band. Local amenities are within walking distance, including good primary and secondary schools and regular bus connections into Hull.

The house is presented as a comfortable, traditional family home and would suit buyers looking for move-in ready accommodation with scope to personalise. Buyers should note the property’s standard ceiling heights and average overall floor area (circa 949 sq ft), and are advised to commission a survey to check services and structure before purchase.

Property Details

Brochure Descriptions

Image Descriptions

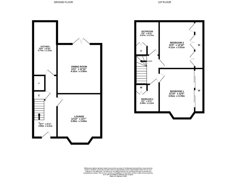
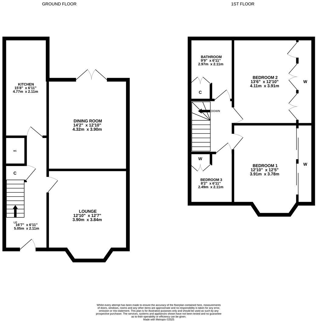
Floorplan Description

Rooms

Textual Property Features

Target Audience

AI Tags

Detected Visual Features

Nearby Schools

Nearest Bars And Restaurants

,,,,}

Nearest General Shops

,,}

Nearest Grocery shops

,,}

Nearest Supermarkets

,,}

Nearest Religious buildings

,,}

Nearest Medical buildings

,,,}

Nearest Airports

}

Nearest Leisure Facilities

,,,,}

Nearest Tourist attractions

,,}

Nearest Train stations

,,,,}

Nearest Bus stations and stops

,,,,}

Nearest Hotels

,,}

Tags

Local Market Stats

Similar Properties

Meta

High Res Images

Compatible Images

Low res Images

Thumbnails

Raw Images

High Res Floorplan Images

Compatible Floorplan Images

Low res Floorplan Images

FloorplanImages Thumbnail

Raw Floorplan Images