Bright family home near Streatham Common and fast transport links.
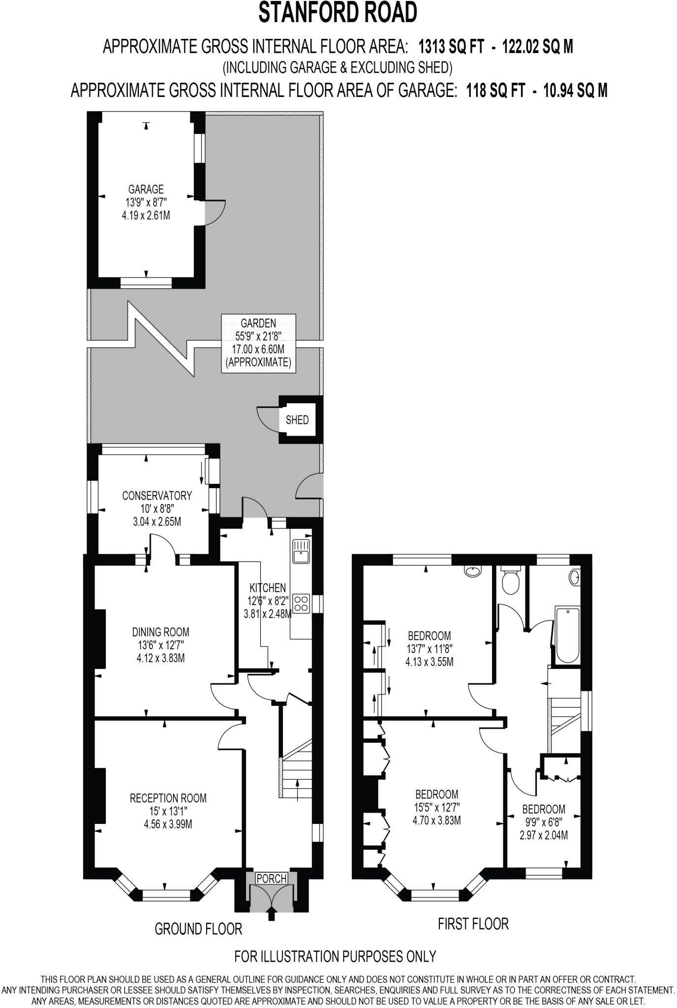
Three generous bedrooms across two floors, about 1,313 sq ft total
A well-presented three-bedroom end-of-terrace on Stanford Road, offered freehold and ready to move into. The house feels bright and spacious across its two floors, with a living/dining room that opens directly onto a wide, sunny rear garden — ideal for children and outdoor entertaining. A garage, side access and garden shed add practical storage and off-street parking.
The property has been newly renovated internally and totals about 1,313 sq ft, yet retains period character from its 1930s construction, including bay-windowed frontage and mid-century fireplace detail. There is clear scope to increase living space: the loft is boarded and suitable for extension, and further rear extensions may be possible, both subject to planning permission.
Practical details to note: the EPC is rated D and the original solid brick walls are assumed to lack insulation, so further works to improve thermal performance may be beneficial. There is one family bathroom and any large household will want to consider layout changes if more bathrooms are required. Transport, schools and local amenities are within easy reach, making this a sensible family purchase with future value-add potential.
3 bedroom end of terrace house for sale in Stanford Road, London, SW16 — £525,000 • 3 bed • 1 bath • 1313 ft²
4 bedroom house for sale in Stanford Road, London, SW16 — £750,000 • 4 bed • 2 bath • 1576 ft²
3 bedroom end of terrace house for sale in Stanford Road, London, SW16 — £525,000 • 3 bed • 1 bath • 1266 ft²
3 bedroom terraced house for sale in Stanford Way, London, SW16 — £400,000 • 3 bed • 1 bath • 852 ft²
3 bedroom terraced house for sale in Windermere Road, London, SW16 — £650,000 • 3 bed • 1 bath • 1143 ft²
3 bedroom house for sale in Stanford Road, London, SW16 — £525,000 • 3 bed • 1 bath • 1005 ft²


































