Character terrace with large sunny garden and strong value-add potential.
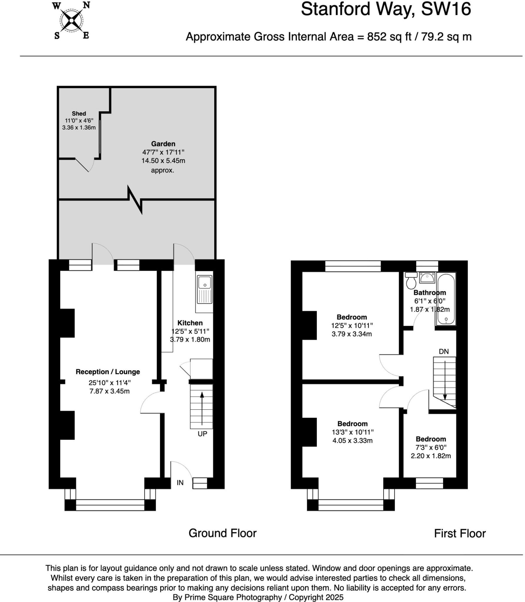
Freehold mid-terrace with three bedrooms and large double reception room
Southwest-facing rear garden just under 50 ft, very sunny
Opened reception spans over 25 ft, good natural light and proportions
Requires full renovation and refurbishment throughout
Potential structural concern at bay window — professional inspection advised
Possible loft and ground-floor extension potential (subject to consents)
Limited lending appeal in current condition; buyer needs funding available
Close to well-rated schools, parks, and good bus/rail links
This mid-terraced three-bedroom house on Stanford Way is a renovation project with strong upside for a buyer able to fund improvements. The property offers generous reception space, a sunny southwest-facing garden just under 50 ft, and period features such as a square bay window that add character and scope for repurposing.
Internally the layout includes a double reception opened into one long living area (over 25 ft), a galley kitchen, and three bedrooms (one small room suitable as an office or cot). The house benefits from good natural light, double glazing fitted after 2002, mains gas central heating and an EPC rating of C, but most of the interior and services require full refurbishment.
There is clear potential to add value through a thoughtful programme of works and possible loft and rear extensions (subject to planning and building regs). The location is practical for families: well-regarded primary and secondary schools nearby, local parks and playgrounds within a short walk, and straightforward bus and rail links into Streatham, Balham and central London.
Important practical points: the vendor reports potential structural damage to the bay window that requires professional inspection. The house is essentially un-modernised which will limit mortgage options for some buyers and suits buyers able to fund works without relying on standard lending. Crime levels in the area are above average, and the rear garden and small front yard will suit buyers seeking outdoor space rather than large plots.
5 bedroom terraced house for sale in Stanford Road, Norbury, SW16 — £700,000 • 5 bed • 2 bath • 1548 ft²
4 bedroom house for sale in Stanford Road, London, SW16 — £750,000 • 4 bed • 2 bath • 1576 ft²
4 bedroom terraced house for sale in Prescott Close, London, SW16 — £670,000 • 4 bed • 2 bath • 1444 ft²
3 bedroom terraced house for sale in Stanford Way, Norbury, SW16 — £550,000 • 3 bed • 1 bath • 932 ft²
3 bedroom end of terrace house for sale in Stanford Road, London, SW16 — £525,000 • 3 bed • 1 bath • 1313 ft²
4 bedroom house for sale in Heybridge Avenue, London, SW16 — £800,000 • 4 bed • 1 bath • 1749 ft²






























































