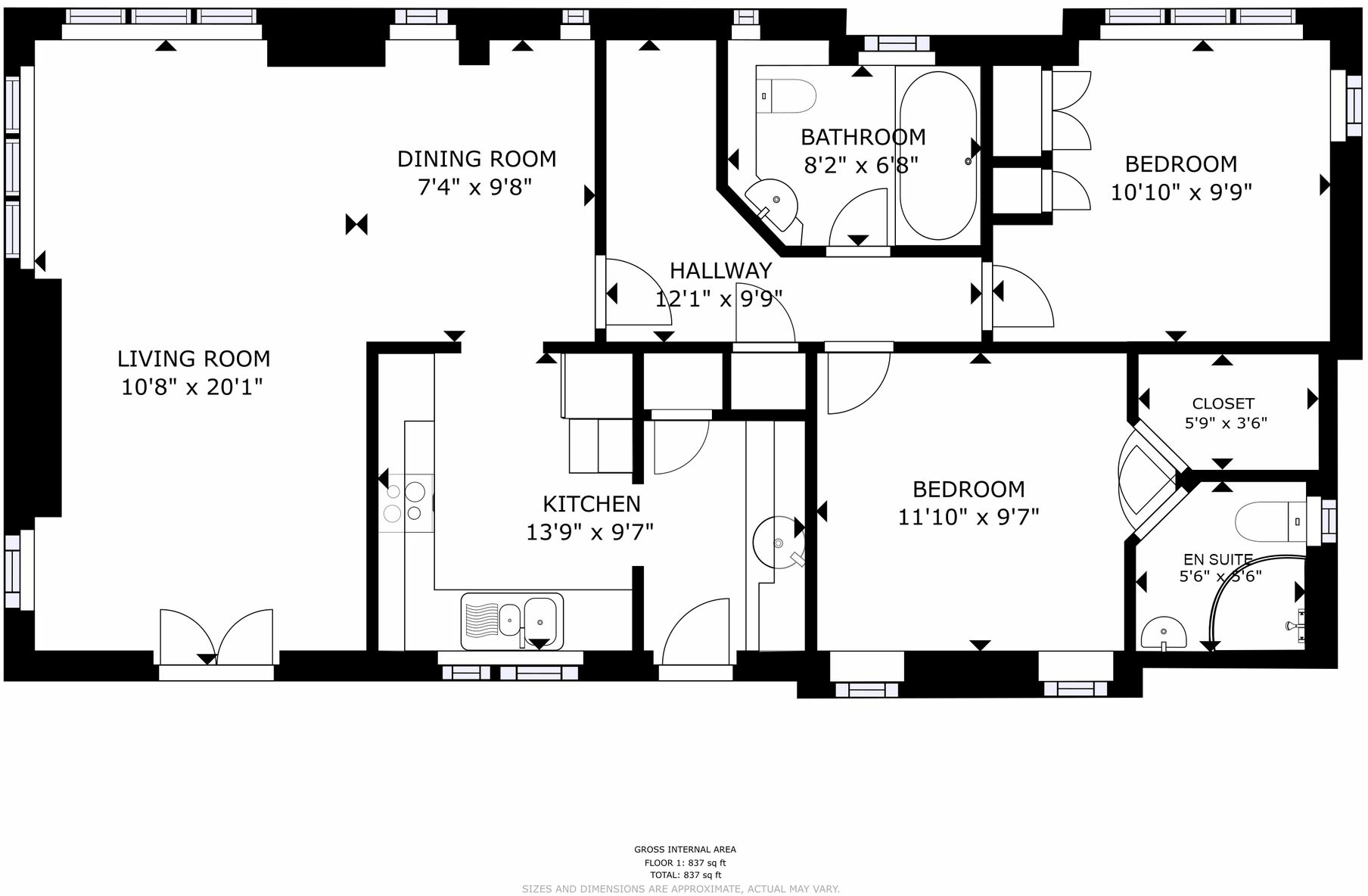
**Standout Features:**
- Two spacious bedrooms, including a master en-suite
- Bright living room with patio doors leading to a private balcony with river and countryside views
- Modern kitchen with integrated appliances and utility room
- Well-maintained interiors; most furnishings included
- Block paved driveway and solid shed with electricity supply
- Fishing rights on a picturesque stretch of the Liddel Water
**Potential Concerns:**
- Leasehold tenure with expensive ground rent of £2,500 per annum
- Average broadband speeds; average mobile signal
- Located in a more remote, agricultural community
Escape to the serene Riverside Holiday Park in Newcastleton, where this well-appointed lodge offers a perfect blend of comfort and nature. With two generous bedrooms (including a master with en-suite and walk-in wardrobe) and a spacious living area adorned with a modern kitchen, this property is ideal for those valuing both convenience and tranquility. The stunning balcony views of the river and lush parkland create an idyllic backdrop for morning coffees or evening gatherings. Whether you're looking for a holiday retreat or a peaceful permanent residence, this lodge invites you to enjoy outdoor pursuits like fishing and cycling amidst breathtaking Scottish landscapes.
While the property is chain-free and well-maintained, it presents a unique proposition with its higher ground rent and average connectivity, appealing to buyers seeking a low-maintenance lifestyle in a tight-knit community. With nearly 837 square feet of thoughtfully designed living space, this offer won’t last long in today’s competitive market—embrace a slower, fulfilling way of life and make it yours today!
2 bedroom lodge for sale in Newcastleton, Scotland, TD9 — £49,995 • 2 bed • 2 bath • 420 ft²
2 bedroom lodge for sale in Newcastleton, Scotland, TD9 — £110,995 • 2 bed • 2 bath • 800 ft²
2 bedroom park home for sale in Lakewood, Riverview Holiday Park, Newcastleton, TD9 0TF, TD9 — £79,500 • 2 bed • 2 bath
2 bedroom park home for sale in 10 Riverview Holiday Park, Newcastleton. TD9 0TF, TD9 — £50,000 • 2 bed • 2 bath • 579 ft²
2 bedroom detached house for sale in Riverview Holiday Park, Mangerton, Newcastleton, Scottish Borders, TD9 — £110,995 • 2 bed • 1 bath
2 bedroom detached house for sale in Riverview Holiday Park, Mangerton, Newcastleton, Scottish Borders, TD9 — £49,995 • 2 bed • 1 bath






























































































































































































































