Spacious plot, double garage and peaceful countryside outlook.
Nearly new with remainder of new-build warranty
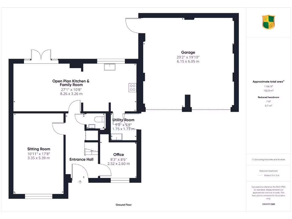
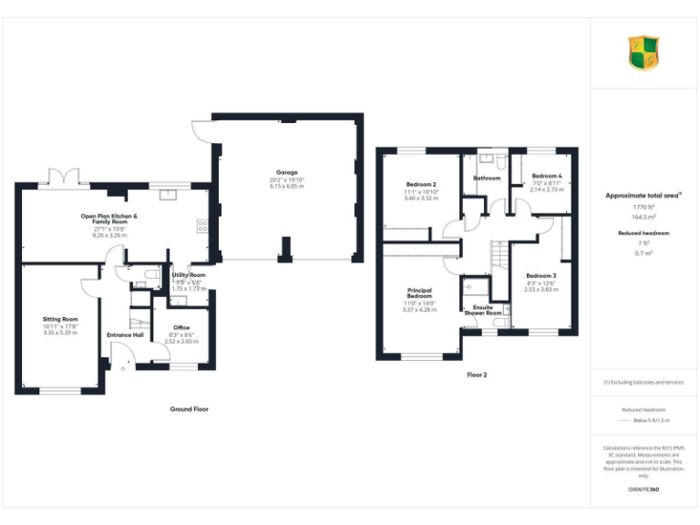
An executive four-bedroom detached home built in 2023, offered with the remainder of its new-build warranty. The house sits on a larger-than-typical plot at the end of a private cul-de-sac and benefits from uninterrupted countryside views to front and rear. The layout centres on a generous open-plan kitchen and family area, complemented by a separate sitting room, study and utility for practical family living.
Practical assets include a large double garage with power and lighting, a wide block-paved driveway with space for four to six cars, and a partly walled rear garden with raised patio ideal for entertaining. The finish is high-spec throughout: quartz worktops, integrated AEG appliances and luxury bathroom and ensuite fittings. The property was occupied for just over a year and still presents as nearly new.
Location is a genuine strength for families and commuters: under a mile from Billingshurst station, primary and secondary schools, and village amenities including supermarkets and leisure facilities. The site is quietly positioned on the western fringe of the development, offering a more rural feel while remaining connected to local services.
Material considerations: there is an annual estate charge of £456 and the property sits in Council Tax Band F, which will be a higher ongoing cost. The development is recent and landscaping is still establishing — gardens will mature further over time. Buyers should factor warranty terms and any decorative personalisation needs into their decision.
3 bedroom detached house for sale in Rhodes Way, Billingshurst, West Sussex., RH14 — £475,000 • 3 bed • 2 bath • 890 ft²
4 bedroom detached house for sale in Champions Place, Haywards Heath, RH17 — £800,000 • 4 bed • 2 bath • 1594 ft²
4 bedroom detached house for sale in Badgers Copse, Billingshurst, RH14 — £750,000 • 4 bed • 2 bath • 1650 ft²
5 bedroom detached house for sale in Blackthorn Avenue, Billingshurst, RH14 — £650,000 • 5 bed • 3 bath • 1658 ft²
4 bedroom detached house for sale in Hillyfield, Billingshurst, RH14 — £750,000 • 4 bed • 3 bath • 1688 ft²
5 bedroom link detached house for sale in Newman Way, Billingshurst, West Sussex, RH14 — £785,000 • 5 bed • 3 bath • 2051 ft²






















































































































