Characterful village cottage ideal for first-time buyers or investors.
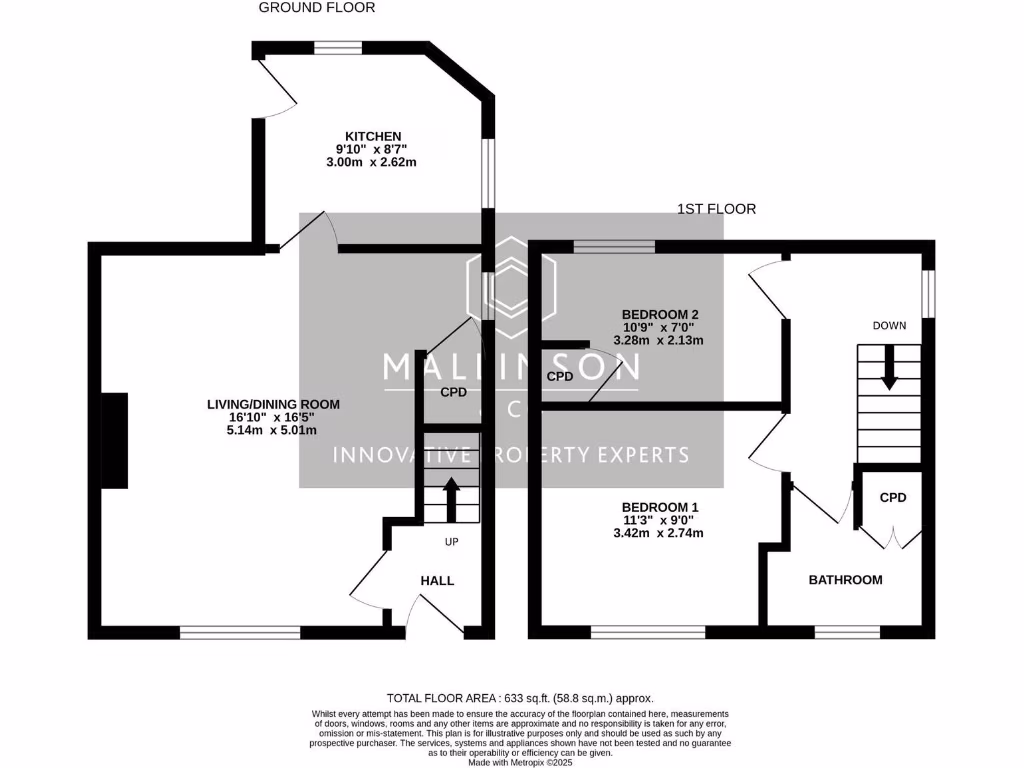
Two double bedrooms across two floors
This stone-built end-terrace cottage combines period character with practical updates, making it a strong choice for a first-time buyer or downsizer. The ground-floor kitchen extension provides a modern cooking area with integrated appliances, while the full-depth lounge retains original features such as exposed beams and a gas fireplace. Two double bedrooms and a contemporary three-piece bathroom are arranged over two floors, in an easily managed 633 sq ft layout.
Externally the property is low maintenance: a paved courtyard to the front and a stone outbuilding provide storage without extensive gardening. Parking is available nearby on a first-come, first-served basis and the home is freehold and chain-free, easing a swift move. The village centre, local shops, schools and transport links are all walkable, adding convenience to the cottage appeal.
Buyers should note the compact footprint and very small plot — outdoor space and overall floor area are limited compared with modern houses. The external stone walls are traditional with assumed minimal cavity insulation and the double glazing was installed before 2002, so further insulation or window upgrades could be considered to improve efficiency. Parking is communal rather than private.
Presented in good decorative order throughout, the cottage also suits buy-to-let or short-stay rental use given its character and village location. A buyer seeking effortless village living with character will find genuine charm here, while a cost-conscious purchaser should allow budget for possible energy-efficiency improvements or bespoke storage solutions.
2 bedroom terraced house for sale in Slant Gate, Kirkburton, HD8 — £165,000 • 2 bed • 1 bath • 646 ft²
2 bedroom semi-detached house for sale in Cumberworth Lane, Lower Cumberworth, HD8 8PG, HD8 — £185,000 • 2 bed • 1 bath • 474 ft²
2 bedroom cottage for sale in The Village, Farnley Tyas, Huddersfield HD4 — £250,000 • 2 bed • 1 bath • 515 ft²
3 bedroom house for sale in Low Town, Kirkburton, HD8 — £199,950 • 3 bed • 2 bath • 756 ft²
2 bedroom cottage for sale in Cowlersley Lane, Cowlersley, Huddersfield, HD4 — £135,000 • 2 bed • 1 bath • 602 ft²
2 bedroom cottage for sale in Slant Gate, Kirkburton, HD8 — £200,000 • 2 bed • 1 bath • 797 ft²


































































