**Standout Features:**
- Charming 2-bedroom period cottage with character-rich details
- Elevated position offering stunning valley views
- Original features including exposed timber beams and stone walls
- Freehold tenure and chain-free, providing a seamless buying experience
- Close proximity to well-regarded schools and commuter links
- Low maintenance garden and enclosed rear yard
**Potential Concerns:**
- Average-sized rooms may feel compact for some
- No insulation in walls could lead to energy inefficiencies
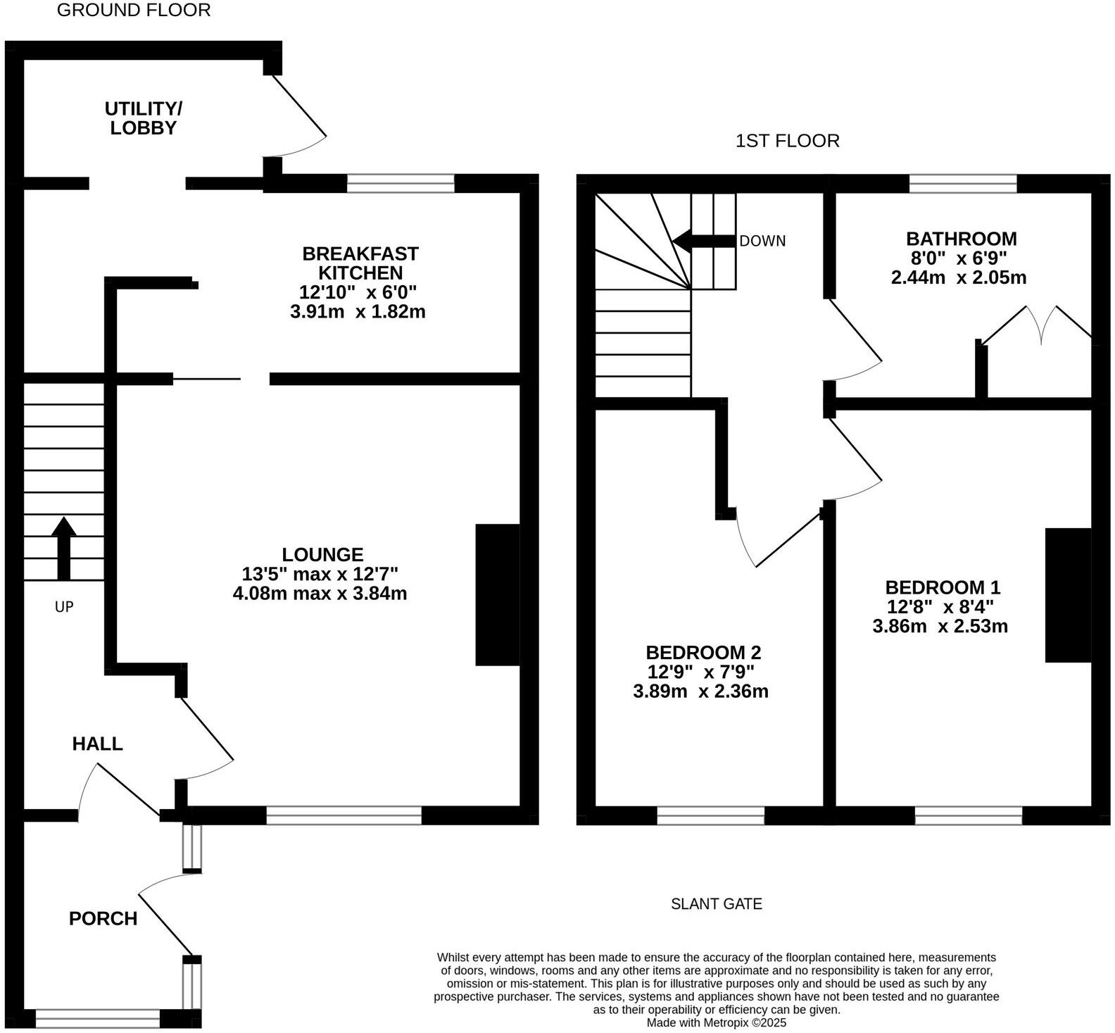
Nestled in the heart of the desirable suburb of Kirkburton, this delightful stone-built terraced cottage encapsulates the charm of its era with its original exposed beams and stone walls. The open-plan living-dining area and cozy kitchen create practical living space, bathed in natural light and enhanced by panoramic views across the valley. Two well-proportioned bedrooms offer flexibility; use one as a serene retreat or home office.
While the property might present slightly smaller dimensions typical of terraced homes, it compensates with unique character and an inviting atmosphere. The outdoor areas feature a manageable garden and enclosed yard, perfect for enjoying peaceful alfresco moments, ideal for first-time buyers seeking comfort and charm. With its excellent mobile signal and fast broadband, remote work is easily accommodated. Don't miss this opportunity to own a piece of village serenity in a prime location—properties like this are seldom available for long!
2 bedroom end of terrace house for sale in New Laithe Hill, Huddersfield, HD4 — £140,000 • 2 bed • 1 bath • 437 ft²
2 bedroom cottage for sale in Slant Gate, Kirkburton, HD8 — £200,000 • 2 bed • 1 bath • 797 ft²
2 bedroom house for sale in Cockley Hill Lane, Kirkheaton, Huddersfield, HD5 — £179,995 • 2 bed • 1 bath • 851 ft²
2 bedroom terraced house for sale in Penistone Road, Kirkburton, HD8 0PE, HD8 — £85,000 • 2 bed • 1 bath • 582 ft²
3 bedroom house for sale in Low Town, Kirkburton, HD8 — £210,000 • 3 bed • 2 bath • 756 ft²
2 bedroom semi-detached house for sale in Penistone Road, Shelley, HD8 8HY, HD8 — £190,000 • 2 bed • 1 bath • 657 ft²














































































