Well-presented starter home near village shops and stations.
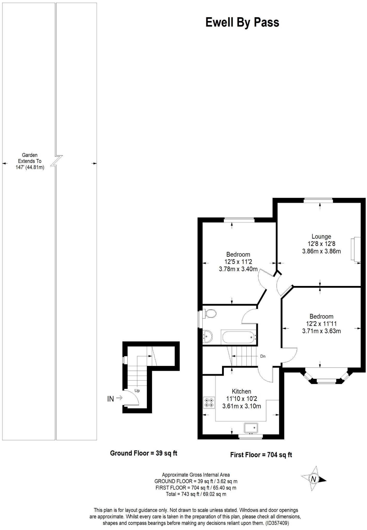
- Two double bedrooms, comfortable room sizes
- First-floor maisonette with private rear garden and shed
- Modern kitchen/breakfast room and modern bathroom
- Approx 743 sqft internal area, average overall size
- Leasehold: 149 years remaining; ground rent £80 p.a.
- EPC rating D — energy improvements possible
- Close to Ewell Village, train stations and good schools
- Local crime level reported as high; check security/insurance
A bright two-double-bedroom first-floor maisonette in Ewell, offering a generous 743 sqft layout and a private rear garden. The living room features a feature fireplace and good natural light; the modern kitchen/breakfast room and recently updated bathroom make the property move-in ready for a first home or buy-to-let.
Located close to Ewell Village amenities and local train stations, the home sits in an affluent area with excellent mobile signal and fast broadband — useful for working from home. Nearby highly rated schools and good secondary options add family appeal. The lease has 149 years remaining and ground rent is a modest £80 per year.
Practical notes: the EPC is rated D and the property is leasehold, which may affect mortgage options for some buyers. Local crime levels are reported as high, so prospective purchasers should satisfy themselves on security and insurance. Viewing is recommended to appreciate room proportions and the private garden with artificial turf and storage shed.
This maisonette suits first-time buyers seeking a well-presented starter home close to transport, or investors looking for a straightforward rental in a well-connected suburb. The apartment offers comfortable living now and scope to improve energy performance over time.
2 bedroom maisonette for sale in Ewell By Pass, Ewell Village, KT17 — £375,000 • 2 bed • 1 bath • 743 ft²
2 bedroom maisonette for sale in Stanton Close, Epsom, Surrey, KT19 — £385,000 • 2 bed • 1 bath • 635 ft²
2 bedroom flat for sale in Kingston Road, Epsom, KT17 — £375,000 • 2 bed • 1 bath • 589 ft²
2 bedroom maisonette for sale in London Road, Ewell, KT17 — £425,000 • 2 bed • 1 bath • 729 ft²
2 bedroom maisonette for sale in Jasmin Road, West Ewell, KT19 — £375,000 • 2 bed • 1 bath • 772 ft²
2 bedroom maisonette for sale in Willis Close, Epsom, KT18 — £375,000 • 2 bed • 1 bath • 624 ft²


















































