Third-floor seaside flat with balcony, secure parking and no onward chain..
Third-floor coastal flat with private balcony and sea-facing outlook
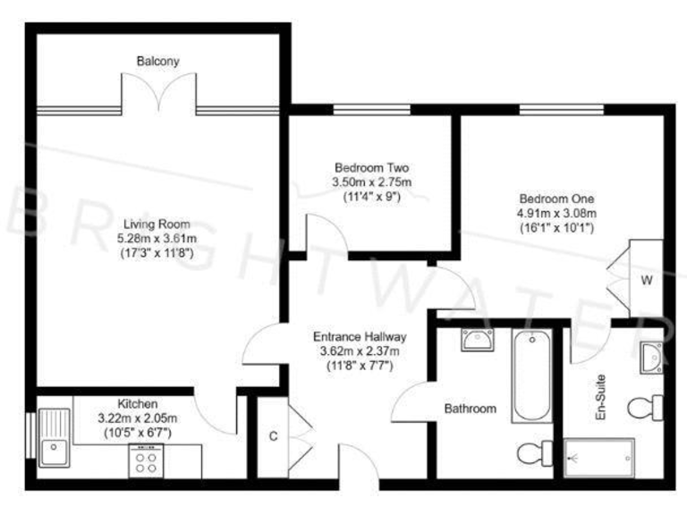
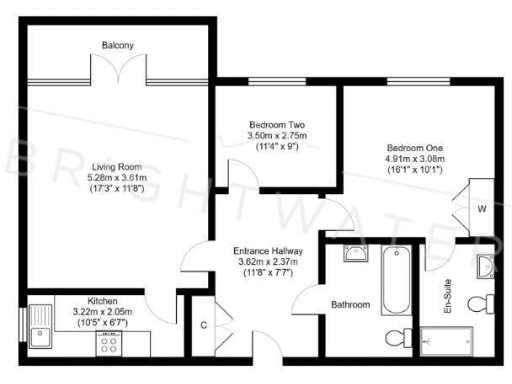
Two double bedrooms; main bedroom with en-suite shower
Lift access and one allocated space in gated underground car park
No onward chain; vendors pay first year’s service charge
Leasehold ~105 years remaining; ground rent £200 pa
Service charge £2,904 pa — ongoing communal cost after first year
No private garden; accommodation is average-sized for two-bed flat
Built 2007–2011; modern construction and double glazing throughout
A bright third-floor coastal apartment offering low-maintenance seaside living just a five-minute walk from sandy Boscombe beaches and local restaurants. The well-presented lounge opens onto a private balcony with sea-facing outlooks, creating a relaxed spot for morning coffee or evening air. The development is modern (built 2007–2011) and includes lift access and a secure gated underground parking space.
Internally the layout is practical: two double bedrooms, the main with an en-suite, a separate fitted kitchen and a family bathroom. Ample built-in storage and contemporary double glazing help keep the flat efficient and straightforward to manage — appealing to first-time buyers, buy-to-let investors or those seeking a holiday apartment.
This is a leasehold property with approximately 105 years remaining. Annual charges are clear: ground rent £200 and a service charge of £2,904 (the vendors will pay the first year’s service charge as part of the sale). There is no private garden and the accommodation is average-sized — suitable for compact households rather than those requiring extensive living space.
Offered with no onward chain, the flat is ready for a quick sale and immediate occupation or letting. The location, secure parking and seaside position are the principal value drivers; buyers should note the lease length and ongoing service costs when assessing long-term affordability.
 2 bedroom flat for sale in Boscombe Spa stunning balcony flat, BH5 — £254,950 • 2 bed • 2 bath • 861 ft²
 2 bedroom flat for sale in Boscombe Spa stunning balcony flat, BH5 — £254,950 • 2 bed • 2 bath • 861 ft² 2 bedroom flat for sale in Boscombe Spa Road, Bournemouth, Sea View Flat with No Chain, BH5 — £249,950 • 2 bed • 2 bath • 624 ft²
 2 bedroom flat for sale in Boscombe Spa Road, Bournemouth, Sea View Flat with No Chain, BH5 — £249,950 • 2 bed • 2 bath • 624 ft² 2 bedroom apartment for sale in Honeycombe Chine, Boscombe, Bournemouth, BH5 — £220,000 • 2 bed • 2 bath • 805 ft²
 2 bedroom apartment for sale in Honeycombe Chine, Boscombe, Bournemouth, BH5 — £220,000 • 2 bed • 2 bath • 805 ft² 2 bedroom flat for sale in San Remo Towers, Sea Road, Bournemouth, BH5 — £200,000 • 2 bed • 1 bath • 782 ft²
 2 bedroom flat for sale in San Remo Towers, Sea Road, Bournemouth, BH5 — £200,000 • 2 bed • 1 bath • 782 ft² 2 bedroom flat for sale in Bournemouth, BH4 — £250,000 • 2 bed • 2 bath • 644 ft²
 2 bedroom flat for sale in Bournemouth, BH4 — £250,000 • 2 bed • 2 bath • 644 ft² 2 bedroom apartment for sale in Chine Crescent Road, BH2 — £270,000 • 2 bed • 1 bath • 884 ft²
 2 bedroom apartment for sale in Chine Crescent Road, BH2 — £270,000 • 2 bed • 1 bath • 884 ft²














































































