Move‑in ready single‑storey home with garage and solar panels.
- Two bedrooms with plentiful built-in storage
- South-facing rear garden, low-maintenance plot
- Driveway for 2–3 cars plus 18' x 9'2" garage with power
- Owned solar panels reduce energy bills
- Modern fitted kitchen with integrated appliances
- Single reception room and one shower room only
- Modest internal size (~466 sq ft) limits space
- Freehold and offered chain free for quicker sale
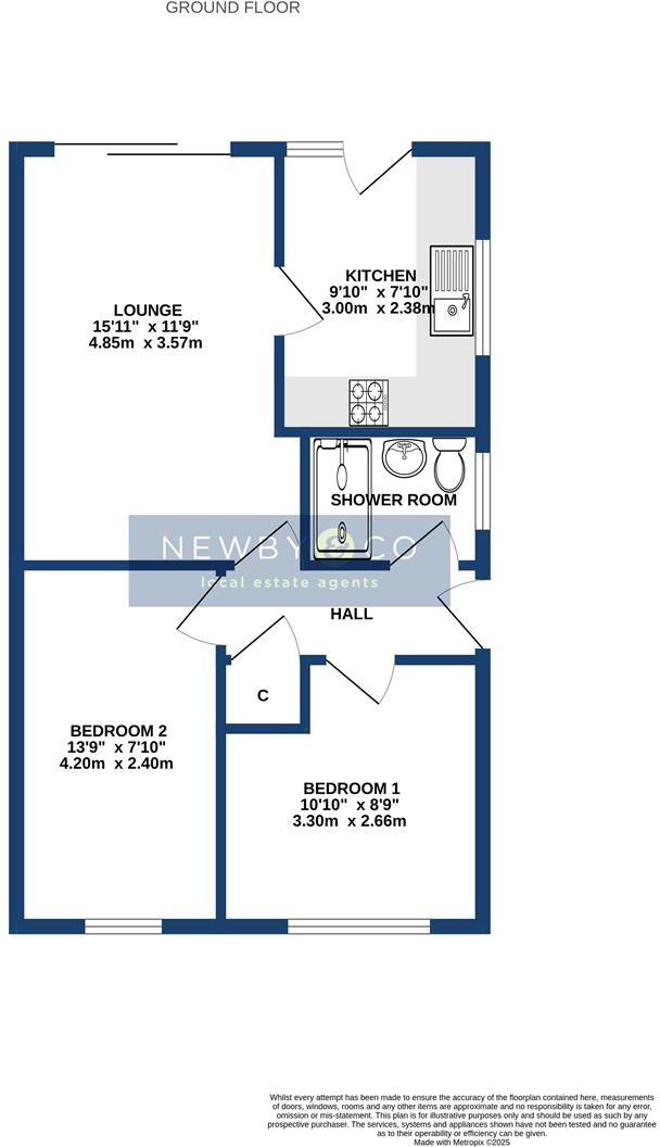
This tidy two-bedroom semi-detached bungalow on Ernee Close offers low‑maintenance single‑storey living ideal for downsizers or those seeking a compact, comfortable home. The layout is straightforward: a rear-facing lounge, modern fitted kitchen with integrated appliances, two bedrooms with abundant built-in storage and a contemporary shower room. Owned solar panels and gas central heating keep running costs down.
Externally the property benefits from a south-facing rear garden, driveway parking for two to three cars and an 18' x 9'2" brick garage. The plot is manageable rather than expansive, so outdoor upkeep is minimal. The build dates from the early 1990s and the home has up‑to‑date double glazing and a Worcester combi boiler in a hall cupboard.
Practical points to note: the overall internal size is modest (around 466 sq ft) with a single reception room and one bathroom, which may limit flexibility for some buyers. The house is offered freehold with no onward chain, making for a straightforward purchase for someone looking to move quickly. Its location close to local shops, bus routes and green spaces suits quiet suburban living.
Overall this is a well‑presented, move‑in ready bungalow that suits a downsizer, first-time buyer seeking long‑term single‑storey accommodation, or an investor looking for a low‑maintenance let in a popular Glenfield cul‑de‑sac.
2 bedroom semi-detached bungalow for sale in Bramble Close, Glenfield, Leicester, LE3 — £265,000 • 2 bed • 1 bath • 527 ft²
3 bedroom detached bungalow for sale in Salcombe Drive, Glenfield, Leicester, LE3 — £310,000 • 3 bed • 1 bath • 896 ft²
2 bedroom semi-detached bungalow for sale in Greendale Road, Glen Parva, Leicester, LE2 — £270,000 • 2 bed • 1 bath • 614 ft²
2 bedroom semi-detached bungalow for sale in Pits Avenue, Braunstone, Leicester, Leicestershire, LE3 — £250,000 • 2 bed • 1 bath • 801 ft²
4 bedroom detached bungalow for sale in Torcross Close, Glenfield, Leicester, LE3 — £445,000 • 4 bed • 2 bath • 506 ft²
2 bedroom bungalow for sale in Bramble Close, Glenfield, LE3 — £265,000 • 2 bed • 1 bath • 618 ft²






















































