Bright ground-floor maisonette with private garden and long lease — ideal first-time buy.
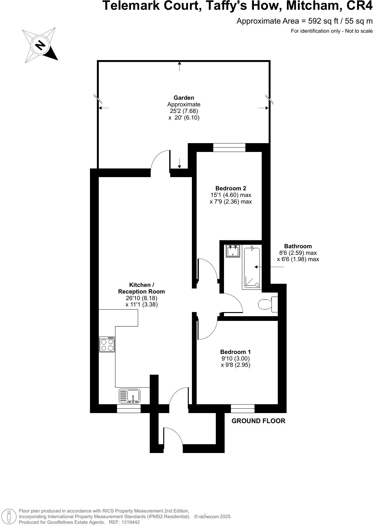
592 sq ft ground-floor maisonette with private garden
A well-presented two-bedroom ground-floor maisonette offering 592 sq ft of practical living space and a private garden. The layout provides two double bedrooms, a bright living room with garden access and a compact modern kitchen — a manageable home for first-time buyers or young couples.
Practical benefits include a very long lease (995 years), share of freehold ownership and a below-average service charge (£900), which help reduce ongoing costs. Transport links are strong with frequent buses and nearby stations, making commutes and local amenities easy to reach.
Notable drawbacks are the property's small overall footprint and electric room heaters rather than a central heating system, which may increase running costs and limit heating comfort. The local area has high crime levels and is relatively deprived; buyers should factor in neighbourhood considerations and security measures.
This maisonette suits buyers seeking an affordable, low-maintenance entry into the area with scope to personalise the interior. Its private garden, long lease and manageable charges are genuine strengths, balanced by the need to address heating and local area challenges.
2 bedroom maisonette for sale in Taffy's How, Mitcham, CR4 — £400,000 • 2 bed • 1 bath • 731 ft²
2 bedroom ground floor flat for sale in Taffy's How, Mitcham, CR4 — £400,000 • 2 bed • 1 bath • 718 ft²
1 bedroom maisonette for sale in Taffy's How, Mitcham, CR4 — £325,000 • 1 bed • 1 bath • 480 ft²
2 bedroom maisonette for sale in Bond Road, Mitcham, CR4 — £375,000 • 2 bed • 1 bath • 638 ft²
2 bedroom flat for sale in Commonside East, Mitcham, CR4 — £325,000 • 2 bed • 2 bath • 743 ft²
2 bedroom maisonette for sale in Rialto Road, Mitcham, CR4 — £375,000 • 2 bed • 1 bath • 743 ft²


















































