Large loft-style one-bedroom with parking and long lease in central Leicester..
Allocated secure off-street parking with fob access
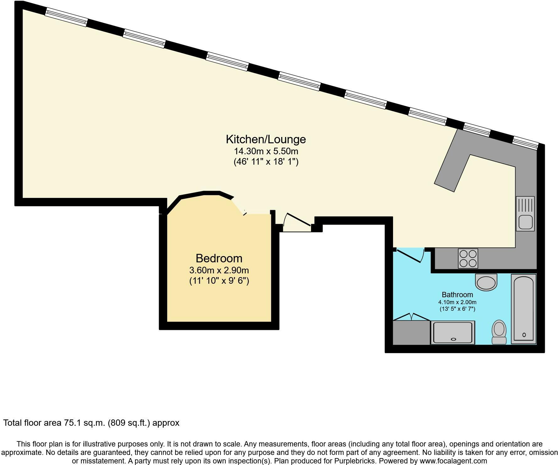
Large loft-style one-bedroom — approx. 809 sq ft open-plan space
Circa 950 years remaining on the lease
Chain free sale — ready for a quick exchange
Average broadband speeds; excellent mobile signal
Service charge around £2,040 per year; additional building costs apply
Located in a student-heavy, cosmopolitan neighbourhood — potential noise
Local crime level recorded as very high — consider security needs
This loft-style one-bedroom apartment occupies a generous 809 sq ft within the converted Stibbe Lofts, offering true open-plan living and industrial character. High ceilings and large windows create airiness and light; the layout suits a first-time buyer seeking space or an investor wanting city-centre rental appeal. The property is chain free and comes with an allocated, secure off-street parking space.
Practical running costs should be noted: an average service charge of £2,040 a year (detailed breakdown provided by freeholders) plus council tax Band D. Broadband speeds are average. The long lease (circa 950 years) provides security of tenure, and there is no flood risk.
Location is a key strength — immediate access to Leicester city centre, nearby universities and hospital, walking distance to the train station and good road links. However, the block sits within a cosmopolitan, student-heavy neighbourhood and the local crime level is recorded as very high; prospective buyers should consider noise, security needs, and suitability for long-term family living.
Overall this is a roomy, characterful city-centre apartment with clear appeal for first-time buyers and investors who prioritise location, space and long lease length. Factor in service charges, local crime considerations and the student-dominated area when judging suitability.
2 bedroom apartment for sale in Stibbe Lofts, 11 Newarke Street, Leicester, LE1 — £175,000 • 2 bed • 1 bath • 915 ft²
1 bedroom flat for sale in 9 Denmark Road, Leicester, Leicestershire. LE2 8AB, LE2 — £119,950 • 1 bed • 1 bath • 775 ft²
1 bedroom apartment for sale in Rutland Street, Leicester, LE1 1RB, LE1 — £75,000 • 1 bed • 1 bath • 410 ft²
1 bedroom flat for sale in Templar House, Charles Street, Leicester, Leicestershire, LE1 — £100,000 • 1 bed • 1 bath • 484 ft²
2 bedroom apartment for sale in The Foister Building, Charles Street, Leicester, LE1 — £200,000 • 2 bed • 2 bath • 1055 ft²
3 bedroom apartment for sale in Charles Street, Leicester, LE1 — £190,000 • 3 bed • 1 bath • 947 ft²


































































































































