Chain-free three-bed with large garden and quick walk to station.
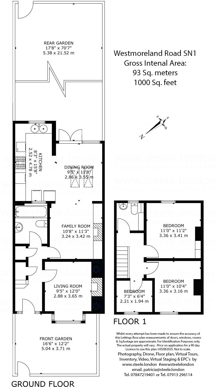
Chain free three-bedroom terraced house, newly renovated throughout
Large rear garden suitable for family use or entertaining
Open-plan living and dining with a feature fireplace
Modern fitted kitchen with integrated appliances and gas hob
Double glazing, fast broadband and excellent mobile signal
Approximately 1,000 sq ft; average overall property size
Plot is relatively small despite generous garden footprint
Local area records higher-than-average crime; tenure unknown
This newly renovated three-bedroom terraced home blends traditional features with contemporary open-plan living, making it a comfortable choice for families or commuters. The bright living/dining space centers on a feature fireplace and flows into a sleek modern kitchen fitted with integrated appliances. Upstairs are three well-proportioned bedrooms and a contemporary bathroom; the property also includes a ground-floor bathroom for convenience.
Practical benefits include double glazing, excellent mobile signal and fast broadband—useful for remote working—and a large rear garden suited to outdoor dining, play, or planting. At about 1,000 sq ft, the layout provides separate reception space plus a generous kitchen/diner; the house is offered chain free for a quicker move.
Location is a strong asset: a short walk to Queens Park, nearby good primary and secondary schools, local shops and amenities, and easy access to Swindon Train Station for commuting. These features support both family living and rental potential for investors.
Important considerations: the plot is relatively small for a garden of this size, the wider neighbourhood records higher-than-average crime levels, and tenure details are not provided. Prospective buyers should verify tenure and local safety data as part of their enquiries.
3 bedroom end of terrace house for sale in Stapleford Way, Swindon, Wiltshire, SN2 — £220,000 • 3 bed • 1 bath • 932 ft²
3 bedroom terraced house for sale in Wardley Close, Swindon, SN3 — £200,000 • 3 bed • 1 bath • 915 ft²
3 bedroom terraced house for sale in Cheney Manor Road, Swindon, SN2 — £250,000 • 3 bed • 1 bath • 877 ft²
2 bedroom terraced house for sale in Swindon Road, Old Town, Swindon, SN1 — £210,000 • 2 bed • 1 bath
3 bedroom terraced house for sale in Westmorland Road, Town Centre, Swindon, SN1 — £285,000 • 3 bed • 2 bath • 918 ft²
3 bedroom terraced house for sale in Avebury Road, Swindon, SN2 5, SN2 — £230,000 • 3 bed • 1 bath


























































