Chain-free freehold high-street unit with garden and garage — ideal investor or small-business restart.
- Freehold commercial premises, chain-free, offers in region of £50,000
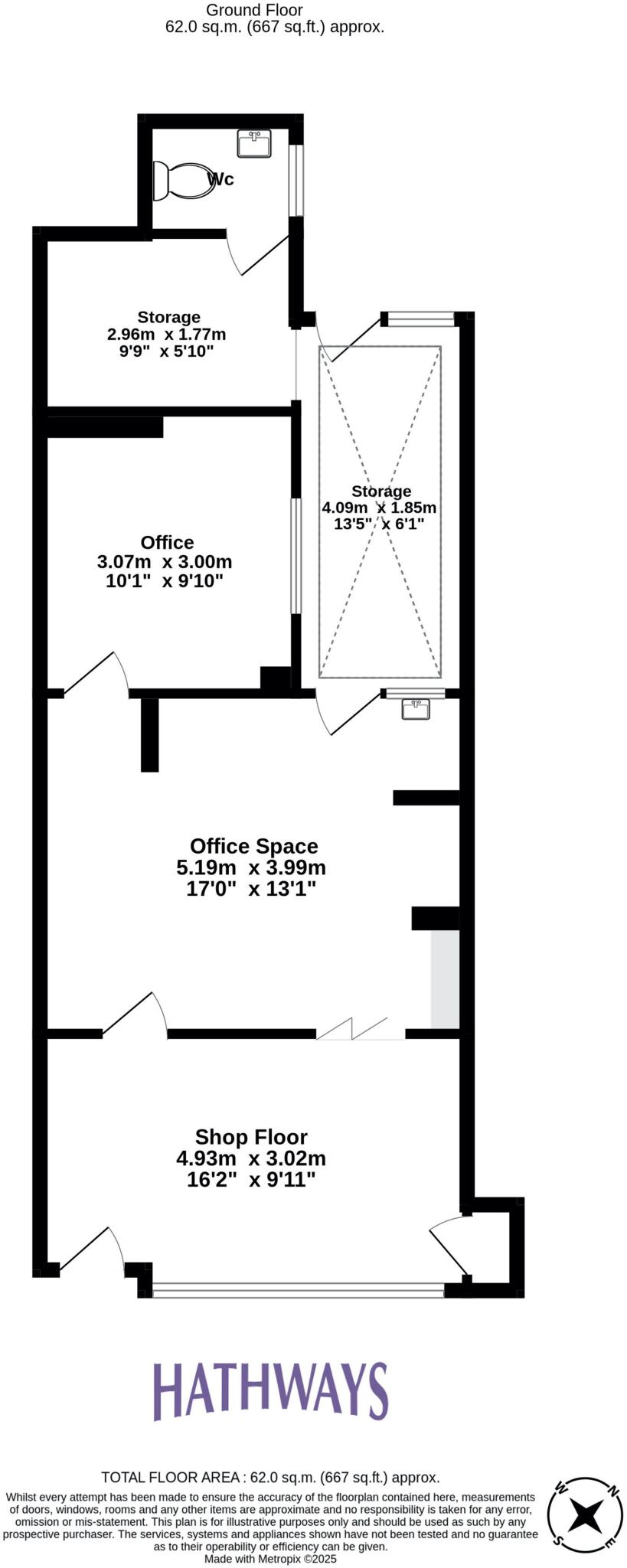
- Large internal area approx. 1,410 sq ft across reception, offices, storage
- Enclosed rear garden and detached garage for parking/storage
- Suitable for shop, small office or mixed-use conversion potential
- Located in town centre; fast broadband and excellent mobile signal
- Area is very deprived with high local crime — consider security costs
- Small plot size despite large internal space; external expansion limited
- Likely requires refurbishment and compliance upgrades before trading
A versatile freehold commercial premises in the heart of Griffithstown, offered chain-free at circa £50,000. The property has a traditional Victorian shop front leading to a reception area, two separate offices, two storage rooms and a WC — practical for an independent retailer, small office or mixed-use investor. The building footprint extends to around 1,410 sq ft, giving generous internal space for a high-street business.
External extras include an enclosed rear garden — uncommon for town-centre commercial units — and a detached garage providing parking or extra storage. The location benefits from fast broadband, excellent mobile signal and local amenities within walking distance; road links make commuting straightforward for staff and customers.
Buyers should note material negatives: the property sits in a very deprived area with higher local crime rates, and the plot is small despite the sizeable internal area. The building is characterful and period in style but will likely need updating to meet specific business requirements; costs for refurbishment, services upgrades or reconfiguration should be factored in. Prospective purchasers must confirm council tax banding and any statutory compliance obligations prior to exchange.
This is a straightforward opportunity for an investor or business owner seeking an entry-level high-street asset with immediate rental or owner-occupier potential. Early internal inspection is recommended to assess layout suitability and refurbishment scope.
Commercial property for sale in George Street, Pontypool, NP4 — £100,000 • 2 bed • 1 bath • 904 ft²
Commercial property for sale in Tredegar Street, 31 Tredegar Street, NP11 — £155,000 • 1 bed • 1 bath • 1229 ft²
Commercial property for sale in Commercial Street, Pontnewydd, NP44 — £60,000 • 1 bed • 1 bath • 1679 ft²
Commercial property for sale in 1A Woodfield Terrace Tir-Y-Berth Hengoed CF82 8AH, CF82 — £160,000 • 1 bed • 1 bath • 1518 ft²
High street retail property for sale in 18 , Commercial Street, Ystrad Mynach , CF82 — £145,000 • 1 bed • 1 bath • 1127 ft²
3 bedroom property for sale in Crane Street, Pontypool, NP4 — £160,000 • 3 bed • 1 bath • 821 ft²


















































































































