Chain-free fixer with large garden and excellent transport links.
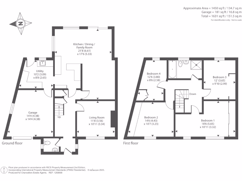
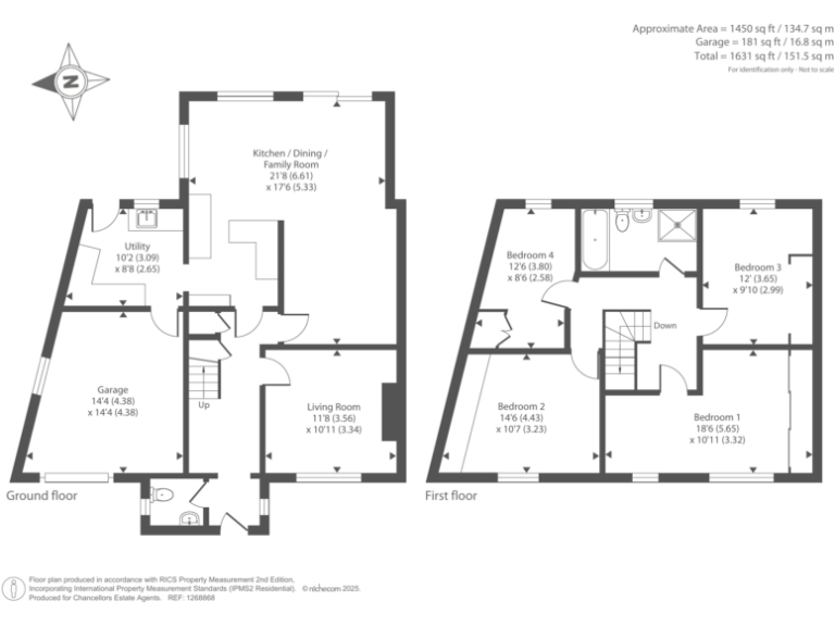
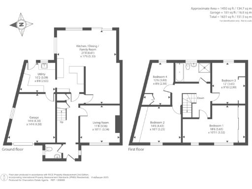
Four bedrooms and two bathrooms across 1,631 sq ft
This four-bedroom semi-detached home sits on a large plot in a quiet Virginia Water avenue, about one mile from the mainline station and local shops. The house offers generous living space across three reception rooms, an attached garage with internal access, driveway parking for two cars and a private enclosed rear garden — an attractive family layout in a very affluent area.
The property is sold chain free and presents a clear opportunity for renovation or full modernisation; the current condition requires comprehensive updating throughout. The house benefits from double glazing installed after 2002, mains gas central heating with a boiler and radiators, and no recorded flood risk, but the original solid brick walls are assumed to lack insulation and the property needs substantial work to meet contemporary standards.
Families will value the proximity to highly rated schools and local amenities, plus excellent mobile signal and fast broadband for home-working or study. Buyers should note the property’s council tax is expensive and that renovation costs and potential insulation updates should be factored into budgets. For investors or buyers looking to create a long-term family home, this freehold offers scope to add modern finishes and value in a sought-after Surrey location.
4 bedroom semi-detached house for sale in Cabrera Avenue, Virginia Water, GU25 — £1,000,000 • 4 bed • 4 bath • 2622 ft²
4 bedroom detached house for sale in Knowle Grove, Virginia Water, GU25 — £1,050,000 • 4 bed • 4 bath • 1396 ft²
4 bedroom semi-detached house for sale in Cabrera Close, Virginia Water, Surrey, GU25 — £725,000 • 4 bed • 3 bath • 1665 ft²
3 bedroom end of terrace house for sale in Sandhills Lane, Virginia Water, Surrey, GU25 — £525,000 • 3 bed • 2 bath • 856 ft²
3 bedroom detached house for sale in Virginia Water, Surrey, GU25 — £580,000 • 3 bed • 2 bath • 1103 ft²
5 bedroom detached house for sale in Luddington Avenue, Virginia Water, Surrey, GU25 — £995,000 • 5 bed • 2 bath • 2000 ft²


























































































