Three-bedroom freehold terrace with immediate rental income and refurbishment potential.
Long-term tenants in situ producing £22,800 gross annually
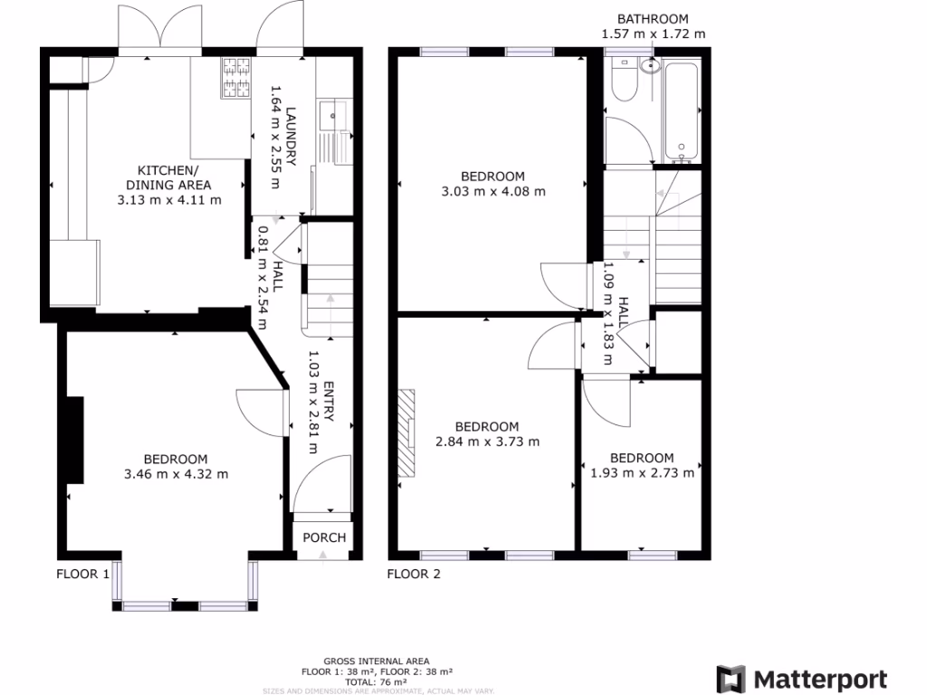
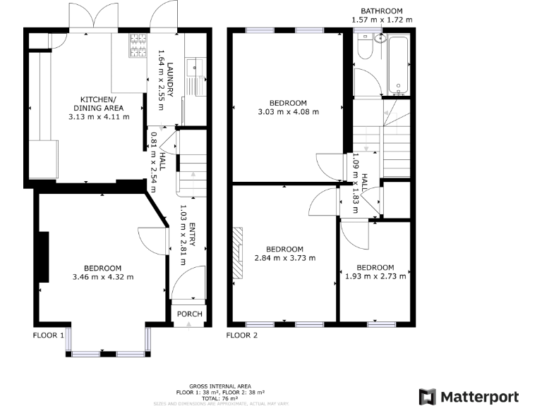
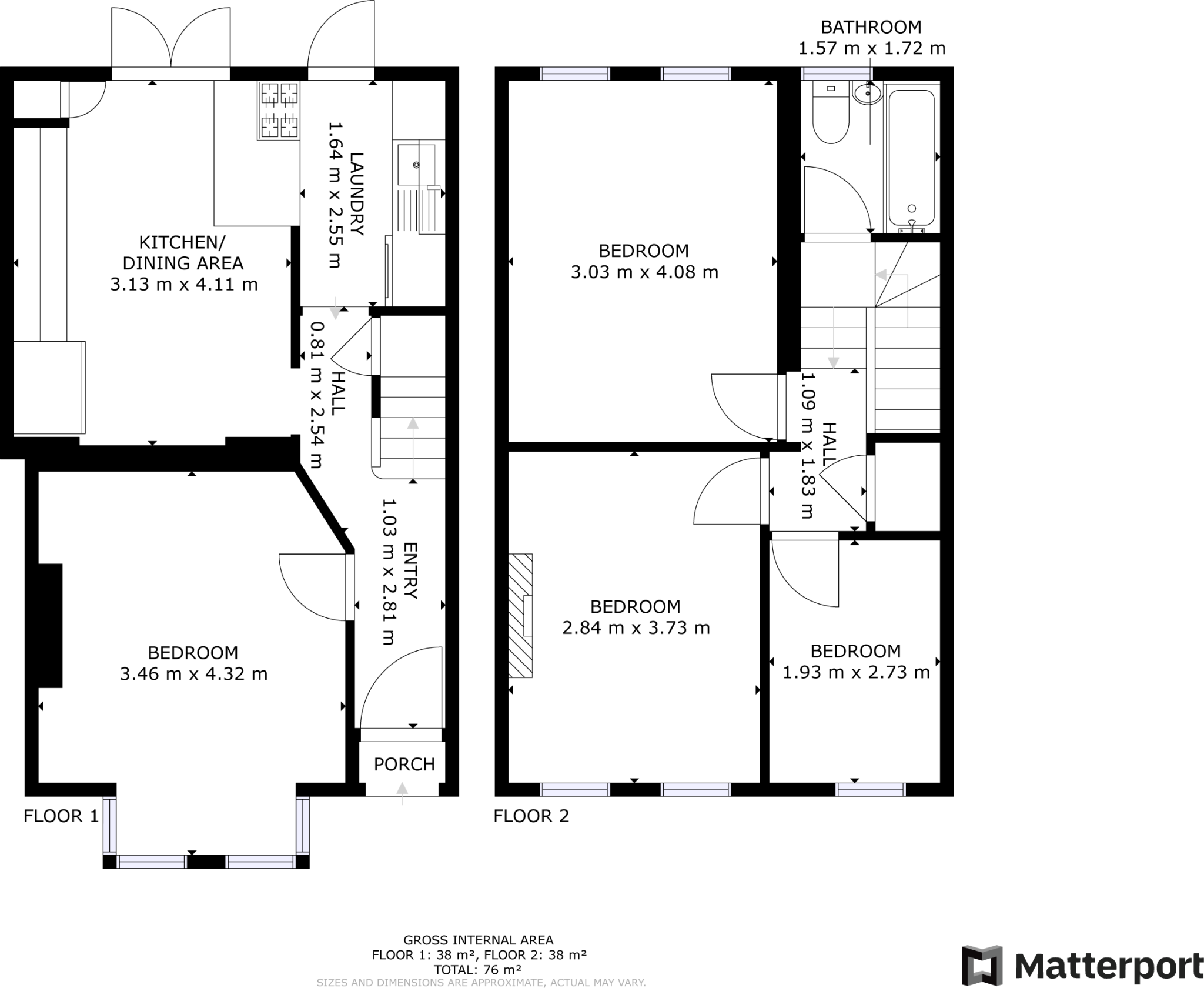
A practical investment in Croydon’s CR0: this three-bedroom freehold terrace is currently let and producing an annual gross income of £22,800. The property offers steady rental return with long-term tenants in place, making it a straightforward add-on for an investor seeking immediate income.
Set in a traditional Victorian terrace, the house has average-sized rooms across two storeys, a small rear private garden and on-street parking. Broadband and mobile signal are strong, and nearby schools and local amenities strengthen tenant demand in this part of Croydon.
The property shows clear scope for improvement: the kitchen is dated and will need upgrading to reach higher market rents, and there is only one bathroom for three bedrooms. The plot is small and the area scores higher for deprivation than average, which affects potential capital growth but supports consistent rental demand.
Practical details for buyers: the sale is freehold and tenants do not intend to vacate, so purchasers should plan around a let property purchase. A buyers’ premium will apply on sale, and interested parties should review the Let Property Pack for full tenancy and income documents before committing.
1 bedroom flat for sale in Cameron Road, Croydon, CR0 — £130,000 • 1 bed • 1 bath • 463 ft²
3 bedroom terraced house for sale in Selsdon Road, South Croydon, CR2 — £475,000 • 3 bed • 2 bath • 1148 ft²
8 bedroom mixed use property for sale in Outram Road, Croydon, Lower Addiscombe, Croydon, CR0 — £1,750,000 • 8 bed • 9 bath • 5206 ft²
1 bedroom flat for sale in Addiscombe Road, Croydon, CR0 — £215,600 • 1 bed • 1 bath • 571 ft²
2 bedroom flat for sale in Broughton Road, Thornton Heath, CR7 — £300,000 • 2 bed • 1 bath • 850 ft²
6 bedroom house for sale in Chatsworth Road, Croydon, CR0 — £900,000 • 6 bed • 6 bath • 1163 ft²


















































































































