Eight one-bed flats with strong uplift and redevelopment potential near transport.
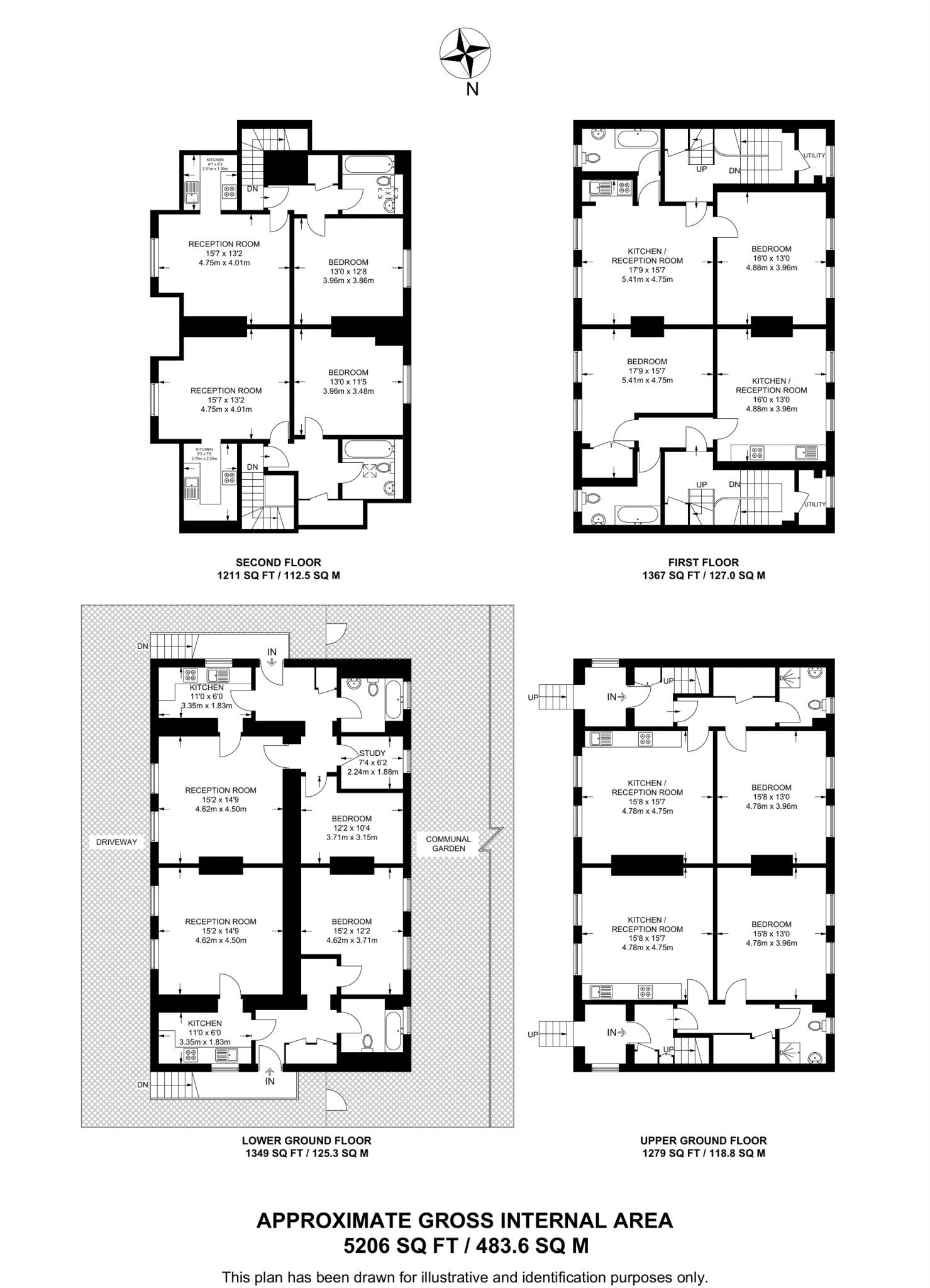
Freehold: two buildings totalling 5,206 sq ft
A rare freehold package of two Victorian end-terrace buildings totalling 5,206 sq ft, arranged as eight one-bedroom apartments and producing a current gross rental income of £91,200 per year. The site sits on a very large plot in quiet Lower Addiscombe, offering clear scope for reconfiguration or redevelopment subject to planning. The vendor estimates an ERV of about £132,000, indicating meaningful uplift potential for an active investor.
All flats are let on assured shorthold tenancies, providing immediate cashflow. Construction dates from c.1900–1929 with solid brick walls; heating is mains gas via boiler and radiators. The buildings show typical period construction and will likely benefit from targeted refurbishment, improved insulation and cosmetic updating to reach ERV and attract higher rents or new tenancies.
Buyers should note material considerations: current income is below the stated ERV, so capital or management input is required to realise potential. The area is classified as deprived with above-average local crime rates, which may affect tenant demand and management costs. Planning or building works will be subject to local authority approval and budget for upgrades and possible party-wall or roof works should be allowed for.
This property will suit experienced landlords or small developers who can manage multi-tenanted stock and deliver refurbishment or redevelopment. Its excellent transport links, nearby schools and inner-city cosmopolitan catchment support long-term letting demand once improvements are made.
2 bedroom flat for sale in Nicholson Road, Addiscombe, CR0 — £340,000 • 2 bed • 2 bath
3 bedroom terraced house for sale in Selsdon Road, South Croydon, CR2 — £475,000 • 3 bed • 2 bath • 1148 ft²
6 bedroom house for sale in Chatsworth Road, Croydon, CR0 — £900,000 • 6 bed • 6 bath • 1163 ft²
1 bedroom apartment for sale in Lower Addiscombe Road, Croydon, CR0 — £190,000 • 1 bed • 1 bath
Property for sale in Woodside Green, 21 Woodside Green, SE25 — £575,000 • 1 bed • 1 bath • 1355 ft²
2 bedroom apartment for sale in Lower Addiscombe Road, Croydon, London, CR0 — £299,995 • 2 bed • 1 bath • 1035 ft²


























































































