**Standout Features:**
- Beautifully maintained detached Tudor-style residence
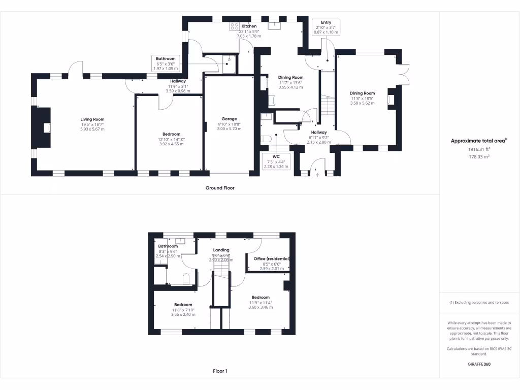
- Four spacious bedrooms and two modern bathrooms
- Extensive gardens & large plot of approximately 0.87 acres
- Outbuildings including a versatile studio, workshop, and stable block
- Generous in-and-out gravel driveway with ample parking
- Quiet countryside location with picturesque views
- Well-connected to nearby towns and amenities (3 miles from Lavenham; 10 miles from Bury St Edmunds)
This enchanting mock Tudor residence, set in the peaceful hamlet of Thorpe Morieux, presents a perfect blend of timeless elegance and modern comfort. With four well-appointed bedrooms and versatile spaces including a charming living room featuring a wood-burning stove, this home is ideal for families seeking comfort and style. The beautifully landscaped gardens create a private oasis, perfect for leisurely weekends and entertaining guests on the stone-paved patio.
Explore further possibilities with the property's extensive outbuildings, ideal for a home office or creative studio, while the ample parking and dual garage ensure convenience for multiple vehicles. The peaceful rural setting, combined with nearby amenities in Lavenham and Bury St Edmunds, offers the best of countryside living with accessibility. Don’t miss the chance to make this unique property your own—an exceptional opportunity that won’t last long!
5 bedroom farm house for sale in Thorpe Morieux, Suffolk, IP30 — £650,000 • 5 bed • 2 bath • 2500 ft²
6 bedroom detached house for sale in Heath Road, East Bergholt, CO7 — £1,495,000 • 6 bed • 3 bath • 2594 ft²
4 bedroom detached house for sale in Thurston, Suffolk, IP31 — £725,000 • 4 bed • 2 bath • 2422 ft²
5 bedroom detached house for sale in Bury Road, Kentford, Newmarket, CB8 — £550,000 • 5 bed • 1 bath • 2422 ft²
5 bedroom detached house for sale in Brockley, Bury St Edmunds, Suffolk, IP29 — £790,000 • 5 bed • 2 bath • 3343 ft²
4 bedroom detached house for sale in Felsham, Suffolk, IP30 — £715,000 • 4 bed • 2 bath • 1991 ft²






































































































































































