Bright third-floor apartment with Olympic Park views and quick links to Westfield and mainline transport.
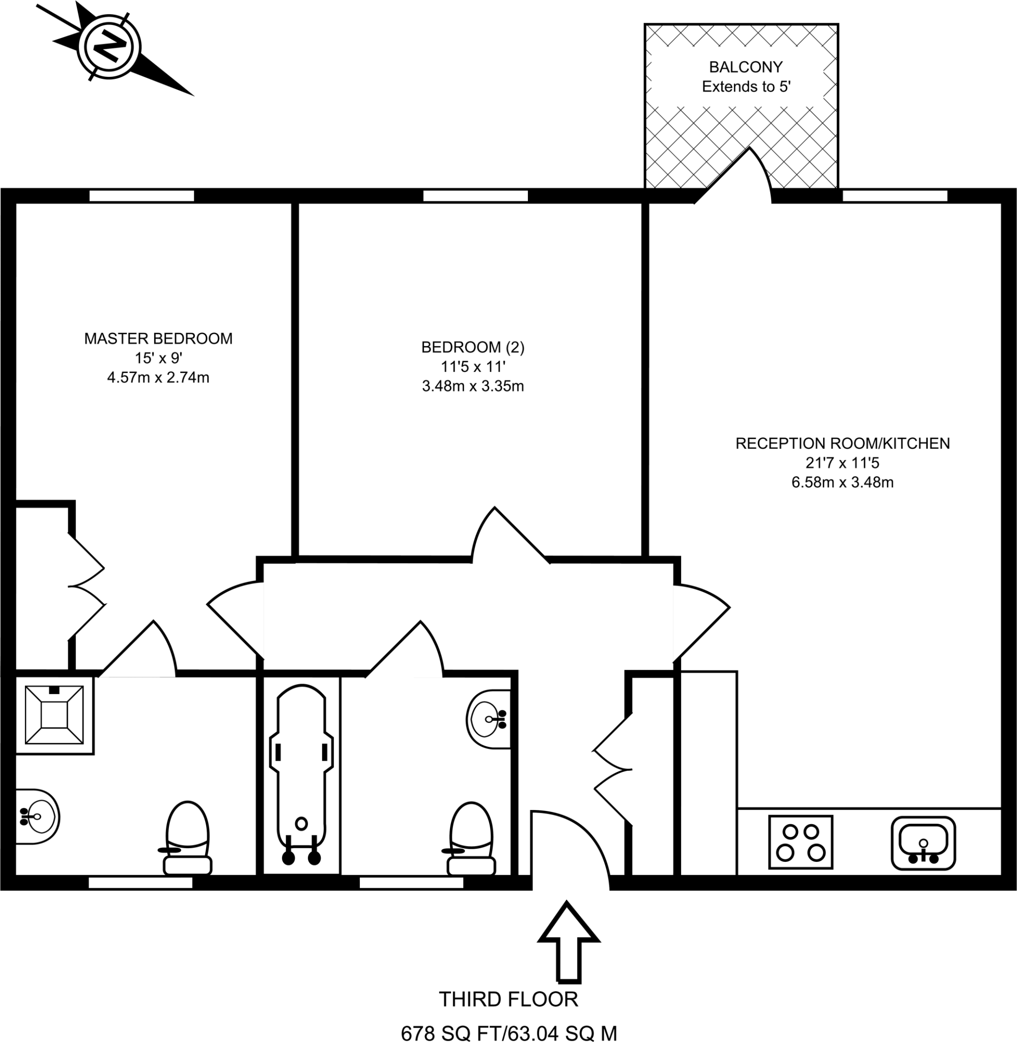
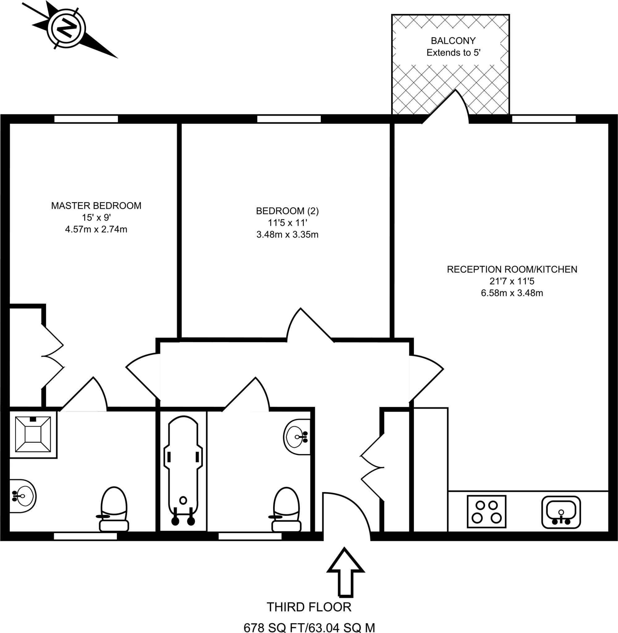
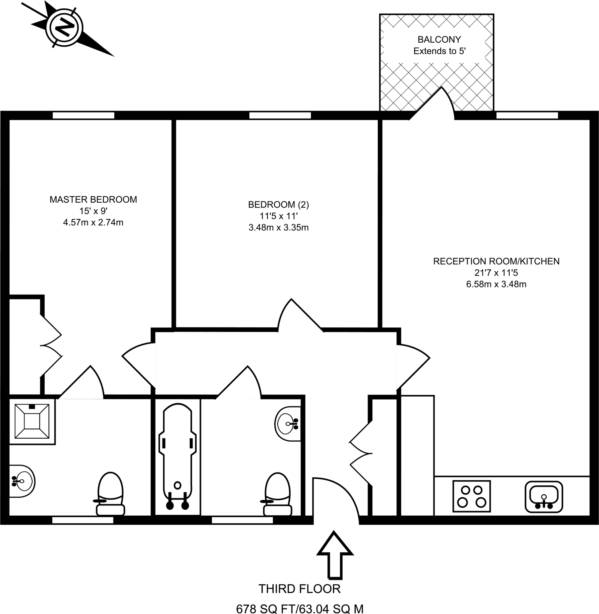
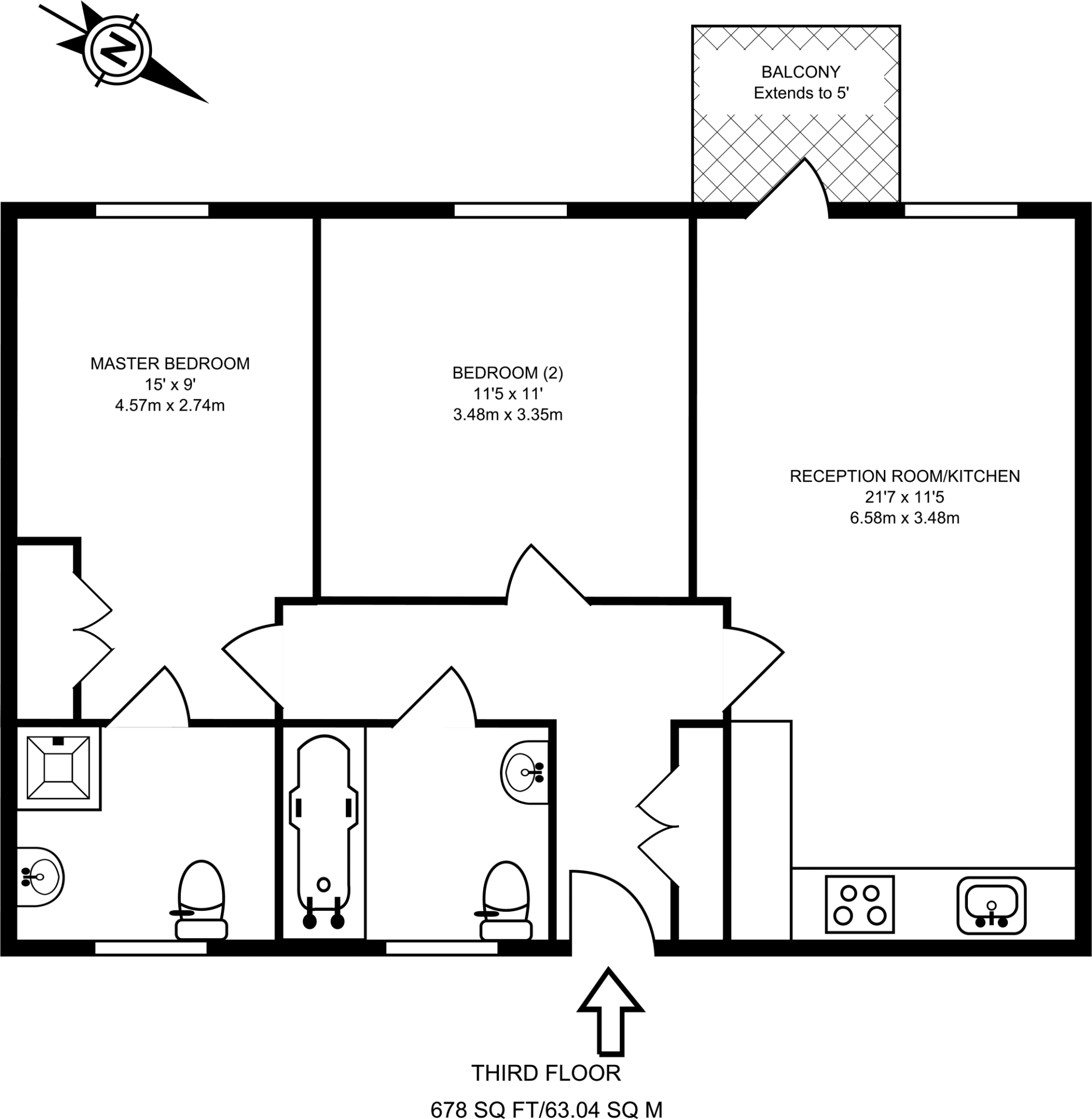
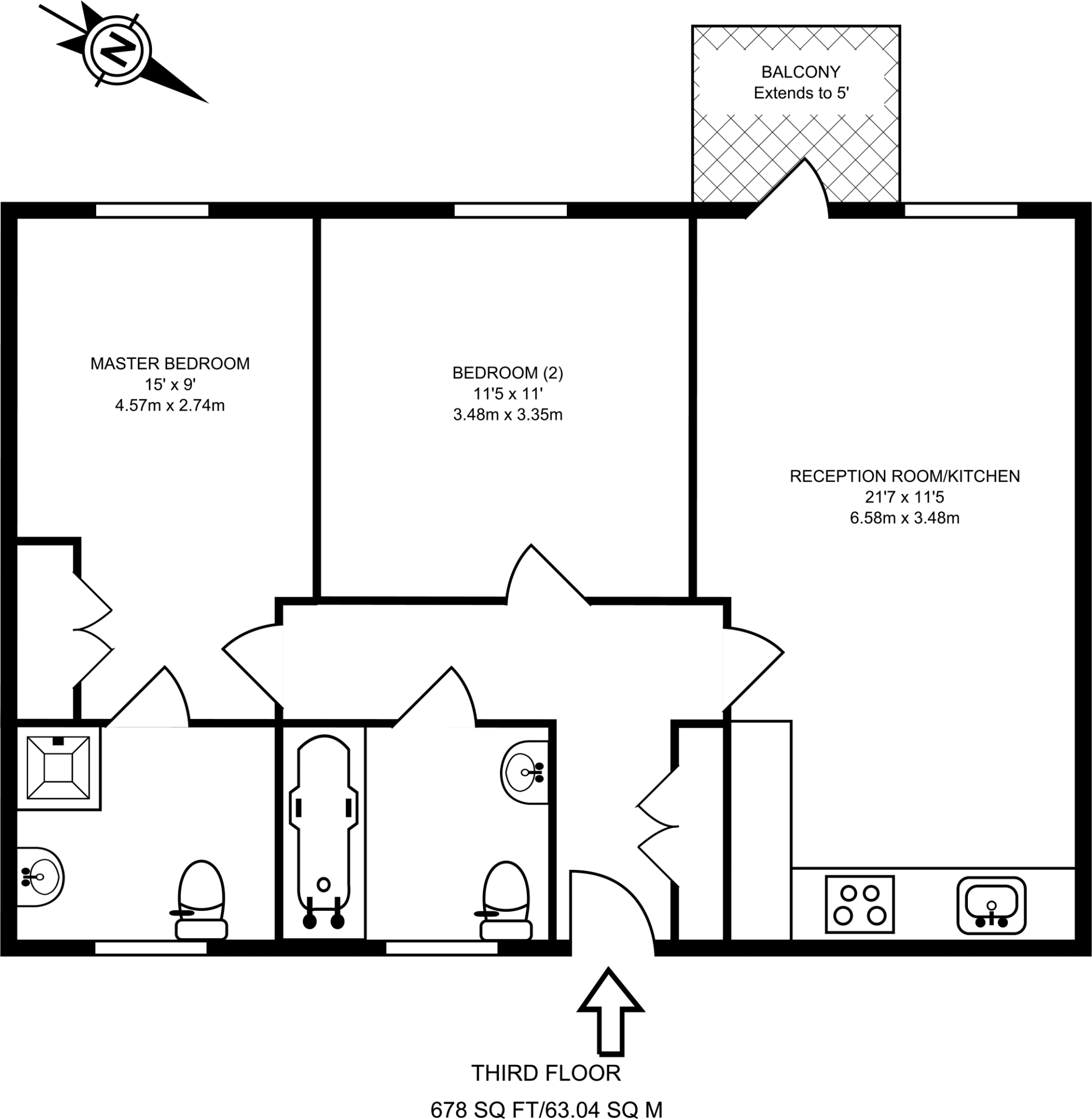
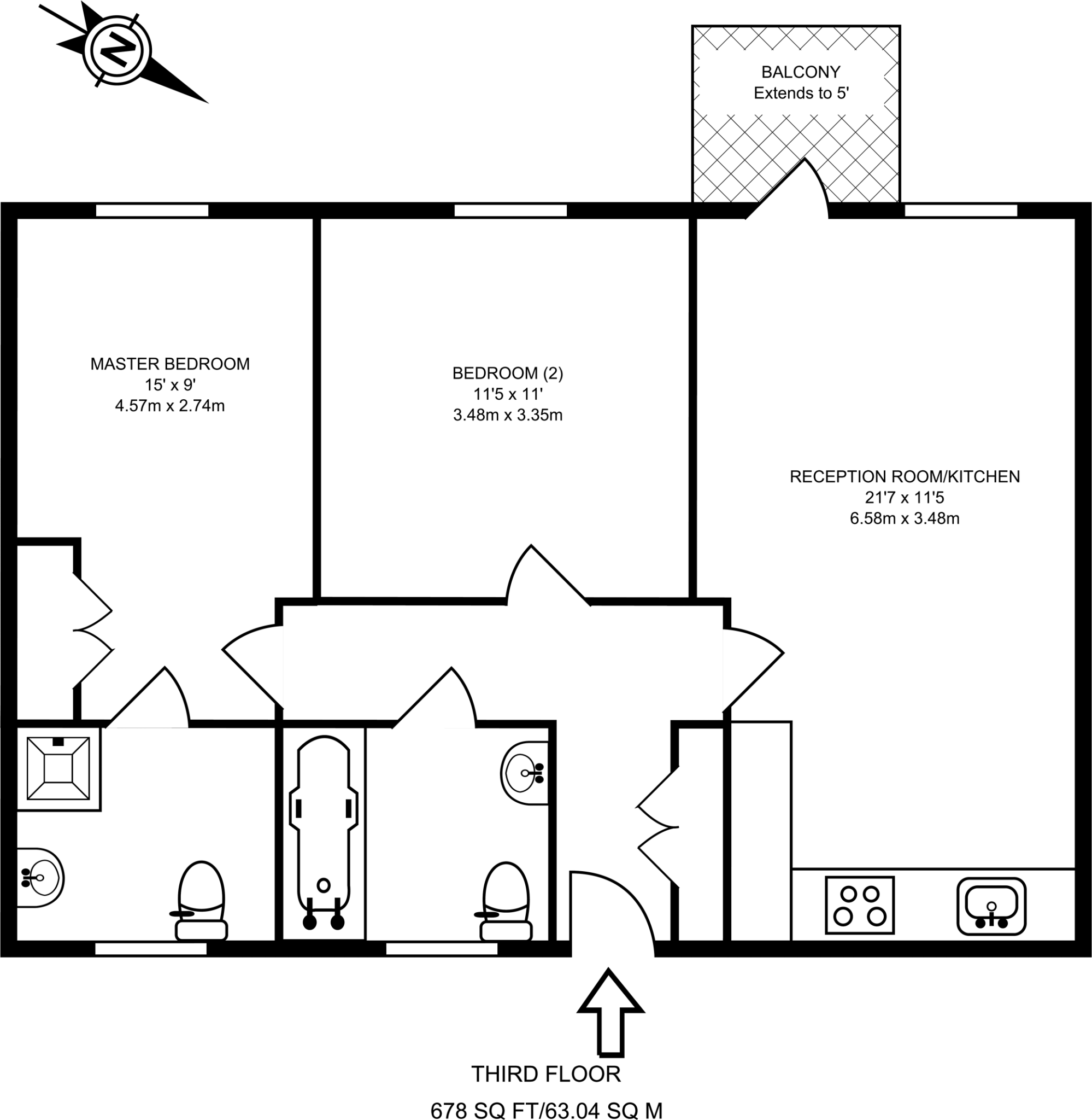
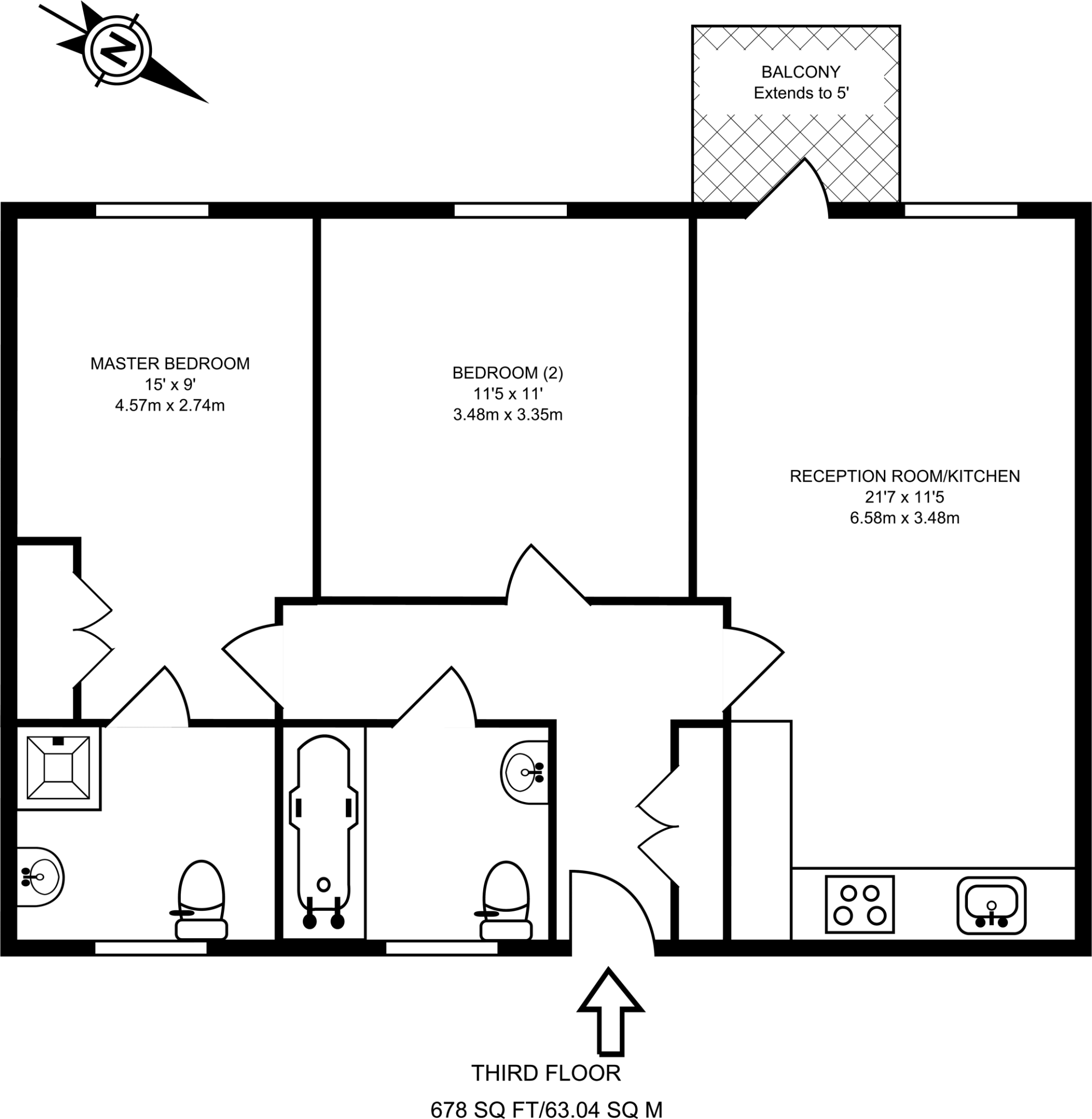
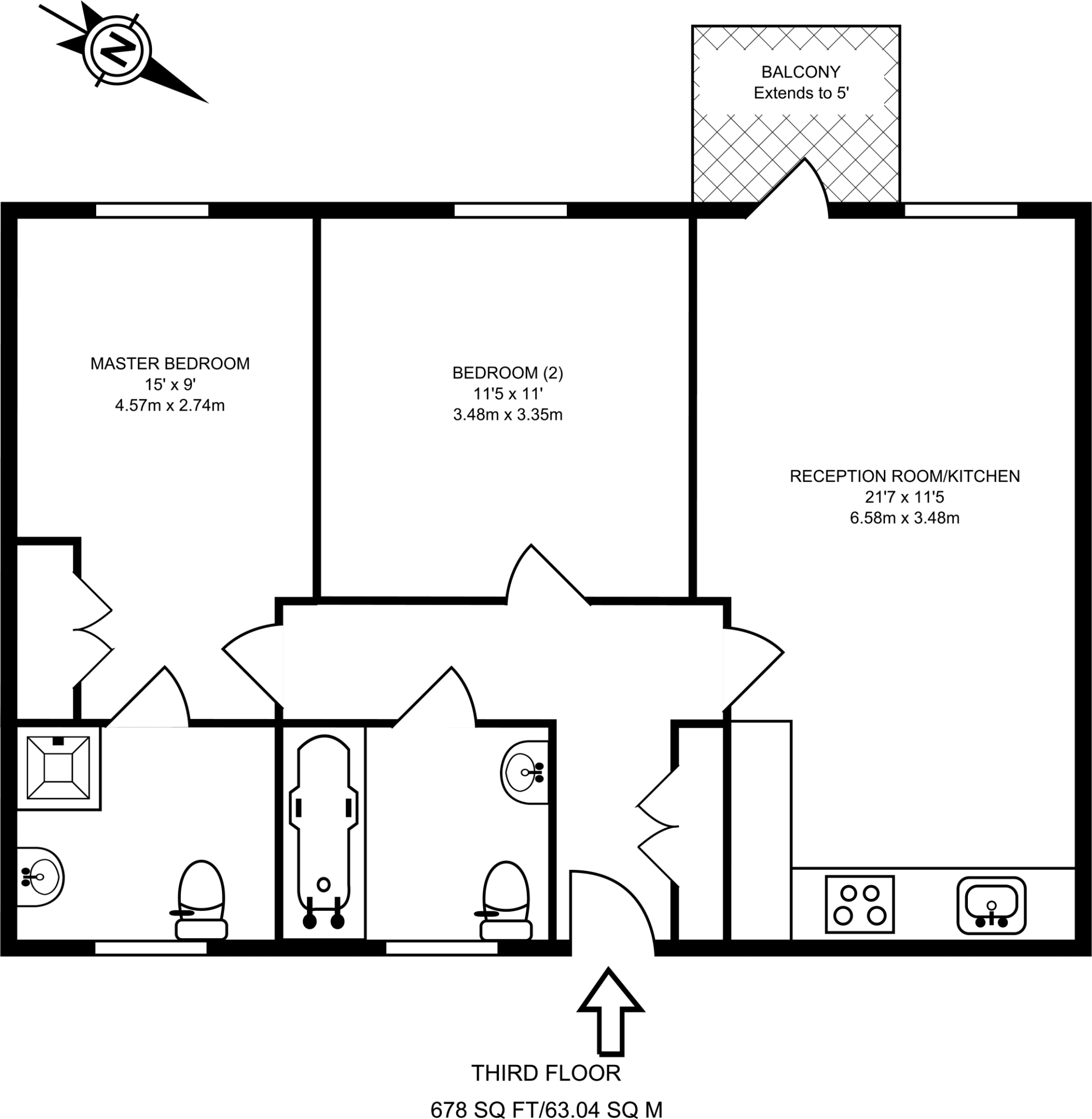
Third-floor two-bedroom flat with private balcony and Olympic Park views
Set on the third floor of a modern development completed 2007–2011, this two-bedroom flat offers bright living space and private outdoor space overlooking the Olympic Park. The generous reception room accommodates dining, while a smart kitchen opens onto a balcony for morning coffee. The master bedroom benefits from an en suite shower; a second double bedroom and a sleek main bathroom complete the accommodation.
Practical features include double glazing, mains gas heating via a community scheme and fast broadband and mobile signal — useful for working from home. The building includes communal roof gardens and is a short walk from Westfield, the Olympic Park and Stratford’s major transport hub, offering strong local convenience.
Be aware this is a leasehold apartment and sits in an area classed as high crime with local deprivation indicators; buyers should factor any security, insurance or service-charge implications into their decision. The community heating arrangement may mean higher ongoing charges than standalone boilers. Overall size is average at around 678 sq ft, offering good living space but limited scope for significant extension.
This home suits a first-time buyer seeking modern, well-connected accommodation close to major shopping and transport, or a buyer prioritising location and rental demand. It presents a move-in-ready option with typical urban caveats relating to charges and neighbourhood safety.
2 bedroom flat for sale in Hallings Wharf Studios, Stratford, London, E15 — £350,000 • 2 bed • 1 bath • 845 ft²
2 bedroom flat for sale in Granite Apartments, Stratford, London, E15 — £325,000 • 2 bed • 1 bath • 624 ft²
2 bedroom flat for sale in Victoria Mills Studios, Stratford, London, E15 — £400,000 • 2 bed • 1 bath • 886 ft²
2 bedroom flat for sale in Burford Wharf Apartments, 3 Cam Road, Stratford, E15 — £375,000 • 2 bed • 1 bath • 873 ft²
2 bedroom flat for sale in Channelsea Road, Stratford, London, E15 — £375,000 • 2 bed • 1 bath • 718 ft²
2 bedroom flat for sale in Burford Road, London, E15 — £375,000 • 2 bed • 1 bath • 892 ft²










































































































































































































































































































































































































































































































































































































































































































































































































































































































































































































































