Modern one-bedroom new-build near Burgess Hill station, ready Autumn 2025.
Allocated off-street parking included
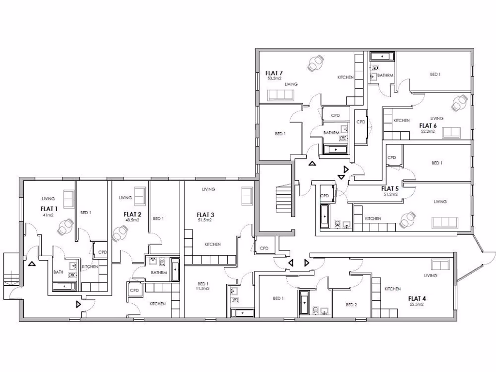
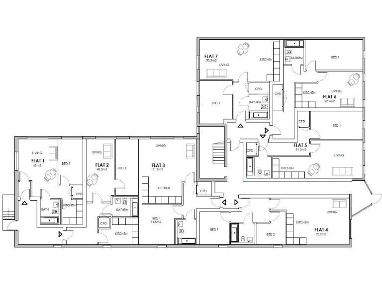
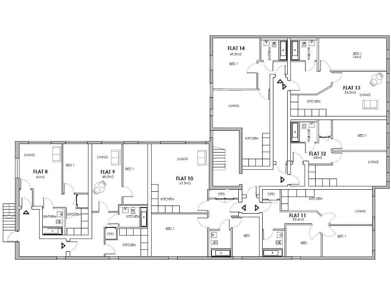
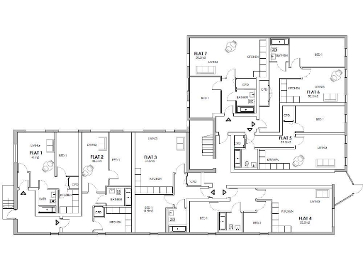
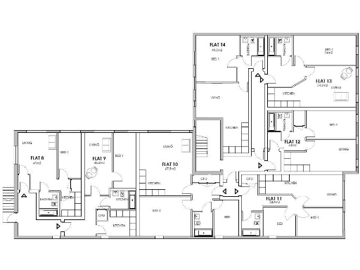
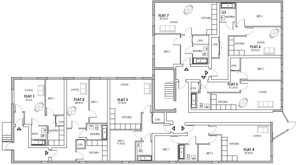
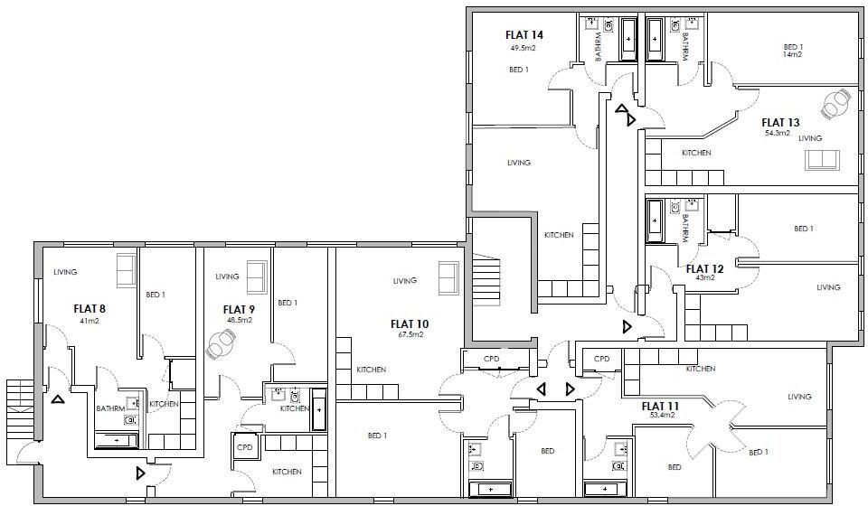
This one-bedroom apartment in Forum House offers modern, open-plan living designed for easy commuter life. The development of 14 new apartments completes Autumn 2025 and includes allocated off-street parking, contemporary finishes and a 10-year build warranty — useful reassurance for first-time buyers and investors alike.
The location is a genuine strength: a short walk to Burgess Hill train station with Thameslink services into London, plus extensive local shops, cafés and green space on the doorstep. Fast broadband and excellent mobile signal suit remote working and everyday connectivity.
Buyers should note this is a long-leasehold new build (circa 200 years remaining) with an indicative service charge of £1,000 and possible additional leasehold-related fees. Council tax details are not yet provided. Images are of a show home and are indicative; specification and layouts may change per the developer.
Overall this apartment will appeal to first-time buyers seeking modern, low-maintenance living near strong transport links, and to investors looking for a new-build product in a very affluent, commuter-friendly town. Verify service charge, any extra fees and final specification before committing.
1 bedroom apartment for sale in Forum House, 277 London Road, Burgess Hill, RH15 — £225,000 • 1 bed • 1 bath • 3841 ft²
2 bedroom apartment for sale in Forum House, 277 London Road, Burgess Hill, RH15 — £300,000 • 2 bed • 1 bath • 3737 ft²
2 bedroom apartment for sale in 277 London Road, Burgess Hill, RH15 — £225,000 • 2 bed • 1 bath • 4813 ft²
2 bedroom apartment for sale in Victoria Road, Burgess Hill, RH15 — £295,000 • 2 bed • 2 bath • 925 ft²
1 bedroom flat for sale in West Street, Burgess Hill, RH15 — £170,000 • 1 bed • 1 bath
2 bedroom flat for sale in Keymer Road,
Burgess Hill,
RH15 0XT, RH15 — £300,000 • 2 bed • 1 bath • 9111 ft²


































