New-build two-bedroom apartment with parking in affluent Burgess Hill, ideal for first-time buyers..
- New-build two-bedroom flat with contemporary open-plan living
- Allocated off-street parking included
- Fast broadband and excellent mobile signal
- Located in very affluent, low-crime area
- Leasehold tenure — confirm lease length and charges
- Council tax band not available until after occupation
- Multi-story block; check exact floor and access details
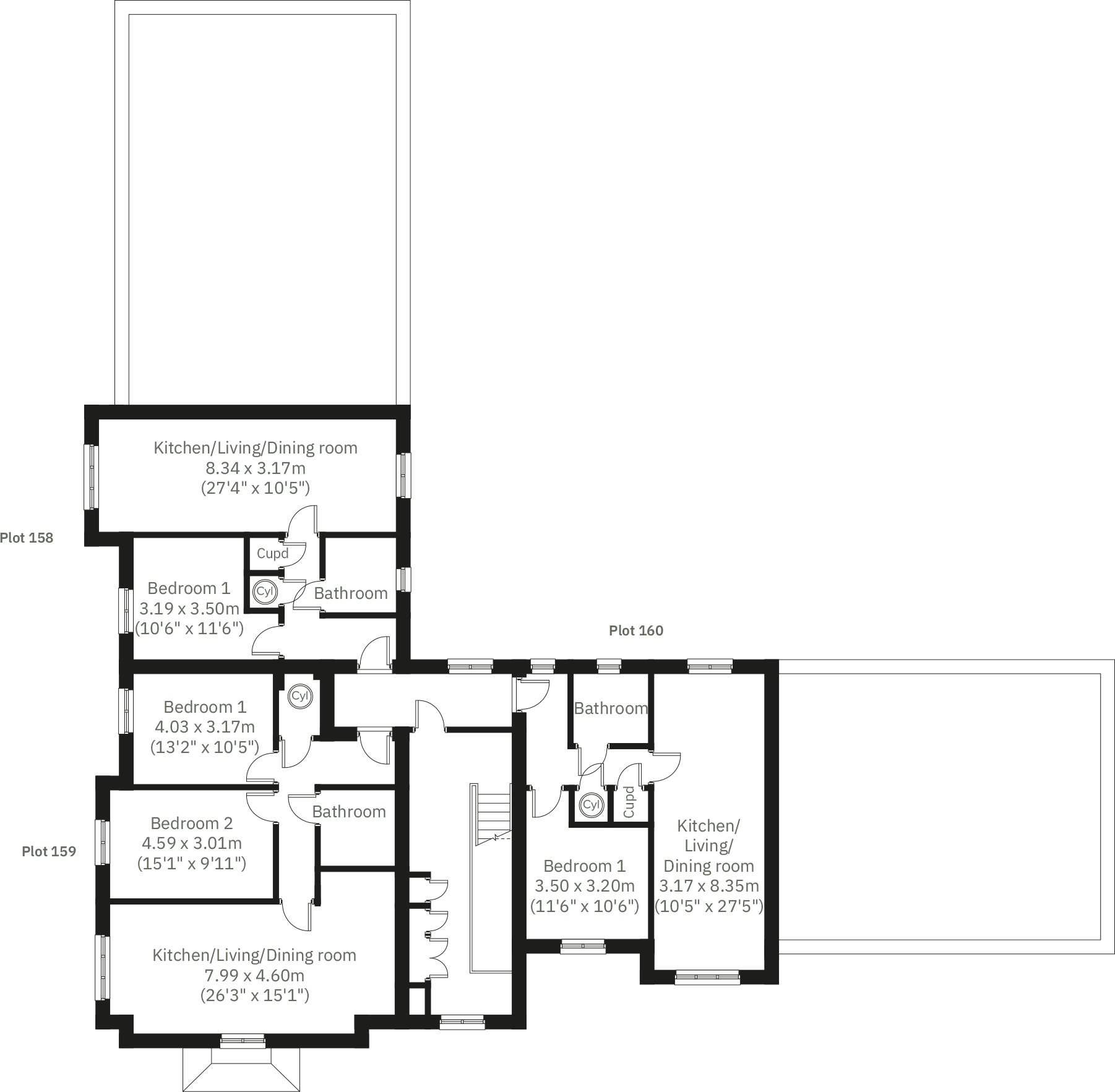
- Listing shows unusually large overall size and room count — verify
This newly built two-bedroom flat on Keymer Road offers contemporary open-plan living in an affluent Burgess Hill neighbourhood. The development features modern finishes, integrated kitchen appliances and allocated off-street parking, suited to first-time buyers or investors seeking low-crime, well-connected locations.
Set over a multi-story block, the apartment benefits from fast broadband, excellent mobile signal and nearby transport links including a bus stop. Local schools receive Good or strong independent ratings, and nearby amenities include a stream and local services — useful for everyday convenience and family needs.
Important practical points are stated plainly: the property is leasehold and the council tax band will only be confirmed post-occupation. As a new build, buyers should allow time for final snagging and finishes to settle. The listing records an unusually large overall size and room count, which prospective purchasers should verify during viewing and legal checks.
Quiet, modern and well-specified, this flat suits first-time buyers wanting a low-maintenance, contemporary home in a very affluent area, or investors targeting strong local demand. Viewings and formal checks will confirm exact internal measurements, service charges and lease details.
2 bedroom flat for sale in Keymer Road,
Burgess Hill,
RH15 0XT, RH15 — £290,000 • 2 bed • 1 bath • 9485 ft²
2 bedroom flat for sale in Craftmans Crescent, Priory Court, RH15 — £294,000 • 2 bed • 2 bath • 804 ft²
2 bedroom flat for sale in Icarus Avenue, Burgess Hill, RH15 — £275,000 • 2 bed • 1 bath • 739 ft²
2 bedroom flat for sale in Sycamore Drive, Burgess Hill, West Sussex, RH15 — £290,000 • 2 bed • 1 bath • 699 ft²
2 bedroom flat for sale in Grove Road, Knyveton Court Grove Road, RH15 — £225,000 • 2 bed • 1 bath • 696 ft²
2 bedroom flat for sale in Leylands Road, Burgess Hill, RH15 — £225,000 • 2 bed • 1 bath • 614 ft²


























































































































