**Standout Features:**
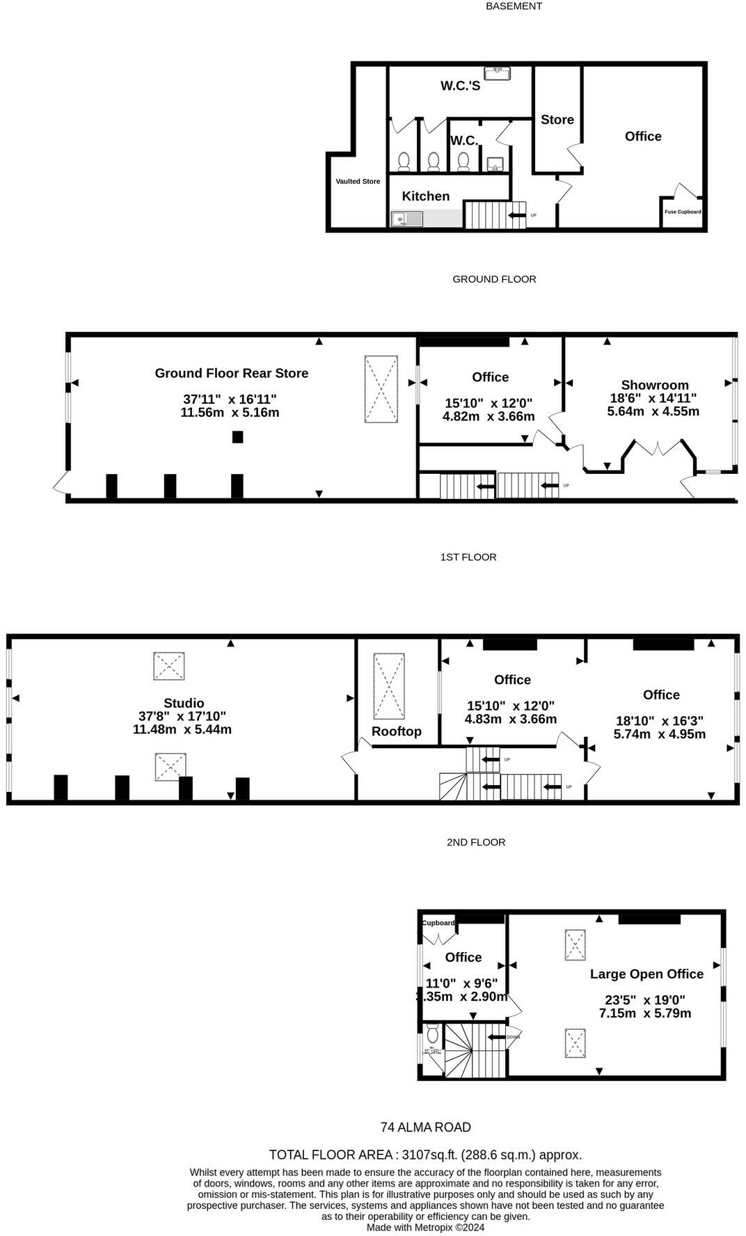
- Large commercial property over four floors: approx. 3,107 sq. ft.
- Well-positioned just 50 yards from Whiteladies Road, a bustling area.
- Includes 6 offices, a photo studio, showroom, kitchen, and 3 WC facilities.
- Attractive Bath stone exterior with a prominent shop front and rear access from Melrose Place.
- Currently vacant, offering immediate occupancy for new commercial ventures.
**Summary:**
This impressive four-story commercial property on Alma Road provides a unique opportunity for savvy investors or business owners looking to establish a presence in the heart of Clifton. Spanning approximately 3,107 sq. ft., the layout includes multiple dynamic spaces: six offices, a photo studio, and a large showroom, along with essential amenities such as a kitchen and WCs, making it both functional and comfortable.
With its Victorian charm and striking Bath stone facade, the property’s location offers high foot traffic just off Whiteladies Road, surrounded by a cosmopolitan neighborhood rife with dining, retail, and leisure options. Ideal for a range of possibilities from creative studios to professional offices, it also presents a fantastic chance for those interested in renovating to suit their unique vision or expand further.
Potential downsides for buyers to note include the current vacancy, which may necessitate upkeep or renovations to tailor it to specific operational needs. However, this blank canvas invites your imagination and business potential. Don’t miss the chance to make it your own—such prime properties rarely remain on the market for long!
Commercial property for sale in 65A Whiteladies Road, Bristol, City Of Bristol, BS8 — £625,000 • 1 bed • 1 bath • 1897 ft²
Office for sale in 25-27 Clare Street, Bristol, City of Bristol, BS1 — £575,000 • 1 bed • 1 bath • 2645 ft²
High street retail property for sale in 94E Whiteladies Road, Bristol, City of Bristol, BS8 — £250,000 • 1 bed • 1 bath • 681 ft²
Office for sale in Hyland Mews , 21 High Street, Clifton, Bristol, BS8 — £975,000 • 1 bed • 1 bath • 2437 ft²
Commercial property for sale in 16 18 & 20 Princess Victoria St, 25 & 27 Waterloo Street, Clifton Village, Bristol, City of Bristol, BS8 4BP, BS8 — £1,900,000 • 1 bed • 1 bath • 8043 ft²
Commercial development for sale in 4 - 6 Horfield Road, Bristol, City Of Bristol, BS2 — £340,000 • 1 bed • 1 bath • 1243 ft²






































