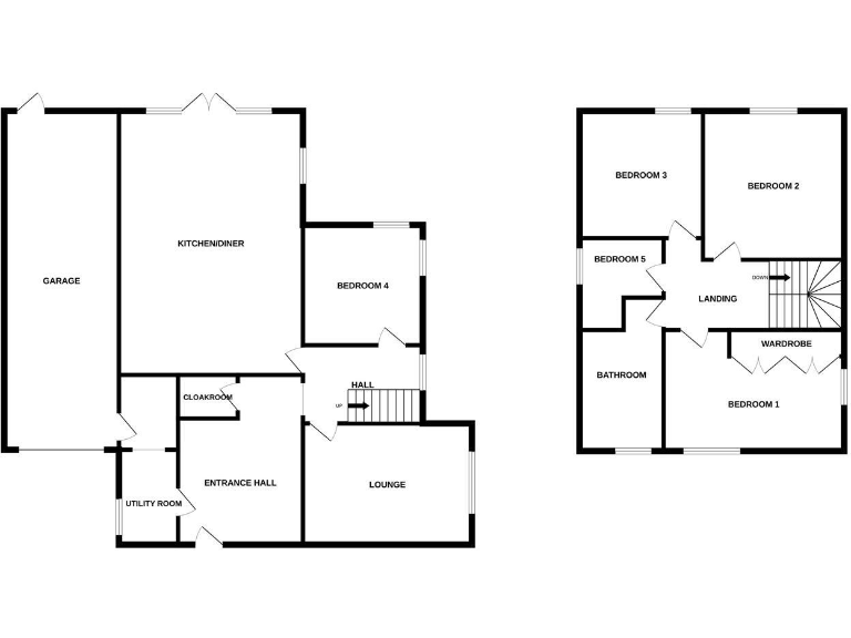
**Standout Features:**
- Impressive 5-bedroom, 2-bathroom detached residence
- Over 2,000 sq. ft. of living space
- Spectacular 24' luxury fitted kitchen/diner
- Generous enclosed rear garden with ample outdoor space
- Extensive driveway and 31' garage for parking/storage
- Close to local beaches, schools, and mainline railway station
**Notable Concerns:**
- Property built between 1900-1929; potential structural concerns may require updating
- Walls constructed of solid brick without insulation (assumed)
Discover the charm of this beautifully extended Tudor Revival home, perfectly situated in the serene East Clacton area. With generous living space over 2,000 sq. ft., the property features a standout luxury kitchen/diner and a cozy lounge, perfect for family gatherings or entertaining guests. Enjoy direct access to local beaches, esteemed schools, and convenient transport links to London, making it ideal for families and commuters alike.
The large enclosed garden provides a safe oasis for children and pets, while the generous parking options, including a 31' garage, add to the property's allure. Though the house emanates character and warmth, potential buyers should be aware of the age-related updates that may be necessary. Priced competitively at £550,000 to £575,000, this remarkable property presents a unique opportunity—one that won't last long. Schedule your viewing today to fully appreciate this exclusive family home!
4 bedroom detached house for sale in Lancaster Gardens East, East Clacton, CO15 — £600,000 • 4 bed • 2 bath • 2132 ft²
4 bedroom detached house for sale in St Albans Road, Clacton-on-Sea, CO15 — £550,000 • 4 bed • 2 bath
5 bedroom detached house for sale in West Road, Clacton-On-Sea, CO15 — £450,000 • 5 bed • 1 bath • 1507 ft²
4 bedroom detached house for sale in Kings Road, Clacton on Sea, CO15 — £600,000 • 4 bed • 2 bath • 2000 ft²
5 bedroom detached house for sale in Connaught Gardens East, Clacton-On-Sea, CO15 — £580,000 • 5 bed • 1 bath • 2541 ft²
4 bedroom semi-detached house for sale in Third Avenue, Clacton-On-Sea, CO15 — £475,000 • 4 bed • 2 bath • 1928 ft²






































































