Private entrance, sunny garden and easy walk to station for first-time buyers.
Private entrance and south-east facing private garden
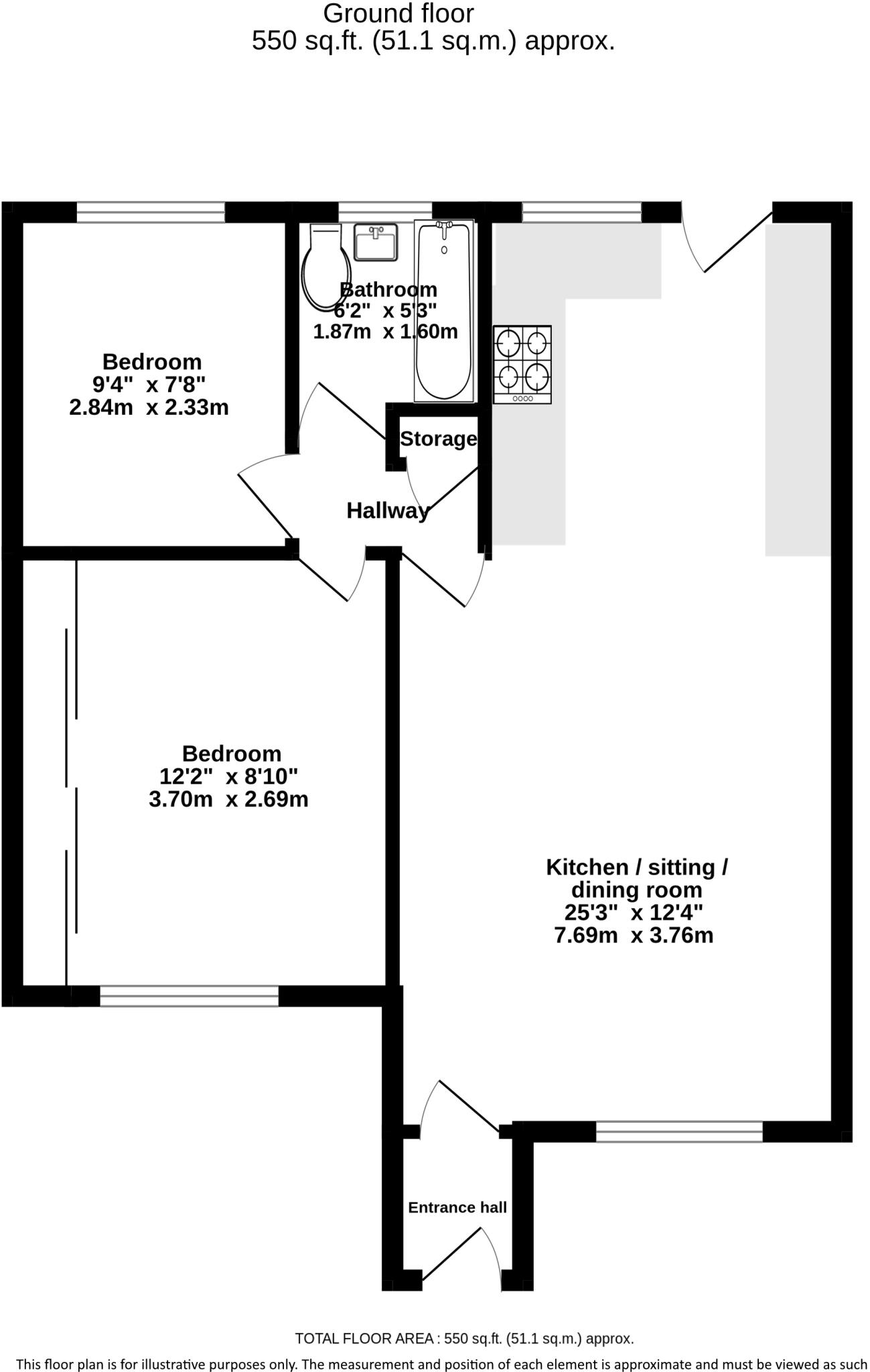
Open-plan living/kitchen with plentiful storage and appliance space
Two double bedrooms; main bedroom with excellent fitted storage
Well-presented interior; modern double glazing throughout
Compact size ~550 sq ft; single bathroom may feel tight
Leasehold with very long lease (935 years); ground rent £12
Service charge £650 (below average) and affordable council tax
Average broadband speeds; excellent mobile signal
Bright, well-presented two-bedroom ground-floor maisonette ideal for first-time buyers seeking a low-maintenance starter home in St Albans. The property benefits from its own private entrance, a flexible open-plan living and kitchen area with ample storage, and a south-east facing private garden that catches morning sun. Proximity to the mainline station, The Abbey and local amenities makes daily commuting and weekend leisure straightforward.
Accommodation is compact (approximately 550 sq ft) but efficiently arranged: two double bedrooms (one with excellent fitted storage), a single bathroom with a rear window, and contemporary double glazing. The building dates from the late 1970s/early 1980s and is in tidy, move-in condition, making it suitable for buyers who want minimal immediate works.
Practical points are clear and favourable: this is a leasehold property with an exceptionally long lease (935 years), modest ground rent (£12) and a below-average service charge (£650). Broadband is average and heating is gas-fired via boiler and radiators. The neighbourhood is very affluent with low crime and excellent mobile signal — plus several highly rated schools nearby — making this a sensible long-term choice.
Buyers should note the small overall size and single bathroom, which may feel tight for some households. While presented well, the layout and size limit substantial extension potential; any major changes would require planning and communal agreement. Overall, the maisonette offers a compact, well-located home with genuine commuting and lifestyle convenience.
2 bedroom flat for sale in The Lawns, Mount Pleasant, St. Albans, AL3 — £410,000 • 2 bed • 1 bath • 657 ft²
2 bedroom maisonette for sale in Trumpington Drive, St. Albans, AL1 2JP, AL1 — £375,000 • 2 bed • 1 bath • 853 ft²
2 bedroom maisonette for sale in Abbots Avenue West, St. Albans, AL1 — £400,000 • 2 bed • 1 bath • 768 ft²
2 bedroom apartment for sale in Sportsmans Hall, Cottonmill Lane, St. Albans, Hertfordshire, AL1 — £400,000 • 2 bed • 1 bath • 670 ft²
1 bedroom maisonette for sale in Richard Stagg Close, St Albans, AL1 — £299,950 • 1 bed • 1 bath
1 bedroom maisonette for sale in Normandy Road, St. Albans, Hertfordshire, AL3 — £350,000 • 1 bed • 1 bath • 445 ft²






















































