Private low-maintenance garden and fast rail links to central London.
Share of freehold and recently renovated throughout
Private paved rear garden with separate gate entry
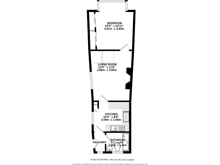
Compact 445 sq ft layout; best for one occupant or couple
One double bedroom with fitted storage and bay window
Bright reception room with timber flooring and feature fireplace
Contemporary kitchen with integrated appliances and storage
Solid-brick walls assumed uninsulated; consider insulation works
Double glazing install date unknown; check window specification
This freshly refurbished one-bedroom ground-floor maisonette combines period character with contemporary finishes, ideal for a first-time buyer or single professional. The accommodation is well laid out across 445 sq ft and benefits from a private paved garden accessed via a separate gate, offering low-maintenance outdoor space rarely found at this size and price point.
Inside, a bright reception room with timber flooring and a feature fireplace sits at the heart of the home, while a modern kitchen with white gloss units and integrated appliances maximises storage and work surface. The double bedroom includes excellent fitted storage and a large square bay window that brings in good natural light.
Practical details are strong: the property is share of freehold, recently renovated, and located under a mile from St Albans City mainline station with fast links to central London. It sits in a very affluent, low-crime area with fast broadband and excellent mobile signal — useful for home working and commuting.
Buyers should note the maisonette is compact (445 sq ft) and sits within a solid-brick period building where insulation details are assumed absent; double glazing installation date is unknown. Heating is mains gas via a boiler and radiators. These factors may affect running costs and future upgrade plans but also leave scope for targeted improvements to increase comfort and value.
2 bedroom maisonette for sale in Mount Pleasant, St Albans, AL3 — £425,000 • 2 bed • 1 bath • 550 ft²
2 bedroom maisonette for sale in Trumpington Drive, St. Albans, AL1 2JP, AL1 — £375,000 • 2 bed • 1 bath • 853 ft²
1 bedroom maisonette for sale in Richard Stagg Close, St Albans, AL1 — £299,950 • 1 bed • 1 bath
2 bedroom maisonette for sale in Abbots Avenue West, St. Albans, AL1 — £400,000 • 2 bed • 1 bath • 768 ft²
2 bedroom apartment for sale in Beresford Road, St. Albans, Hertfordshire, AL1 — £400,000 • 2 bed • 1 bath • 743 ft²
2 bedroom apartment for sale in Sportsmans Hall, Cottonmill Lane, St. Albans, Hertfordshire, AL1 — £400,000 • 2 bed • 1 bath • 670 ft²






































































