Grade II listed seafront home with sea views, parking and self-contained lower apartment..
Grade II listed Victorian seafront townhouse with extensive sea views
Recently renovated throughout; period features retained and refreshed
Flexible layout includes lower-ground self-contained apartment
Off-street parking for two cars and discreet EV charging point
Small walled courtyard garden; limited private outdoor space
Listed status restricts alterations and may complicate changes
Council Tax Band E; local area has above-average crime statistics
Low flood risk; ultrafast FTTP broadband available
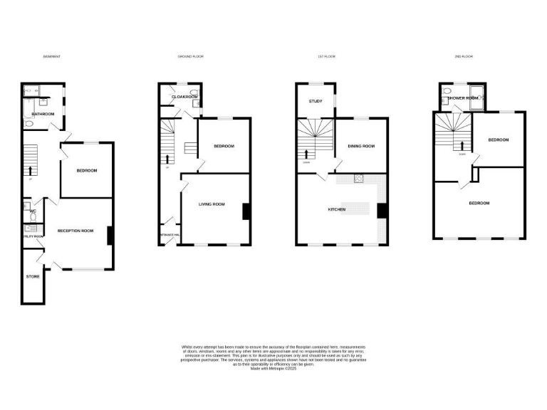
Set directly on Burnham-on-Sea’s Esplanade, this Grade II listed Victorian townhouse has been sensitively refurbished to combine period detail with modern comfort. High ceilings, ornate cornices and tall arched windows frame far-reaching sea views from the principal rooms. The current layout includes a self-contained lower-ground apartment, giving genuine flexibility for dual-occupancy or rental income.
Recent renovations have delivered contemporary services and conveniences: gas central heating, ultrafast FTTP broadband and a discreet EV charging point. The property sits on a small plot with a walled courtyard garden and off-street parking for two cars—rare for a seafront terrace. Flood risk is low and the house benefits from direct promenade access and easy reach of local shops and leisure amenities.
There are important practical considerations: the listed status will restrict external and some internal alterations, which may complicate significant remodelling or extension. Council Tax is band E (above average) and the local area records higher-than-average crime and pockets of deprivation — factors to weigh for families or investors. The compact plot and limited private outdoor space may not suit buyers seeking large gardens.
Overall this is a striking, substantial seafront home for buyers who prioritise character, views and location. It will particularly suit households wanting flexible accommodation (main house plus basement apartment) or purchasers seeking a distinctive primary or second residence by the coast.
6 bedroom town house for sale in Esplanade, Burnham-on-Sea, TA8 — £585,000 • 6 bed • 3 bath • 3347 ft²
4 bedroom terraced house for sale in The Colony, Berrow Road, Burnham-On-Sea, TA8 — £595,000 • 4 bed • 3 bath • 2444 ft²
3 bedroom maisonette for sale in Burlington Court, Burnham on Sea, Somerset, TA8 — £169,950 • 3 bed • 1 bath • 950 ft²
3 bedroom house for sale in Lynton Road, Burnham-On-Sea, TA8 — £235,000 • 3 bed • 1 bath • 1131 ft²
4 bedroom maisonette for sale in Grove Road, Burnham-on-Sea, TA8 — £249,950 • 4 bed • 3 bath • 689 ft²
2 bedroom flat for sale in Allandale Road, Burnham-On-Sea, TA8 — £235,000 • 2 bed • 1 bath • 413 ft²






























































































































































