Low-maintenance new build with parking and garden, ideal for first-time owners.
Two double bedrooms with family bathroom and downstairs cloakroom
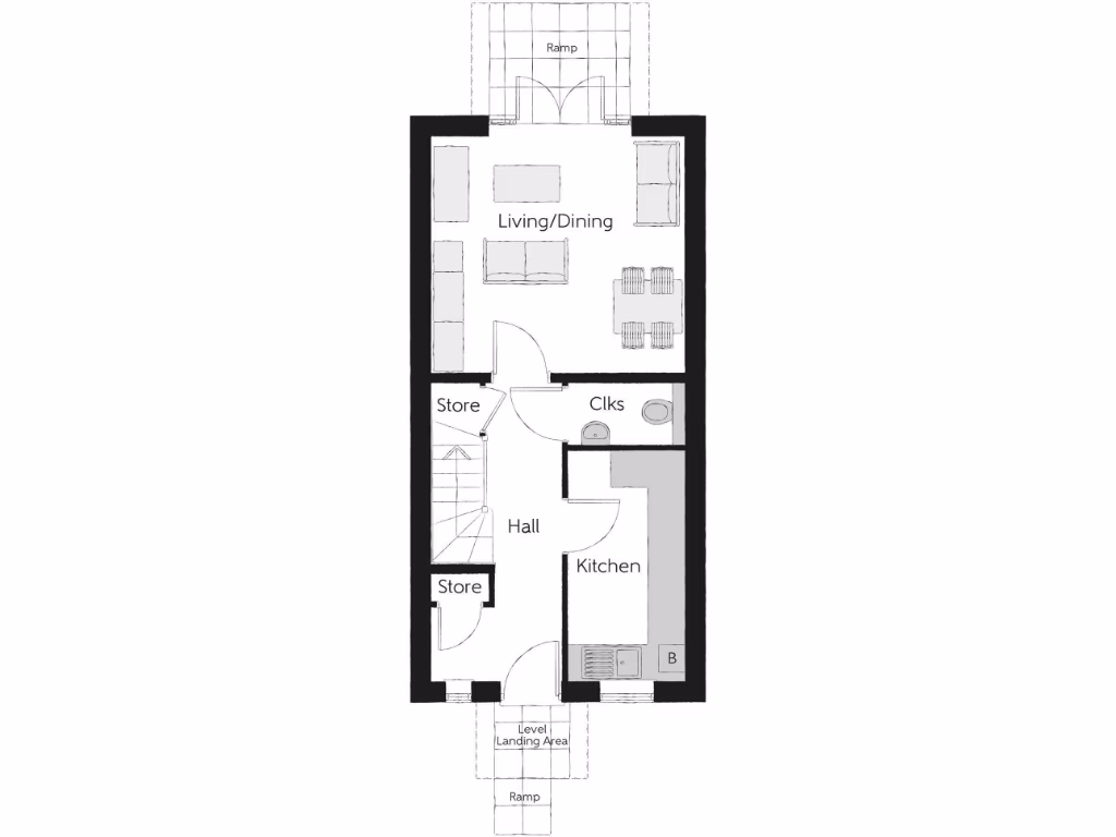
Open-plan living/dining room with double French doors
Modern fitted kitchen with integrated oven, hob and hood
Two allocated off-street parking spaces
Enclosed rear garden on a large plot
10-year NHBC Buildmark policy included
Service charge £228 per year (below average)
Photos are of show homes; finished plot may vary
This two-bedroom semi-detached new build offers straightforward, low-maintenance living ideal for first-time buyers or downsizers. The open-plan ground floor, complemented by double French doors, delivers plenty of natural light and a modern feel, while an integrated kitchen keeps running costs down.
Practical benefits include two allocated off-street parking spaces, an enclosed rear garden on a large plot, and a 10-year NHBC Buildmark policy for structural cover. Broadband speeds are fast and mobile signal is excellent, useful for home working and streaming.
Be aware this home has a single family bathroom and a downstairs cloakroom only. Photographs are of the show homes and the finished plot may vary. There is a modest service charge of £228 per year for communal upkeep.
Positioned with easy access to the A12/A14 and local amenities including supermarkets, schools rated Good, and regular bus links, this property suits buyers seeking convenience and low-maintenance, modern accommodation close to transport routes.
2 bedroom semi-detached house for sale in Roundhouse Avenue, Trimley St Martin, IP11 — £259,995 • 2 bed • 1 bath • 776 ft²
2 bedroom semi-detached house for sale in Roundhouse Avenue, Trimley St Martin, IP11 — £294,995 • 2 bed • 1 bath • 776 ft²
2 bedroom semi-detached house for sale in Roundhouse Avenue, Trimley St Martin, IP11 — £264,995 • 2 bed • 1 bath • 631 ft²
3 bedroom semi-detached house for sale in Roundhouse Avenue, Trimley St Martin, IP11 — £349,995 • 3 bed • 2 bath • 1010 ft²
3 bedroom detached house for sale in Roundhouse Avenue, Trimley St Martin, IP11 — £379,995 • 3 bed • 2 bath • 934 ft²
3 bedroom terraced house for sale in Roundhouse Avenue, Trimley St Martin, IP11 — £289,995 • 3 bed • 2 bath • 788 ft²






































