**Standout Features:**
- Modern semi-detached home with two double bedrooms
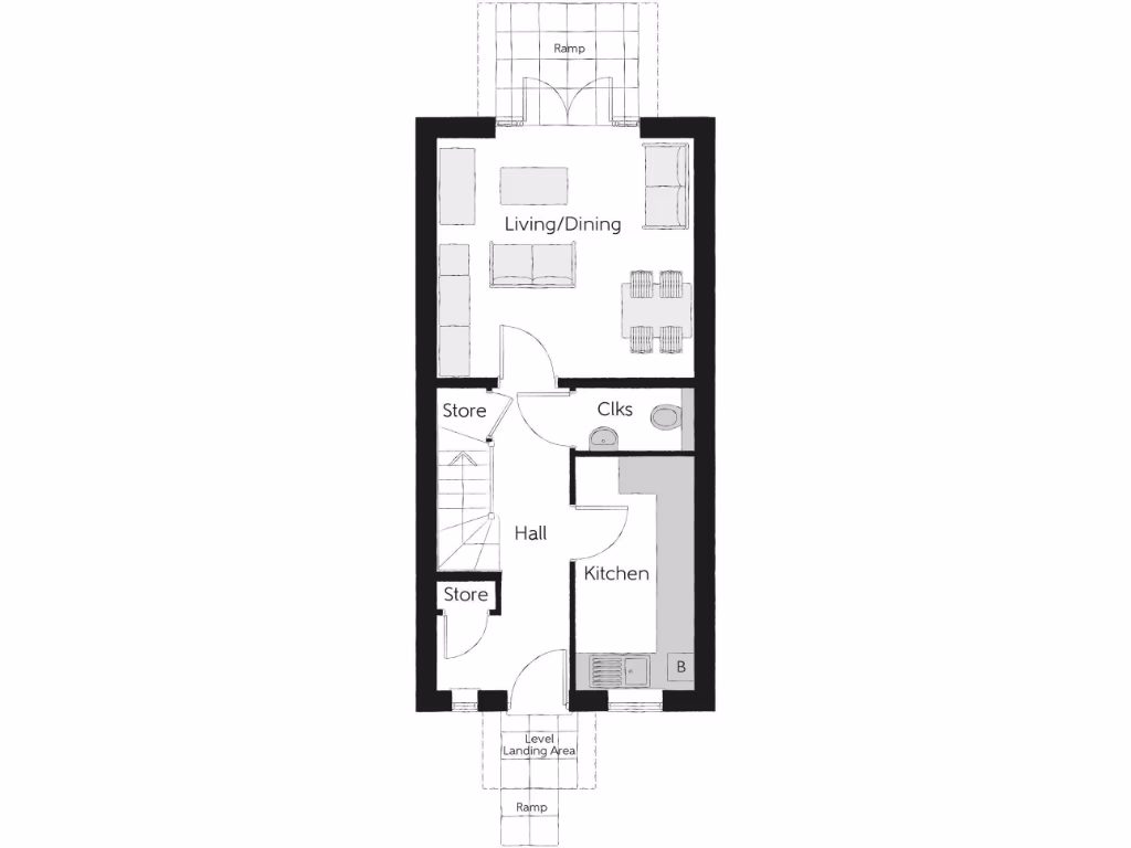
- Open plan living/dining area filled with natural light from double French doors
- Energy-efficient design with a well-fitted kitchen
- Allocated parking for two vehicles and a private garden
- Chain-free sale and 10-year NHBC Buildmark Policy
Nestled in the popular village of Trimley St Martin, 'The Hooper' offers a perfect blend of modern living and community charm. This recently built, semi-detached home boasts an inviting open plan living and dining area, ideal for both relaxation and entertaining. The contemporary design features two spacious double bedrooms and a family bathroom equipped with shower over the bath. The property comes with a well-maintained garden and two designated parking spaces, adding to the appeal for both first-time buyers and investors seeking rental potential.
Strategically located for excellent access to the A12 and A14, this home is within close reach to key amenities and a selection of well-rated primary schools. It's also perfect for those considering future renovations or an extension, allowing you to customize your space further. With low crime rates and a welcoming neighborhood atmosphere, this property presents a fantastic opportunity for comfortable family living or a sound investment—don't miss your chance to own this attractive home at £259,995!







































